**Standout Features:**
- **Building Plot**: Full planning permission for a 3-bedroom detached home (Ref: N/042/01395/23).
- **Generous Size**: Rare 0.23-acre plot with hedged boundaries providing privacy.
- **Attractive Location**: Quiet lane near the church, offering serene views and close to village amenities.
- **Design Potential**: Proposed modern Dorma house with open-plan living and large windows.
- **Current Condition**: Flat, grass-covered terrain—ideal for construction.
**Concise Summary:**
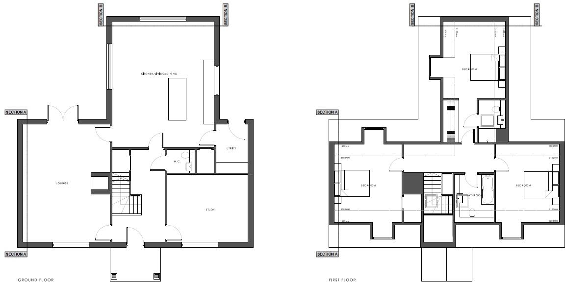
This unique building plot in the sought-after village of Donington-on-Bain is a rare find, perfect for investors or families dreaming of creating their ideal home. Spanning approximately 0.23 acres, the plot boasts full planning permission for an attractive 3-bedroom Dorma house designed with modern living in mind. The proposed layout features a spacious open-plan kitchen and living area, a lounge with patio doors to the garden, and three double bedrooms on the first floor, including an en suite master bedroom.
Nestled on a quiet lane with delightful views of the nearby church, this spacious plot allows for ample garden space and is conveniently located close to local shops and the welcoming Black Horse pub. While there are requirements for an Archaeological dig that must be addressed, the seller's new price reflects this, making it an enticing opportunity for those looking to build in a charming rural community. Act fast to secure this outstanding development opportunity before it's gone!
Land for sale in Plot 1, Main Road, Donington-on-bain, LN11 — £100,000 • 1 bed • 1 bath • 8712 ft²
Land for sale in Plots 1&2, Main Road, Donington-on-bain, LN11 — £225,000 • 1 bed • 1 bath • 18731 ft²
Land for sale in Building Plot, Linwood Road. Market Rasen., LN8 — £115,000 • 1 bed • 1 bath • 6534 ft²
Detached house for sale in 154 Horncastle Road Louth LN11 9QT, LN11 — £150,000 • 1 bed • 1 bath
Land for sale in Church Lane, Alvingham LN11 0QD, LN11 — £125,000 • 1 bed • 1 bath
Plot for sale in St. Marys Lane, Louth, LN11 — £195,000 • 1 bed • 1 bath


































