**Standout Features:**
- Spacious detached 4-bedroom country home (approx. 3,000 sq.ft.)
- Ground floor annexe with separate entrance
- Stunning countryside views and light-filled rooms
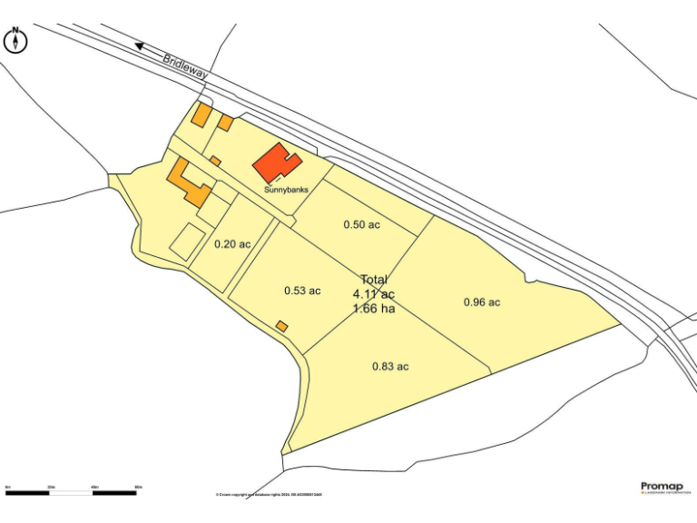
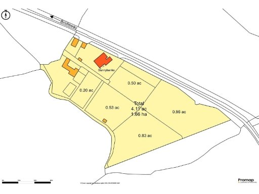
- Extensive outdoor space: 4.12 acres with 5 paddocks, stable yard, and garden
- Low crime area, rural privacy with accessibility to local amenities
- Potential for equestrian use with significant outbuildings: 4 stables, tack room, and feed stores
**Summary Description:**
Welcome to **Sunnybanks**, a beautifully presented detached country home nestled in a secluded setting yet easily accessible from local amenities. This expansive 4-bedroom property showcases modern interiors complemented by an abundance of natural light and breathtaking views over the Blackmore Vale. The thoughtfully designed ground floor incorporates a self-contained annexe, ideal for guests or as a rental opportunity.
The extensive outdoor space is a true highlight, encompassing 4.12 acres of meticulously maintained land, including five fenced paddocks, a stable yard equipped with four stables, and ample storage facilities for equestrian needs. A brick garage and oak-framed carport provide additional convenience. This property not only offers a serene lifestyle but also presents renovation potential with various outbuildings, perfect for animal lovers or hobbyists.
Set in a peaceful hamlet surrounded by footpaths and bridleways, Sunnybanks embodies the perfect blend of rural tranquility and modern living. Don’t miss your chance to own this unique retreat where spacious living meets boundless outdoor possibilities—a rare find that promises to attract eager buyers!
4 bedroom detached bungalow for sale in Bath Road, Sturminster Newton, DT10 — £750,000 • 4 bed • 3 bath • 1839 ft²
6 bedroom detached house for sale in Thornhill Road, Stalbridge, Sturminster Newton, Dorset, DT10 — £850,000 • 6 bed • 4 bath • 2712 ft²
4 bedroom detached house for sale in West Lane, Hazelbury Bryan, Sturminster Newton, DT10 — £999,950 • 4 bed • 3 bath • 2457 ft²
4 bedroom house for sale in East Orchard, Shaftesbury, Dorset, SP7 — £895,000 • 4 bed • 1 bath • 2264 ft²
4 bedroom detached house for sale in Boys Hill, Sherborne, DT9 — £750,000 • 4 bed • 2 bath • 2747 ft²
4 bedroom detached house for sale in Golden Hill, Stourton Caundle, DT10 — £750,000 • 4 bed • 3 bath • 1952 ft²






































































































