Large, well-specified office with secure parking and excellent rail links.
Prominent city-centre location opposite Chelmsford train station
Approximately 20,156 sq ft net internal area over three floors
28 allocated spaces in secure underground car park
Full access raised floor, VRF comfort cooling, EPC B (42)
BREEAM rating: Very Good; passenger lift and video entry system
Elected for VAT; sale on new 999‑year long leasehold at peppercorn
Very high local crime levels — factor security and insurance costs
Very slow broadband speeds; may limit tech-heavy occupiers
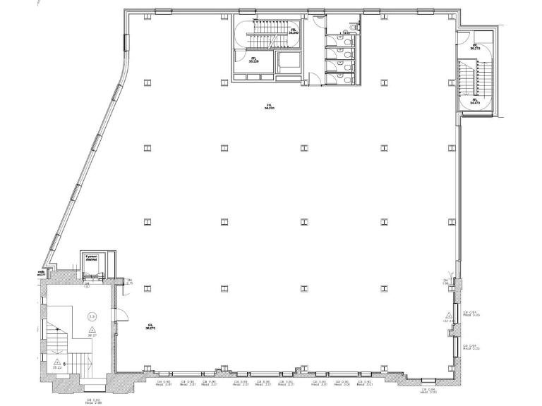
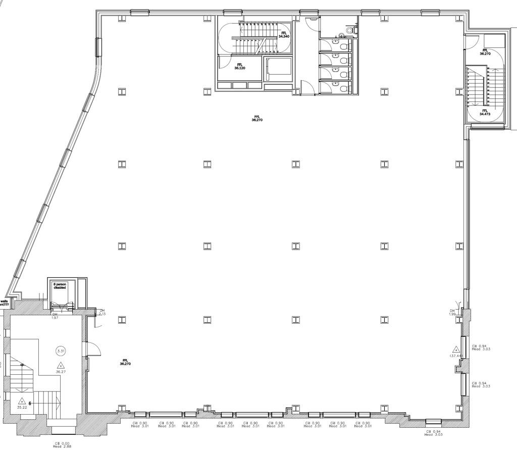
The Law Building occupies a prominent city-centre position directly opposite Chelmsford train station, offering three floors of high-quality office accommodation behind a retained Art Deco façade. The building totals approximately 20,156 sq ft NIA, delivered with full access raised floors, suspended ceilings with recessed lighting, VRF comfort cooling and an EPC B (42). A passenger lift and video entry system serve the floors, and 28 allocated spaces are provided in a secure underground car park.
The scheme benefits from immediate local amenities including a Brewhouse & Kitchen, gym, Bupa Health Centre and convenience retail, with Chelmsford High Street, Park Central bus interchange and frequent rail services to London within a short walk. The property is offered as a new 999‑year long leasehold interest at a peppercorn ground rent and is elected for VAT. It has a BREEAM rating of Very Good.
Considerations: the property sits in an area with very high crime levels and currently reports very slow broadband speeds, which may affect certain occupiers. The building contributes to a scheme-wide service charge and the premises appear in the 2023 VOA Rating List with significant rateable values; purchasers should factor ongoing service charge, business rates and VAT into occupational and investment appraisals.
This property will suit an investor or an occupier seeking a well-specified, centrally located office with strong transport links and existing parking, but buyers should allow for local crime profile, connectivity limitations and the cost obligations of service charge, rates and VAT.
Office for sale in The Law Building, Burgess Springs, Chelmsford, CM1 1NW, CM1 — POA • 1 bed • 1 bath • 20156 ft²
Office for sale in 70-72 New London Road, Chelmsford, Essex, CM2 0PE, CM2 — £555,000 • 1 bed • 1 bath • 1865 ft²
Office for sale in 59 New Street, Chelmsford, Essex, CM1 — £725,000 • 1 bed • 1 bath • 3919 ft²
Office for sale in Unit D1, Victoria Road South, City Park West, Chelmsford, Essex, CM1 — £540,000 • 1 bed • 1 bath • 2703 ft²
Office for sale in Moulsham Street, Chelmsford, Essex, CM2 — £1,800,000 • 1 bed • 1 bath • 9116 ft²
High street retail property for sale in Marconi Evolution, Cunard Square, Chelmsford, CM1 1AQ, CM1 — POA • 1 bed • 1 bath • 1650 ft²










































