Short walk to station and outstanding schools with scope to extend and add value.
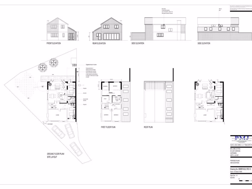
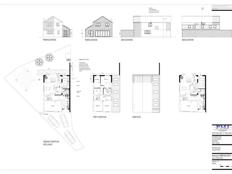
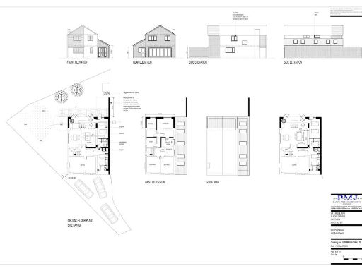
Approved planning permission for side and rear extension (Ref. 5/2025/1337)
Set in a quiet cul-de-sac in sought-after Alzey Gardens, this detached four-bedroom home offers practical family living with real potential. The current layout provides generous living and dining rooms, a fitted kitchen that opens to a wrap-around garden, off-street parking and a single garage — a straightforward base for daily family life.
A major value driver is the approved planning permission (Ref. 5/2025/1337) for a single-storey side and two-storey rear extension, which creates clear scope to increase living space and adapt the property to modern family needs. The location is another strength: excellent primary and secondary schools nearby, easy walking distance to the mainline station and Harpenden town centre, and low local crime combined with fast broadband and strong mobile signal.
Buyers should note a few practical points: there is a single family shower room only, council tax is described as expensive, and the house — built c.1976–82 — may benefit from some updating to suit contemporary tastes (double glazing install date unknown). The property is offered chain free, simplifying and speeding up a purchase for someone ready to move or to invest in the approved extension plans.
Overall this is a well-maintained, mid-sized family house on a decent plot with immediate convenience and long-term upside for those who wish to extend or refurbish. It will suit families who value proximity to top-rated schools, commuters seeking a short walk to the station, or buyers wanting a project with planning already in place.
4 bedroom detached house for sale in Haslingden Close, Harpenden, AL5 — £1,050,000 • 4 bed • 1 bath • 1726 ft²
3 bedroom detached house for sale in Common Lane, Batford, Harpenden, AL5 — £795,000 • 3 bed • 2 bath • 1714 ft²
3 bedroom semi-detached house for sale in Riverford Close, Harpenden, Hertfordshire, AL5 — £625,000 • 3 bed • 2 bath • 723 ft²
3 bedroom detached house for sale in West Way, Harpenden, AL5 — £900,000 • 3 bed • 1 bath • 1034 ft²
3 bedroom detached house for sale in Colney Heath Lane, St Albans, AL4 — £895,000 • 3 bed • 1 bath • 1392 ft²
4 bedroom detached house for sale in Hitherfield Lane, Harpenden, Hertfordshire, AL5 — £1,750,000 • 4 bed • 2 bath • 2198 ft²










































































































