**Standout Features:**
- Beautifully presented detached family home
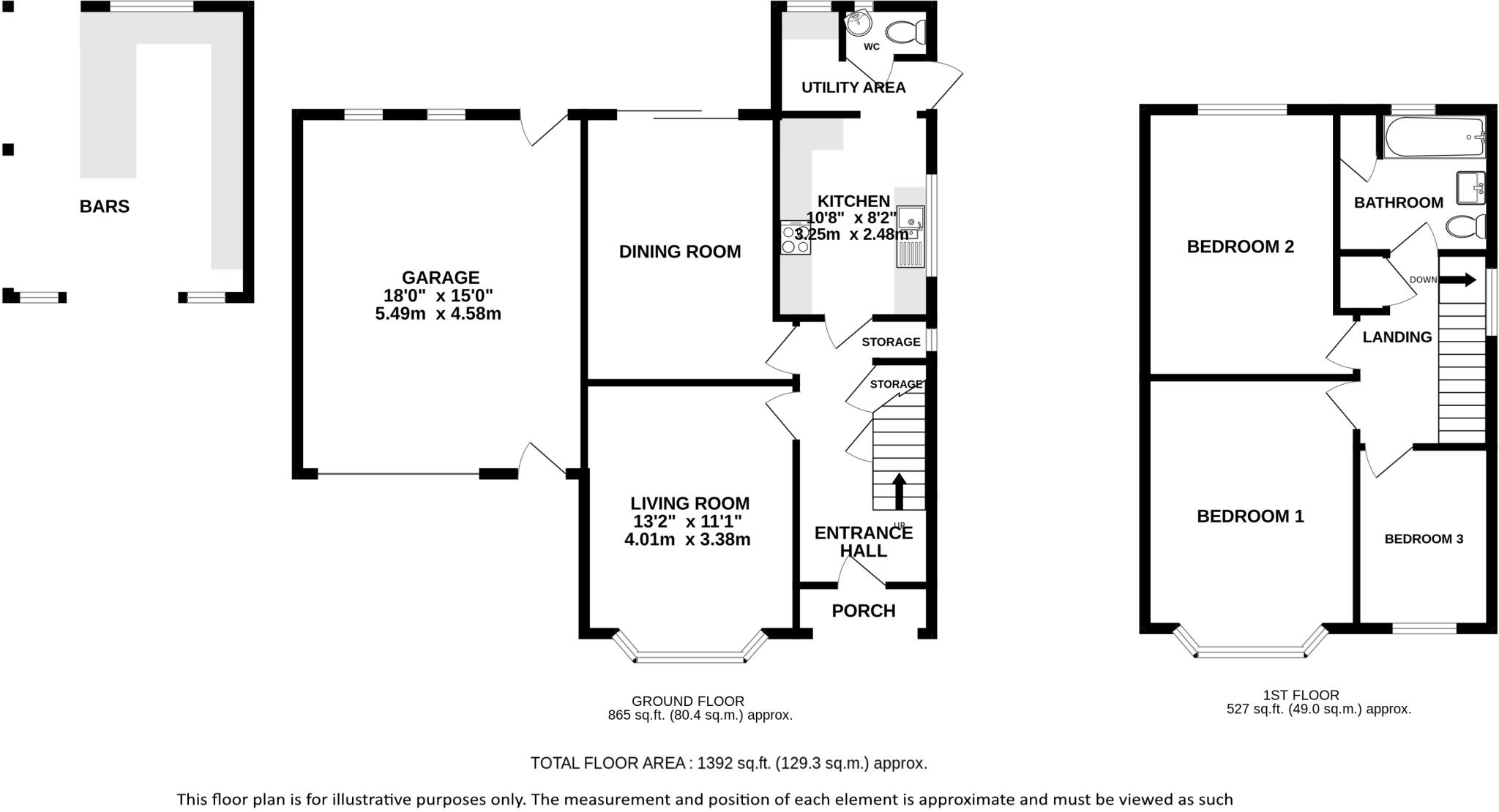
- Three generous bedrooms, ideal for families
- Approved planning permission for a two-storey side and single-storey rear extension, providing future flexibility
- Private rear garden with outdoor kitchen and garden studio, perfect for entertaining
- Garage and off-street parking for convenience
- Located close to highly regarded schools and transport networks
- Quiet, affable neighborhood with low crime rates
This spacious three-bedroom detached home offers an exceptional opportunity for families seeking both comfort and the potential to grow. Boasting a generous living space of 1,392 square feet, the property flows seamlessly, emphasizing brightness with large windows that invite an abundance of natural light.
The beautifully maintained garden provides a private oasis, enhanced by a bespoke outdoor kitchen, making it a perfect spot for gatherings or tranquil moments in nature. The approval for extension expands the possibilities, allowing buyers to personalize and enhance the property to their liking.
Located in the desirable area of St Albans, you can enjoy a vibrant community renowned for its excellent schools, including the highly regarded Nicholas Breakspear Catholic School and Loreto College. With excellent broadband and mobile signal, as well as easy access to transport, this home blends tranquillity with modern conveniences.
However, prospective buyers should note that while the house is charming, it could benefit from some modernization in areas such as the living room where radiator issues may need addressing. Don't miss the chance to own this unique property that combines immediate comfort with endless future potential. Schedule your viewing today!
4 bedroom detached house for sale in Napsbury Lane, St. Albans, AL1 1DU, AL1 — £1,000,000 • 4 bed • 1 bath • 1853 ft²
3 bedroom detached house for sale in Seymour Road, St. Albans, AL3 — £1,100,000 • 3 bed • 1 bath • 1330 ft²
5 bedroom semi-detached house for sale in Colney Heath Lane, St. Albans, AL4 0TU, AL4 — £850,000 • 5 bed • 2 bath • 1990 ft²
3 bedroom detached house for sale in Roestock Lane, Colney Heath, St. Albans, Hertfordshire, AL4 — £650,000 • 3 bed • 2 bath • 1621 ft²
4 bedroom detached house for sale in Watling Street, St. Albans, Hertfordshire, AL1 — £1,300,000 • 4 bed • 3 bath • 2123 ft²
3 bedroom detached house for sale in Foxcroft, St Albans, AL1 — £940,000 • 3 bed • 1 bath • 1385 ft²






















































































































