Rare listed church hall with planning for a 5‑bed coastal home near Shanklin seafront.
Planning consent for 5-bed, ~2,000 sq ft conversion
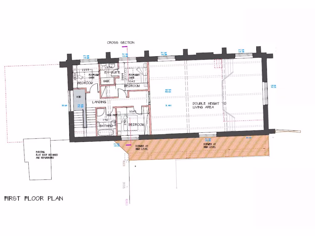
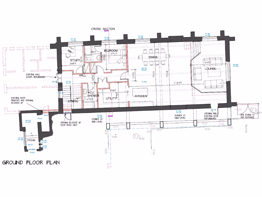
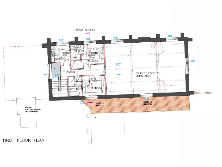
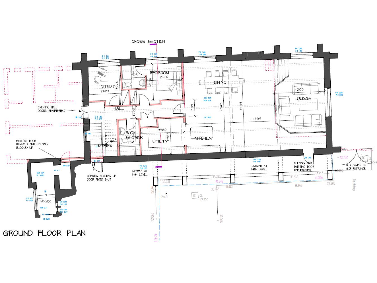
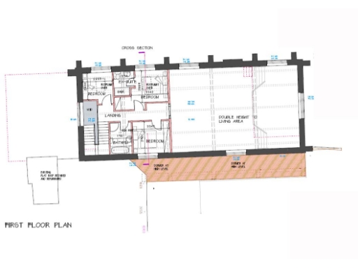
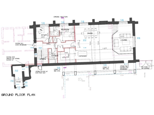
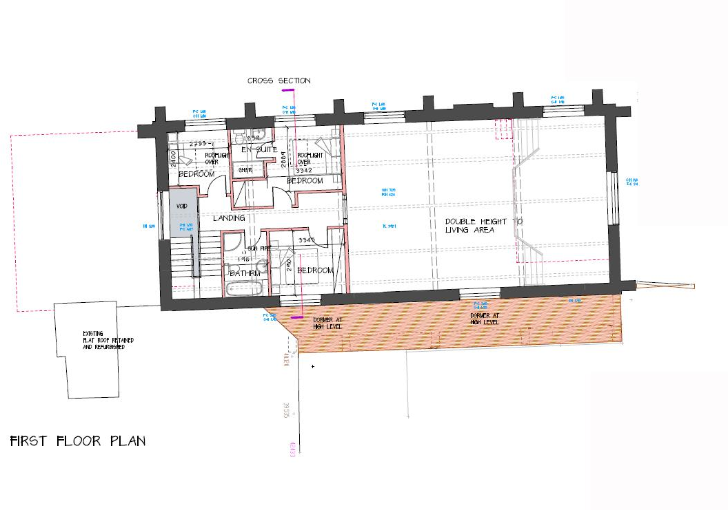
A rare coastal conversion opportunity in Shanklin Old Village: St Saviour’s church hall has listed building consent to convert the large vaulted hall into a two‑storey, 5‑bedroom home of about 2,000 sq ft. The building retains striking stone elevations, mullioned windows and dramatic vaulted ceilings that will create striking open-plan living and generous bedroom space once converted. The site sits a short walk from the cliff steps, seafront and village amenities, with off‑road parking and an enclosed west-facing garden.
This is a project for a buyer prepared to work with the Diocese and local conservation officers; the building is listed and will require sensitive restoration. A modest ongoing service charge of about £100 is budgeted for communal maintenance and insurance, and a community contribution of around £21,000 (section 106) is payable on occupation. Utilities are connected, although the particulars also note an absence of mains gas to the property.
Practical considerations are material: listed status and the need for specialist repair and refurbishment will add cost and require consent. The property has an EPC rating of G and will need upgrading for efficiency. The long 999‑year lease removes short-lease risk, but the tenure is leasehold and the location records above-average local crime and area deprivation indices — factors to weigh alongside the exceptional coastal setting.
For an architect-led buyer or developer, this offers rare seaside character, generous internal volume and a planning-backed route to a substantial family home or premium holiday residence. Expect restoration, conservation-grade works and liaison with the Diocese and planning authority as part of delivery.
5 bedroom detached house for sale in West Street, Brading, PO36 — £400,000 • 5 bed • 3 bath • 2274 ft²
4 bedroom link detached house for sale in Esplanade, Shanklin, PO37 — £785,000 • 4 bed • 4 bath • 2939 ft²
2 bedroom town house for sale in High Street, Wroxall, Ventnor, PO38 — £230,000 • 2 bed • 1 bath • 1271 ft²
15 bedroom detached house for sale in Park Road, Shanklin, PO37 — £595,000 • 15 bed • 15 bath • 4371 ft²
Residential development for sale in Esplanade, Shanklin, PO37 — £495,000 • 1 bed • 1 bath
4 bedroom detached house for sale in Heath Road, Sandown, Isle of Wight, PO36 — £285,000 • 4 bed • 2 bath • 1460 ft²






























































































































































