**Standout Features:**
- Prime seafront location with stunning sea views
- Former bar, restaurant, and hotel with existing planning permission
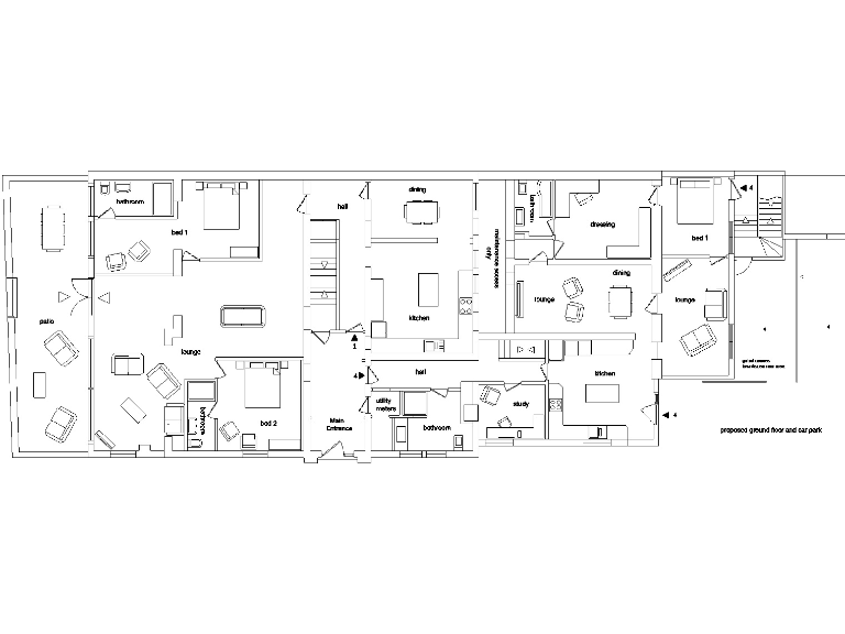
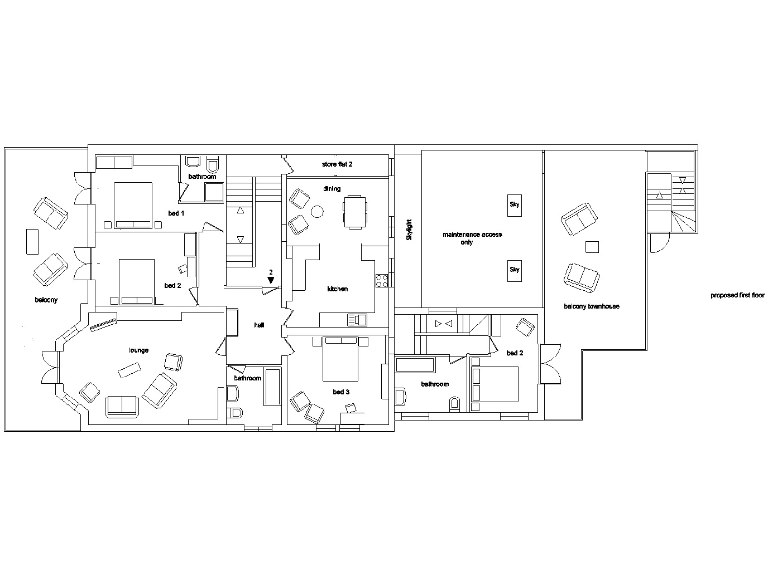
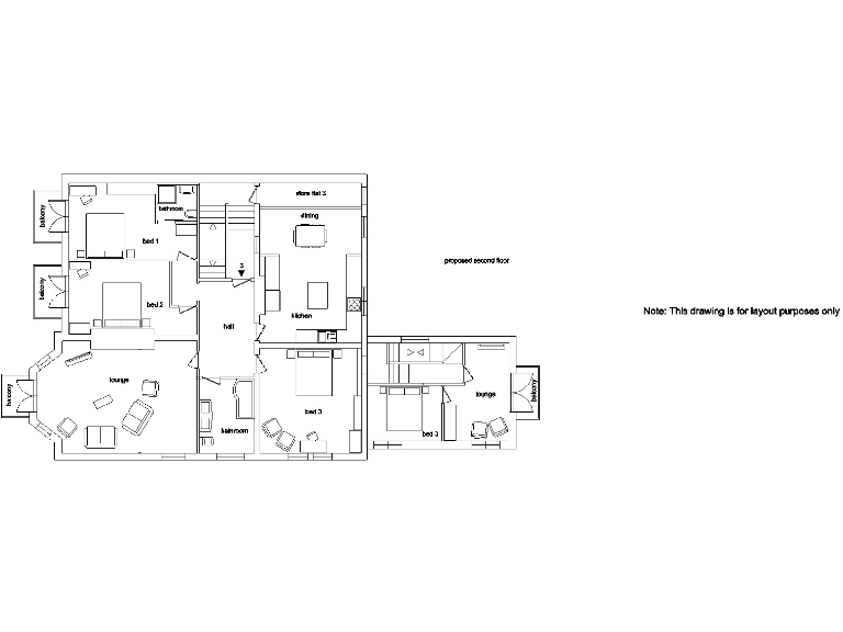
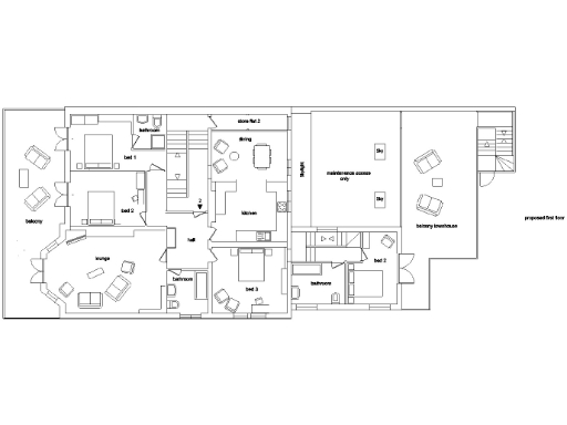
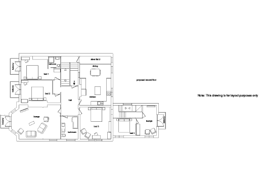
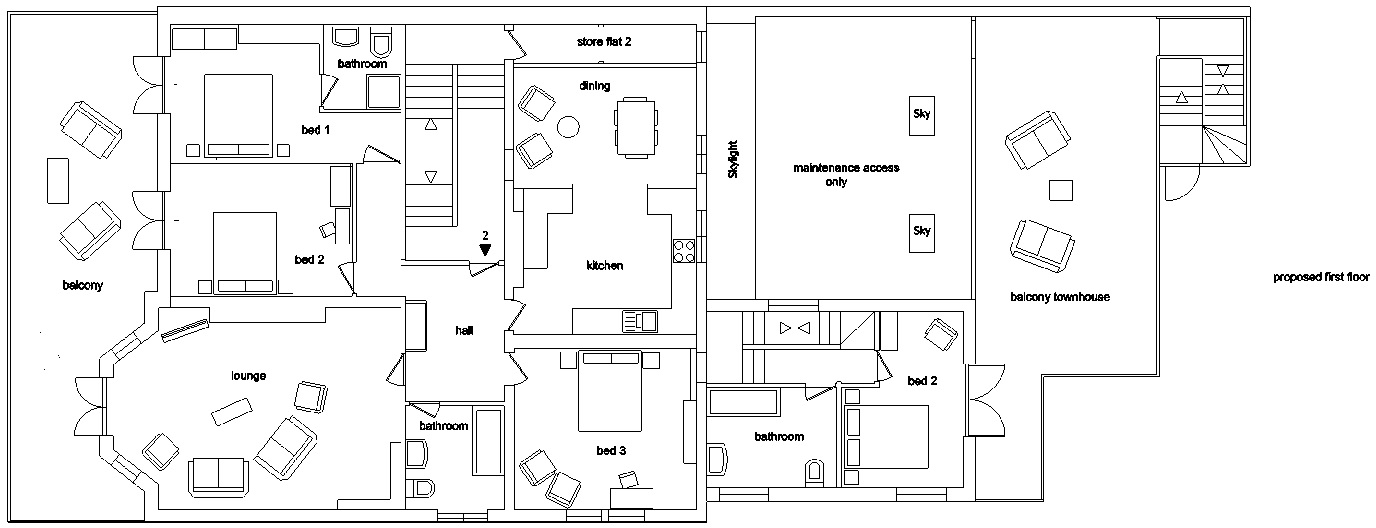
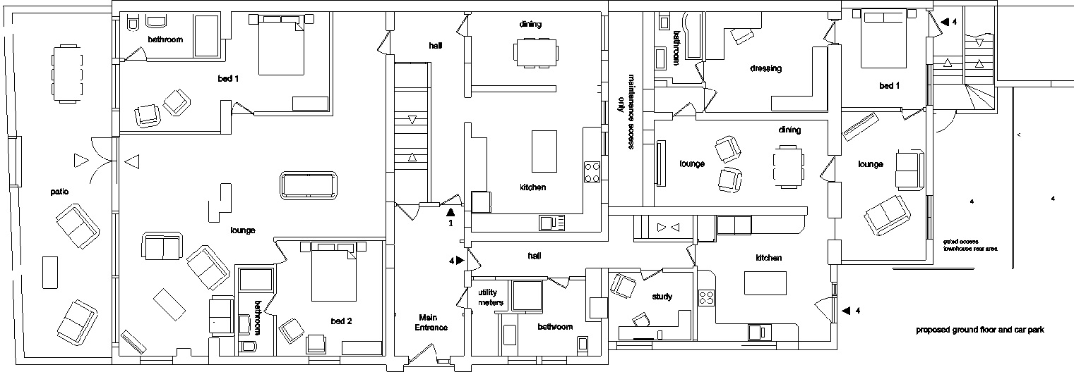
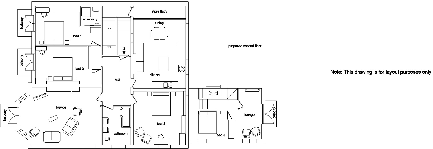
- Potential for converting into 3 holiday apartments and 1 residential townhouse
- Each apartment offers generous living spaces, balconies, and en-suites
- Parking space available for residents
- Large Victorian-era property with historic charm
**Notable Concerns:**
- Exterior shows signs of neglect requiring significant refurbishment
- Location has above-average crime rates
- Slow broadband speeds may affect connectivity
Nestled along Shanklin's award-winning seafront, this large Victorian property presents a rare investment opportunity. With breathtaking ocean views and planning permission for conversion into three holiday apartments and a residential townhouse, this is an ideal prospect for developers and investors alike. The ground and first floors can accommodate spacious apartments, each with balconies overlooking the Esplanade, while the townhouse offers ample living space with modern conveniences.
Despite its potential, be prepared for renovation work as the property has been left in a somewhat neglected state. On top of this, the surrounding area has a higher than average crime rate and very slow broadband speeds. However, with its proximity to vibrant amenities, recreational facilities, and transport links, this property offers exceptional value for anyone looking to capitalize on the tourism appeal of Shanklin. Don’t miss out on this unique opportunity—properties with such promise in this prime location rarely stay on the market for long!
Residential development for sale in Curraghmore , 22 Hope Road, PO37 — £450,000 • 1 bed • 1 bath • 620 ft²
4 bedroom link detached house for sale in Esplanade, Shanklin, PO37 — £785,000 • 4 bed • 4 bath • 2939 ft²
15 bedroom detached house for sale in Park Road, Shanklin, PO37 — £595,000 • 15 bed • 15 bath • 4371 ft²
Plot for sale in Luccombe Road, PO37 — £200,000 • 1 bed • 1 bath
5 bedroom detached house for sale in Park Road, Shanklin, Isle of Wight, PO37 — £1,499,000 • 5 bed • 3 bath • 4500 ft²
10 bedroom guest house for sale in St. George's Road, Shanklin, Isle of Wight, PO37 — £570,000 • 10 bed • 10 bath • 2563 ft²






























