Large garden and extension potential in Tadworth village location.
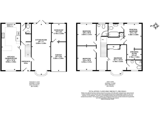
Large detached 1950s house, about 1,942 sq ft
This substantial 1950s detached house sits on the edge of Tadworth village and offers spacious family living across nearly 1,942 sq ft. The ground floor centres on a bright, open-plan kitchen/dining room that flows to formal reception space; the first floor provides four well-proportioned bedrooms including a main suite with dressing room and en-suite.
Outside, the property benefits from a large, secluded rear garden with terrace and lawns, plus a practical in-and-out block-paved driveway and integral garage. Double glazing (post-2002) and mains gas boiler with radiators provide modern comfort, and there is scope to extend further subject to planning permission (STPP).
This home will suit families seeking space, excellent local schools and an easy walk to Tadworth village shops and the station. Be realistic about the finish: while well laid out, the house presents opportunities for updating and value-adding improvements. Buyers should also factor in relatively high council tax when budgeting.
Freehold tenure, no flood risk and a very affluent local area add long-term appeal. The combination of size, garden and extension potential makes this a good pick for growing families or buyers keen to invest in improvement works.
4 bedroom detached house for sale in Epsom Lane South, Tadworth Village, KT20 — £1,100,000 • 4 bed • 2 bath • 2193 ft²
3 bedroom detached house for sale in Tadworth Street, Tadworth, KT20 — £795,000 • 3 bed • 1 bath • 1101 ft²
3 bedroom detached house for sale in Tadworth Street,Tadworth,Surrey,KT20 5RF, KT20 — £1,050,000 • 3 bed • 1 bath • 1907 ft²
4 bedroom semi-detached house for sale in Shelvers Way, Tadworth, KT20 — £850,000 • 4 bed • 2 bath • 2095 ft²
4 bedroom detached house for sale in Kingsdene, Tadworth, KT20 — £799,950 • 4 bed • 1 bath • 1838 ft²
4 bedroom detached house for sale in Tadworth Park, Tadworth, KT20 — £825,000 • 4 bed • 2 bath • 1993 ft²


















































































































