Central Banbury flat with parking and garden access, ideal for downsizers.
Ground-floor retirement apartment with patio access to communal grounds
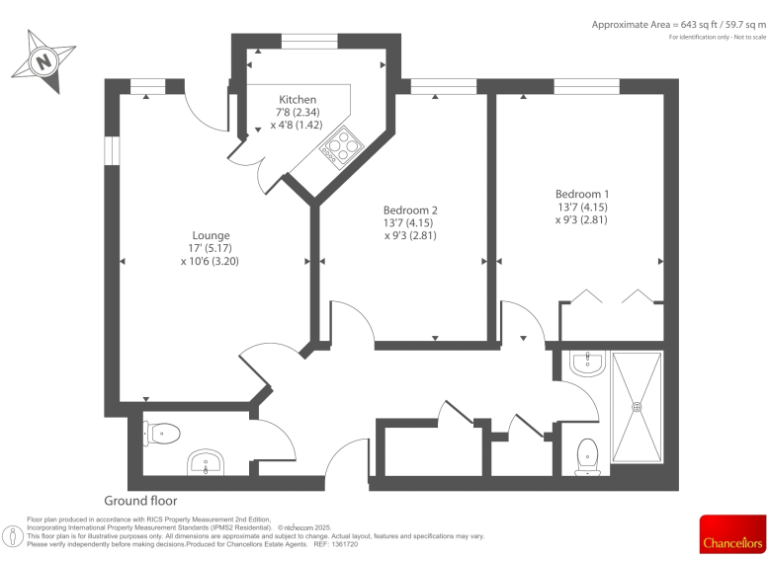
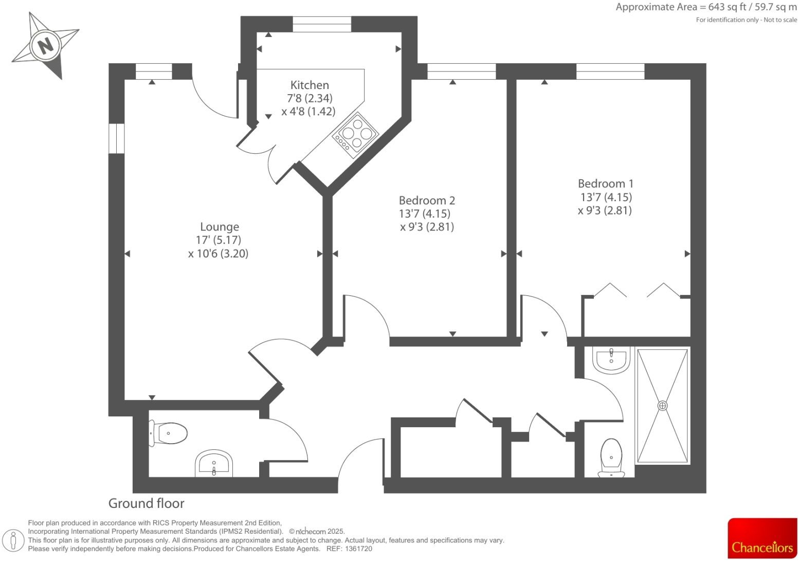
A ground-floor retirement apartment in central Banbury offering independent, low-maintenance living with direct access to shared gardens. The layout includes two double bedrooms, living room, kitchen and a ground-floor entrance — practical for residents who value convenience and outside space without stairs.
The home is presented as an average-sized apartment (c. 643 sq ft) in a modern brick development from the 1980s. Key practical benefits include off-street parking, excellent mobile signal and fast broadband — useful for visitors, family contact and modern living. Heating is by electric storage heaters and the council tax band is very low, which helps running costs.
There are some important points to note: the listing text refers to two bathrooms but structured details record one — buyers should verify the exact configuration. The internal decor needs updating (dated carpet noted) and the property will suit someone happy to refresh finishes rather than seeking a fully renovated home. The site sits in a town-centre, mixed urban area with good local shops and transport links, but the immediate neighbourhood records higher crime and area deprivation, which may concern some buyers.
The flat is leasehold with a long remaining term (around 94 years noted; confirm the exact balance). For downsizers or purchasers seeking a retirement-use investment in Banbury town centre, this apartment offers straightforward, small-footprint living with garden access and parking, provided you accept some cosmetic updating and the leasehold status.
2 bedroom retirement property for sale in Foxhall Court, School Lane, Banbury, OX16 — £140,000 • 2 bed • 1 bath • 817 ft²
2 bedroom retirement property for sale in Park Gardens, Bath Road, Banbury, OX16 — £285,000 • 2 bed • 1 bath • 822 ft²
2 bedroom retirement property for sale in Spencer Court, Banbury, OX16 — £129,950 • 2 bed • 1 bath • 810 ft²
1 bedroom retirement property for sale in Banbury, Oxfordshire, OX16 — £160,000 • 1 bed • 1 bath • 576 ft²
1 bedroom retirement property for sale in Banbury, Oxfordshire, OX16 — £90,000 • 1 bed • 1 bath • 495 ft²
1 bedroom retirement property for sale in Chamberlaine Court, Banbury, OX16 — £92,500 • 1 bed • 1 bath • 450 ft²


















































































