**Standout Features:**
- One-bedroom retirement apartment for residents aged 55 and over.
- Leasehold with 100 years remaining.
- Well-presented living space in a sought-after development.
- Communal garden and off-street residents parking.
- Modern finishes with good natural light.
**Potential Concerns:**
- Situated in an area noted for high crime rates.
- Average broadband speeds and the main heating system solely electric.
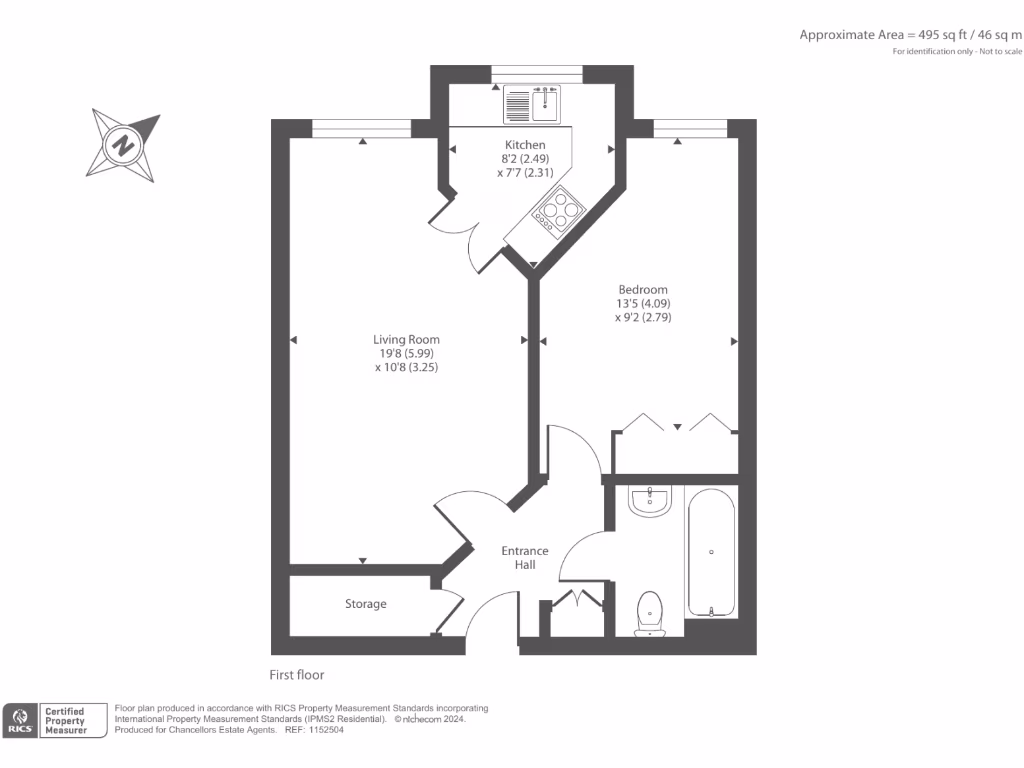
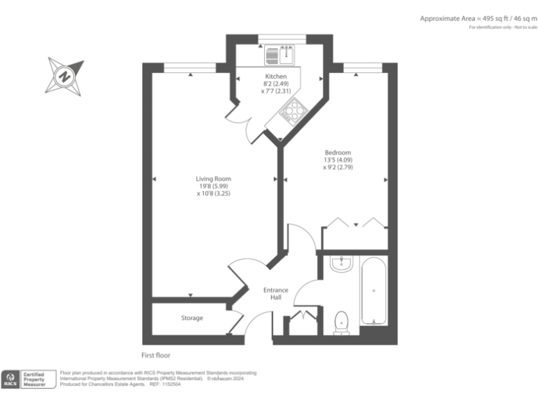
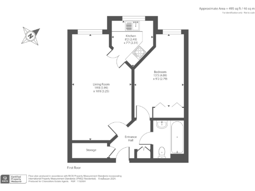
This inviting one-bedroom retirement apartment offers the perfect blend of comfort and convenience for those aged 55 and over. With a generous 495 sq ft of space, the layout includes an entrance hall, spacious living room, a functional kitchen, a bright bedroom, and a well-kept bathroom. Enjoy lazy afternoons in the communal garden and take advantage of off-street parking available for residents.
Situated in a vibrant neighborhood known for its cultural mix and rich amenities, this home provides accessibility to everyday conveniences, from supermarkets to local eateries. While the price of £90,000 presents an attractive opportunity to enter the retirement living market, prospective buyers should consider the area's higher crime rates.
With 100 years remaining on the lease, this apartment allows the potential for future renovations while offering a ready-to-move-in space. Don’t miss this unique opportunity to secure a charming retirement apartment that offers both value and lifestyle.
2 bedroom retirement property for sale in Banbury, Oxfordshire, OX16 — £95,000 • 2 bed • 1 bath • 527 ft²
2 bedroom retirement property for sale in Guardian Court, Banbury, OX16 — £95,000 • 2 bed • 1 bath • 571 ft²
2 bedroom retirement property for sale in Foxhall Court, School Lane, Banbury, OX16 — £140,000 • 2 bed • 1 bath • 817 ft²
1 bedroom flat for sale in Merisham Court School Lane, Banbury, OX16 — £130,000 • 1 bed • 1 bath • 512 ft²
1 bedroom retirement property for sale in Duke Street, Banbury, Oxfordshire, OX16 — £125,000 • 1 bed • 1 bath
1 bedroom retirement property for sale in Banbury, Oxfordshire, OX16 — £170,000 • 1 bed • 1 bath • 576 ft²










































