Private gated entrance and large driveway
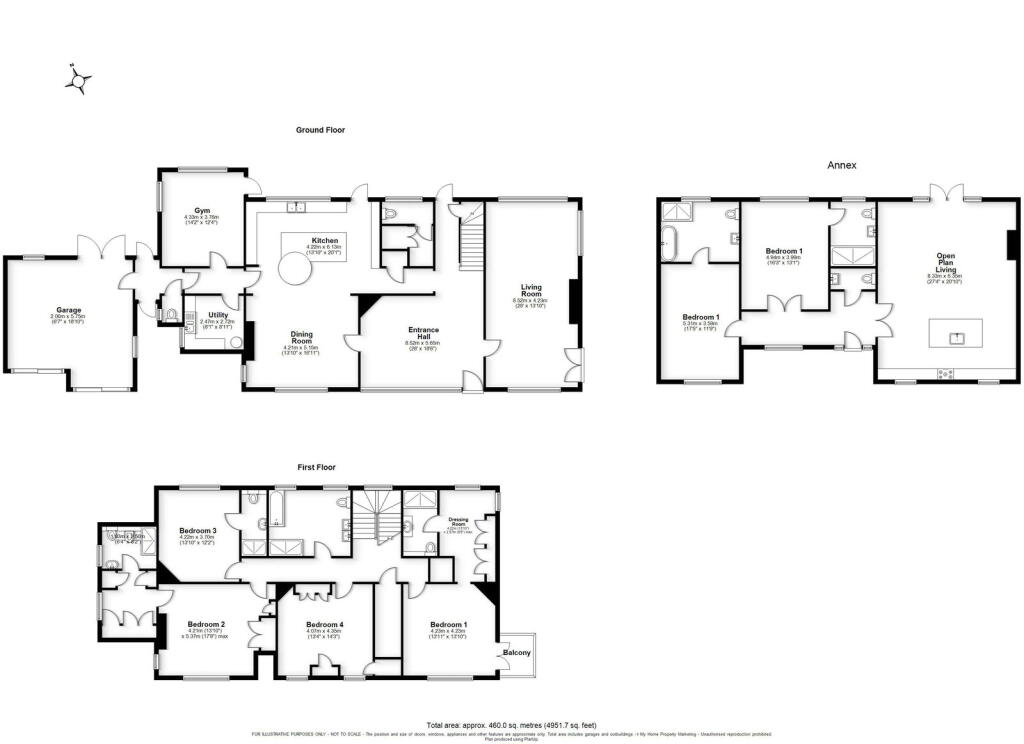
Set within a private gated entrance and extending to about 2.15 acres, this Tudor‑Revival estate combines immediate family living with clear development potential. The main four-bedroom house offers high ceilings, large windows and generous reception space, complemented by a separately built two‑bed ancillary dwelling completed in 2022 — ideal for multi‑generational use or an income stream subject to permissions.
The grounds are a standout feature: mature gardens, extensive lawned areas and a private tennis court create a secluded country feel within reach of Southampton amenities. A large driveway and double garage provide substantial parking and storage; the plot size also attracted previous outline permission for an additional four‑bed dwelling, so further residential opportunities may be possible (subject to planning).
Practical facts to note: the property is freehold, constructed circa 1900–1929 with double glazing added post‑2002, mains gas heating and no flooding risk. The location is served by several well‑regarded schools nearby, making it suitable for family life. Broadband speeds are reported slow and mobile signal average — factors to consider if remote working or high‑speed connectivity are priorities.
Development prospects are realistic but not guaranteed: previous planning consents demonstrate potential, however any new project will require fresh approvals from Test Valley Borough Council. Crime levels are reported above average for the area; buyers should factor this into security and insurance considerations. A viewing is recommended to appraise the house, ancillary dwelling and full scope of the grounds in person.
6 bedroom detached house for sale in Chilworth Road, Chilworth, Southampton, Hampshire, SO16 — £1,895,000 • 6 bed • 3 bath • 4772 ft²
6 bedroom detached house for sale in Ryedown Lane, East Wellow, Romsey, SO51 — £1,895,000 • 6 bed • 6 bath • 10000 ft²
5 bedroom detached house for sale in Lower Pennington Lane, Pennington, Lymington, Hampshire, SO41 — £3,000,000 • 5 bed • 3 bath • 4176 ft²
6 bedroom detached house for sale in Christchurch Road, Downton, Lymington, SO41 — £2,750,000 • 6 bed • 4 bath • 4300 ft²
4 bedroom detached house for sale in South Drive, Winchester, SO22 — £1,950,000 • 4 bed • 3 bath • 2311 ft²
7 bedroom detached house for sale in Avon Castle Drive, Ringwood, BH24 — £2,750,000 • 7 bed • 5 bath • 6000 ft²






































































































