Refurbished 4-bed family home near Sevenoaks station, school and shops..
Extended 1920s semi-detached family house, recently renovated
Open-plan kitchen/dining with underfloor heating and bi-fold doors
Principal bedroom with bespoke wardrobes and modern en‑suite
Large landscaped garden with deck, artificial lawn and play area
Driveway parking for three, garage access and EV charging point
Cavity wall likely uninsulated; energy upgrades advisable
Double glazing fitted before 2002; may require replacement later
Local crime levels above average; council tax described as expensive
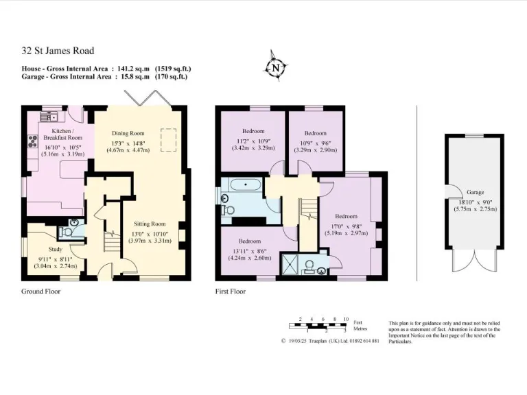
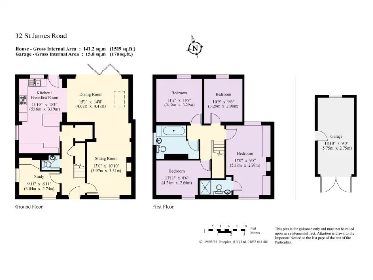
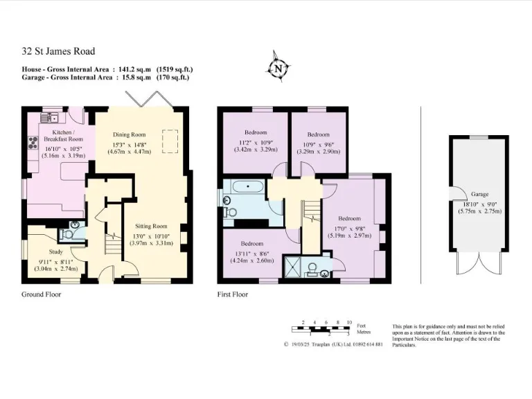
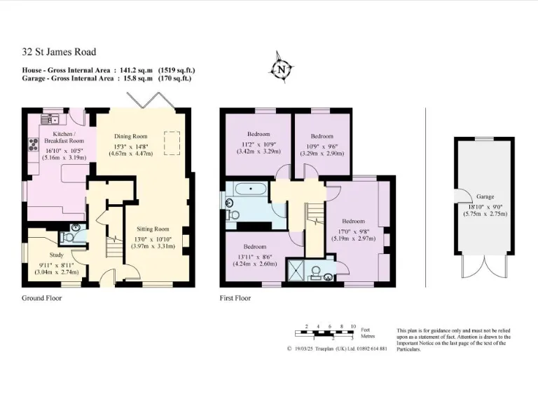
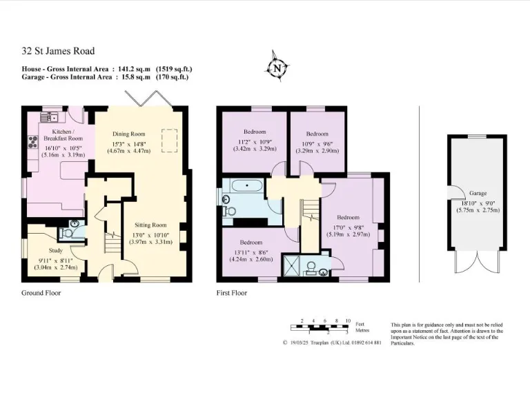
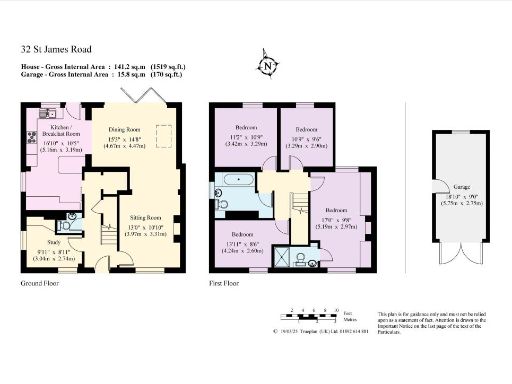
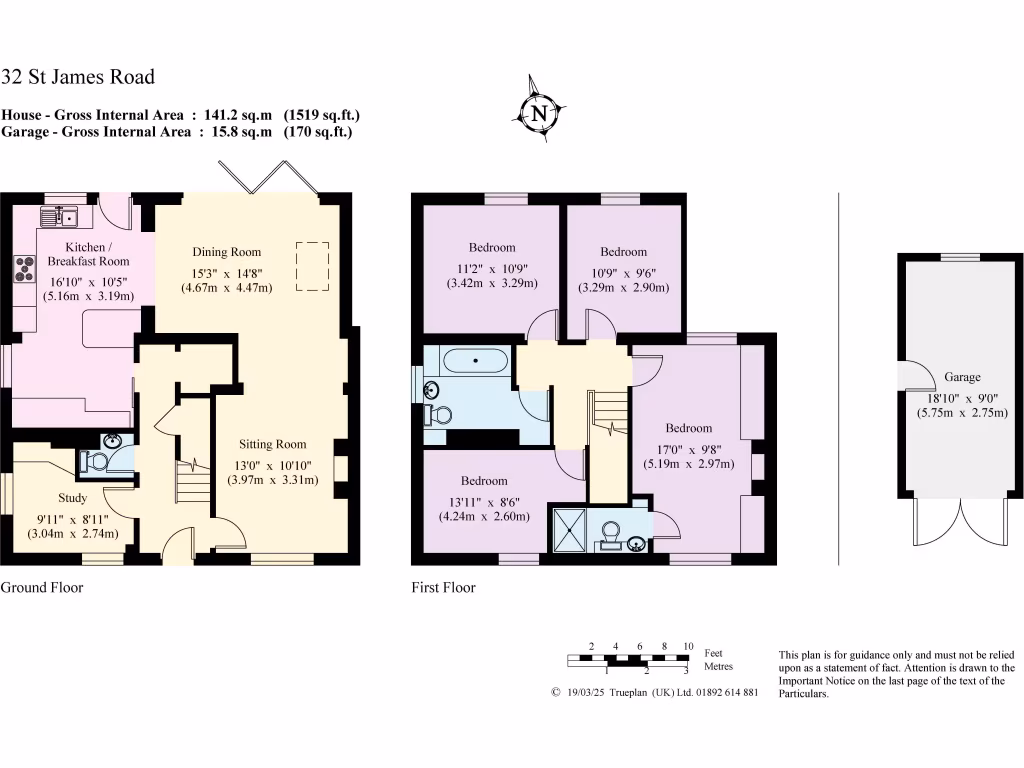
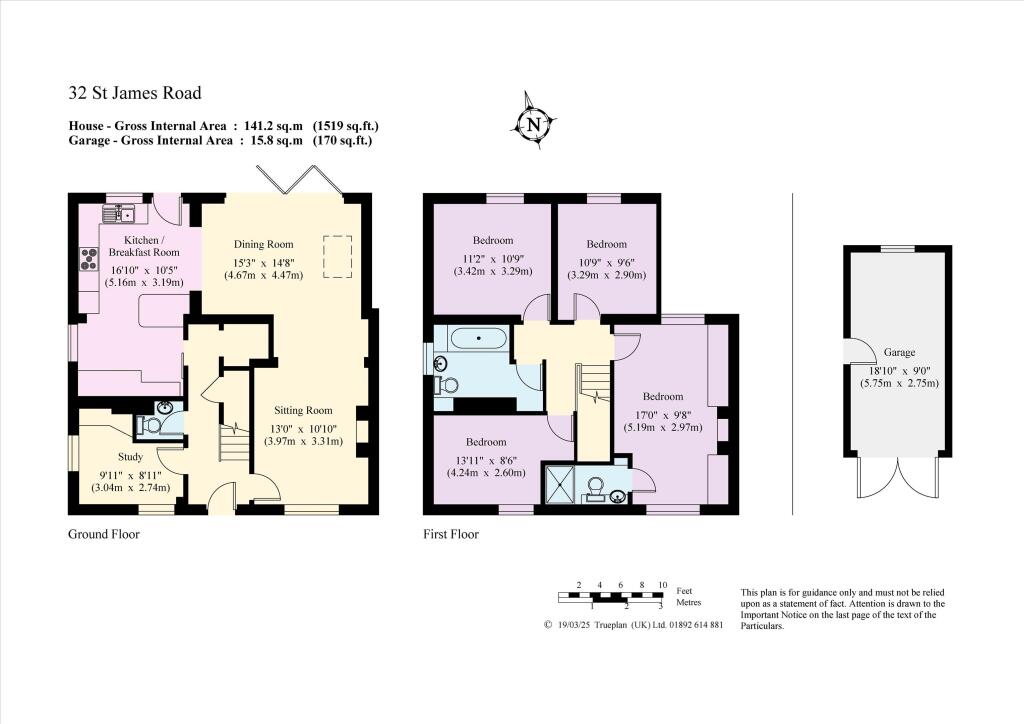
This recently refurbished 1920s semi-detached house on St. James's Road blends period character with contemporary family living. The extended, open-plan ground floor features solid oak floors, underfloor heating in the kitchen/dining, bi-fold doors to a decked terrace and a study ideal for home working. The principal bedroom benefits from fitted wardrobes and an en‑suite; three further bedrooms and a family bathroom suit a growing family.
Outside, the large landscaped garden is arranged for entertaining and child-friendly play, with a decked dining area, artificial grass play zone and rear garage with parking for up to three cars plus an EV charging point. The property is well located for families: Sevenoaks Primary School is 0.3 miles away, Sevenoaks station and High Street are around a mile, and the M25 is accessible within a short drive.
Buyers should note some practical details: cavity walls are assumed uninsulated, the double glazing was installed before 2002, and council tax is described as expensive. Crime levels in the area are above average. Overall, this is a spacious, well-presented family home with modern comforts and clear scope to personalise and upgrade energy efficiency over time.
5 bedroom detached house for sale in St. James's Road, Sevenoaks, Kent, TN13 — £1,125,000 • 5 bed • 3 bath • 1834 ft²
3 bedroom end of terrace house for sale in St. James's Road, Sevenoaks, Kent, TN13 — £700,000 • 3 bed • 2 bath • 1160 ft²
4 bedroom detached house for sale in Bethel Road, Sevenoaks, Kent, TN13 — £969,950 • 4 bed • 2 bath • 1869 ft²
4 bedroom semi-detached house for sale in The Drive, Sevenoaks, Kent, TN13 — £1,100,000 • 4 bed • 2 bath • 1668 ft²
4 bedroom semi-detached house for sale in St. Johns Road, Sevenoaks, TN13 — £1,150,000 • 4 bed • 3 bath • 1794 ft²
5 bedroom detached house for sale in Oakhill Road, Sevenoaks, Kent, TN13 — £1,895,000 • 5 bed • 4 bath • 3006 ft²


















































































































































































































































































































































































































































































































































































































































































































