CT1 2NY - 2 bed city centre georgian in Beer Cart Lane, CT1 2NY

View on Property Piper

2 bedroom terraced house for sale in Beer Cart Lane, Canterbury, CT1

Summary - 4 BEER CART LANE CANTERBURY CT1 2NY

2 bed 1 bath Terraced

Period charm, garden and basement near Canterbury High Street — ideal for hands-on buyers.
Freehold Georgian mid-terrace with authentic period features
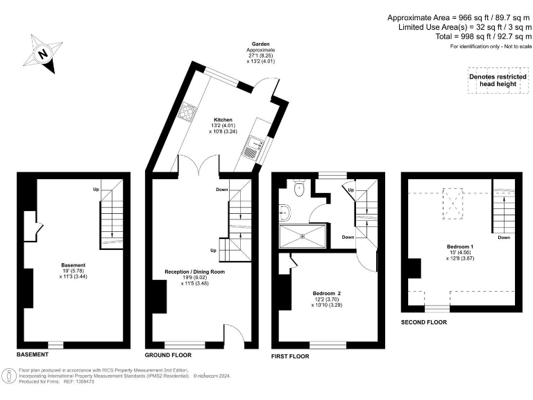
A charming two-bedroom Georgian townhouse set in the heart of Canterbury’s city centre, offered as a freehold with plenty of period character. The house delivers surprisingly generous internal space across multiple levels, highlighted by exposed beams, a wood-burning stove and original brick chimney breasts. The neatly paved rear garden (approx. 27' x 13') provides a private outdoor space for city living.

Practical extras include a useful basement room with power and recently fitted flooring, and a well-equipped kitchen that opens onto the garden. Main heating is gas boiler and radiators. Council tax band is affordable, and the property is within a short walk of High Street shops, cafés, the Marlowe Theatre and both railway stations.

Important considerations: the property is a solid-brick, pre-1900 build with assumed no cavity insulation, so thermal performance may be limited and upgrading insulation should be considered. The immediate area records very high crime levels and the property sits within a high flood-risk zone — both materially affect insurance and security needs. The plot is small and neighbours are close, so outdoor space is compact.

This house will suit a buyer seeking period character and city-centre convenience who is comfortable with central‑city issues and potential retrofit work. It also offers clear scope for sensible improvements (insulation, flood resilience, security upgrades) to increase comfort and long‑term value.

Property Details

Brochure Descriptions

Image Descriptions

Floorplan Description

Rooms

Textual Property Features

Target Audience

AI Tags

Detected Visual Features

EPC Details

Nearby Schools

Nearest Bars And Restaurants

,,,,}

Nearest General Shops

,,}

Nearest Grocery shops

,,}

Nearest Supermarkets

,,}

Nearest Religious buildings

,,}

Nearest Medical buildings

,,,}

Nearest Leisure Facilities

,,,,}

Nearest Tourist attractions

,,}

Nearest Train stations

,,,,}

Nearest Bus stations and stops

,,,,}

Nearest Hotels

,,}

Tags

Local Market Stats

AirBnB Data

Similar Properties

Meta

High Res Images

Compatible Images

Low res Images

Thumbnails

Raw Images

High Res Floorplan Images

Compatible Floorplan Images

Low res Floorplan Images

FloorplanImages Thumbnail

Raw Floorplan Images