**Standout Features:**
- **Substantial Size**: 2,759 sq ft across three floors
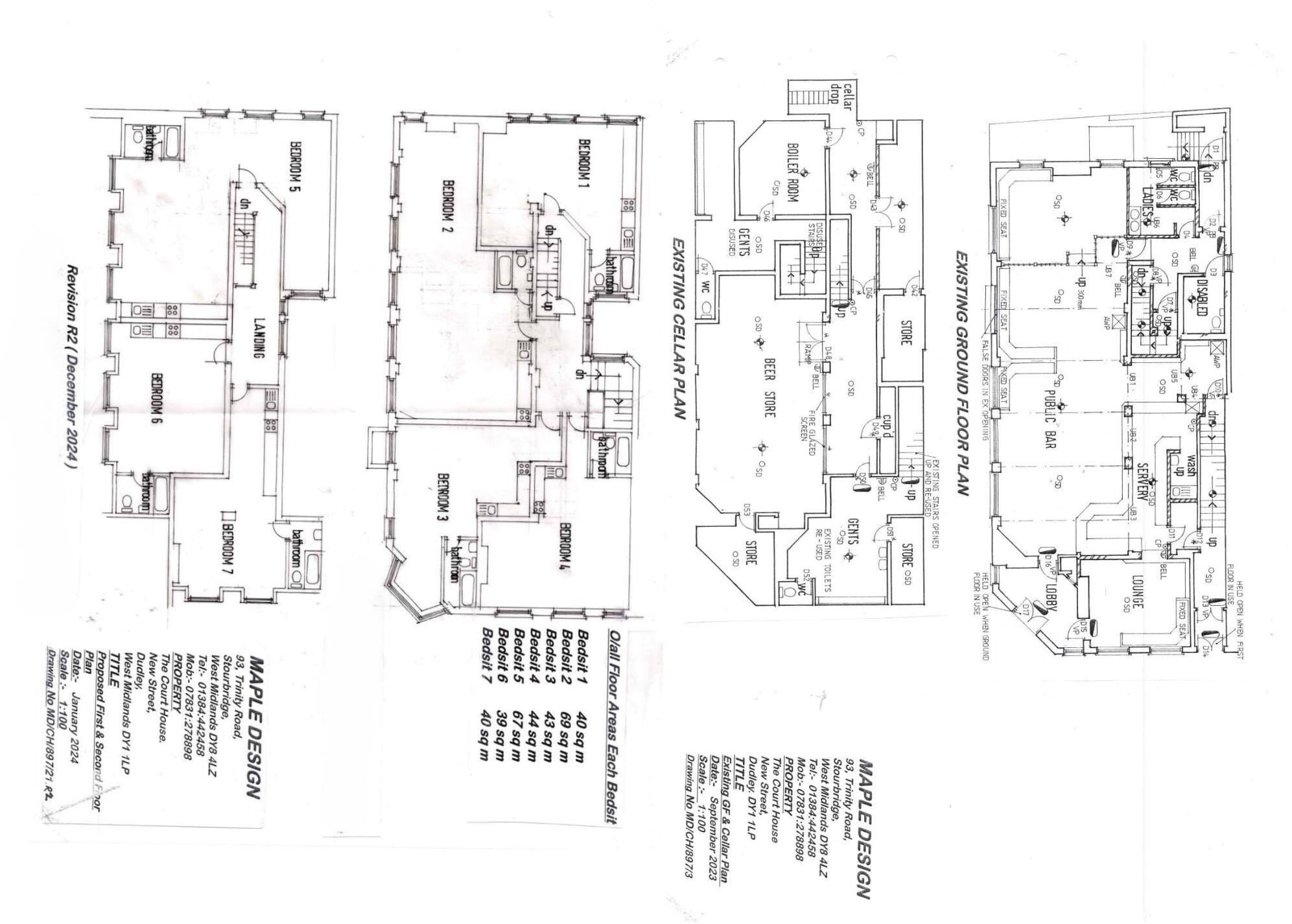
- **Unique Potential**: Planning consent for conversion to 7 bedsits/flats
- **Commercial Versatility**: Open plan bar, cozy snug, and a first-floor function room
- **Residential Accommodation**: Extensive 4-bedroom living space on the second floor
- **Location**: Prominent Dudley town center with excellent access to amenities
- **Current Condition**: Period Edwardian architecture with traditional features
**Potential Downsides:**
- **High Crime Rate**: Local area has a very high crime level
- **Deprivation Issues**: Area classification indicates significant socioeconomic challenges
- **Maintenance Considerations**: Older construction may require substantial upkeep
**Summary:**
Step into potential with this charming end-of-terrace building located in the bustling heart of Dudley. Featuring a unique blend of commercial and residential spaces, this expansive property boasts an open plan bar and a separate snug, perfect for hosting around 115 patrons, along with a multifunctional first-floor room equipped with bar servery and catering kitchen. The extensive second-floor living area includes four bedrooms, providing ample space for comfortable living or a potential investment.
With planning permission already in place for converting the upper floors into seven bedsits or flats, this property presents an enticing opportunity for investors or those seeking a versatile space for both commercial and residential use. Though nestled in an area facing socio-economic challenges and a notably high crime rate, the accessibility to a wide range of amenities enhances its attractiveness. This landmark building, characterized by its elegant Edwardian architecture and well-preserved period features, invites you to envision its potential transformation. Act fast—an opportunity like this won't last!
Pub for sale in Court House, 30 New Street, Dudley, West Midlands, DY1 — £349,950 • 1 bed • 1 bath • 2759 ft²
Pub for sale in Midland, 526 Bearwood Road, Smethwick, West Midlands, B66 4BE, B66 — £375,000 • 1 bed • 1 bath • 1995 ft²
Commercial property for sale in The Kings Head, 15 Mill Street, Brierley Hill, West Midlands, DY5 2RG, DY5 — £210,000 • 1 bed • 1 bath
Pub for sale in Mossvale Close, Cradley Heath, West Midlands, B64 — £350,000 • 3 bed • 1 bath
Office for sale in 58 Tower Street, Dudley, Dudley, DY1 1ND, DY1 — £130,000 • 1 bed • 1 bath • 1194 ft²
Office for sale in 4 Ednam Road, Dudley, DY1 1HL, DY1 — £1,400,000 • 1 bed • 1 bath • 22193 ft²


































