Energy-efficient three-bed new build with large garden and private parking in sought-after Thorganby.
Contemporary new-build with air-source heating and PV solar panels
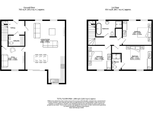
This contemporary three-bedroom, three-bath new build sits in an elevated courtyard position on Main Street, Thorganby — ideal for families seeking modern, low-maintenance living with countryside access and good school catchment (including Fulford). Constructed to high energy standards, the house features air-source heating, PV solar panels and an EV charger, reducing running costs and carbon output while providing a comfortable, well-insulated interior.
The ground floor offers generous open-plan living, dining and kitchen space with integrated AEG appliances, a separate family room/study, and a useful utility/cloakroom. Patio doors from the dining area connect the home to a large, private rear garden and patio — a practical outdoor space for children and entertaining. The master bedroom benefits from a sizable en suite, and all three bedrooms provide flexible family accommodation.
Practical positives include private driveway parking, a carport/garage and visitor spaces, plus very low local crime in a prosperous village setting. Important negatives are stated plainly: the property lies in a medium flood-risk zone and broadband speeds in the area are slow, which may affect home working. Mobile signal is average. Buyers should also consider that, as a new development in a small hamlet, long-term resale will be influenced by rural demand and local infrastructure.
Overall this home will suit families or downsizers wanting contemporary, energy-efficient accommodation close to York with good local schools. Inspect to confirm garden extent, flood mitigation measures, and broadband/mobile suitability for your needs.
3 bedroom house for sale in Pasture Court, Main Street, Thorganby, York, YO19 — £465,000 • 3 bed • 3 bath • 1301 ft²
4 bedroom house for sale in Main Street, Thorganby, York, YO19 — £820,000 • 4 bed • 4 bath • 1669 ft²
3 bedroom detached house for sale in Fordlands Road,
Fulford,
York,
YO19 4AE, YO19 — £450,000 • 3 bed • 1 bath • 1415 ft²
3 bedroom semi-detached house for sale in 2 Pasture Cottages, Outgang Road, Malton, YO17 7BR, YO17 — £410,000 • 3 bed • 2 bath • 1294 ft²
3 bedroom end of terrace house for sale in Tollerton Road / Baston Lane, Huby, York, North Yorkshire, YO61 — £450,000 • 3 bed • 2 bath • 1196 ft²
5 bedroom house for sale in Fulford Road, York, North Yorkshire, YO10 — £2,100,000 • 5 bed • 4 bath • 5042 ft²


































