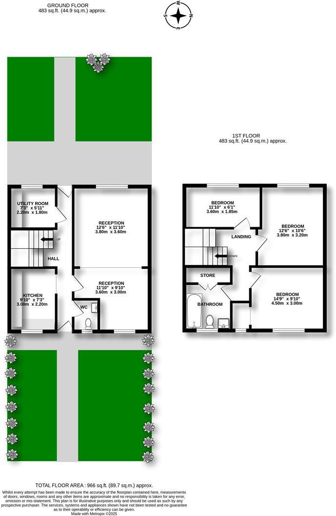
Chain-free, newly refreshed mid-terrace with utility and enclosed garden..
Chain free and freshly redecorated throughout
Three generous bedrooms and family bathroom upstairs
Downstairs WC and separate utility room for practical living
Enclosed rear garden with lawn, patio, shed space and gated access
Small front garden; no obvious private off-street front parking
Built c.1976–82 with double glazing and mains gas central heating
Council tax described as very cheap, lowering running costs
Plot is small; exterior may need cosmetic updating
Freshly redecorated and chain-free, this mid-terrace home offers straightforward family living in a well-served Eastham location. The ground floor layout includes a lounge/diner, practical kitchen, separate utility and a downstairs WC — useful for busy households. Upstairs are three generous bedrooms and a family bathroom; a large landing cupboard could be absorbed into living space if extra storage is needed.
Externally the property sits on a small urban plot with an enclosed rear garden split between lawn and patio, mature screening and gated access to a shared parking area. The front has a small lawn and mature hedging providing privacy. Constructed in the late 1970s–early 1980s, the house benefits from double glazing and mains gas central heating to radiators.
The location is practical: fast broadband, excellent mobile signal, nearby bus routes and local amenities, plus several well-rated primary and secondary schools within easy reach. Council tax is very low, which reduces ongoing costs. The property is best for families or first-time buyers seeking a ready-to-move-in home with scope to personalise further.
Buyers should note the plot is small and on a mid-terrace with no obvious dedicated off-street front parking. The exterior looks dated in places and, while recently decorated internally, further external or cosmetic updating may be needed to maximise long-term value.
3 bedroom terraced house for sale in Baytree Road, Tranmere, Wirral, CH42 — £120,000 • 3 bed • 1 bath • 896 ft²
3 bedroom terraced house for sale in Mill Park Drive, Eastham, CH62 — £179,950 • 3 bed • 1 bath • 1102 ft²
3 bedroom semi-detached house for sale in Dunham Close, Eastham, Wirral, CH62 — £220,000 • 3 bed • 1 bath • 771 ft²
3 bedroom terraced house for sale in Beverley Road, New Ferry, Wirral, CH62 — £115,000 • 3 bed • 1 bath • 898 ft²
3 bedroom terraced house for sale in Bridge Farm Close, Wirral, CH49 — £149,995 • 3 bed • 1 bath • 747 ft²
3 bedroom end of terrace house for sale in Helsby Avenue, Eastham, CH62 — £185,000 • 3 bed • 1 bath • 861 ft²


































































