Affordable period home with versatile rooms and low-maintenance outside space.
Chain free freehold sale
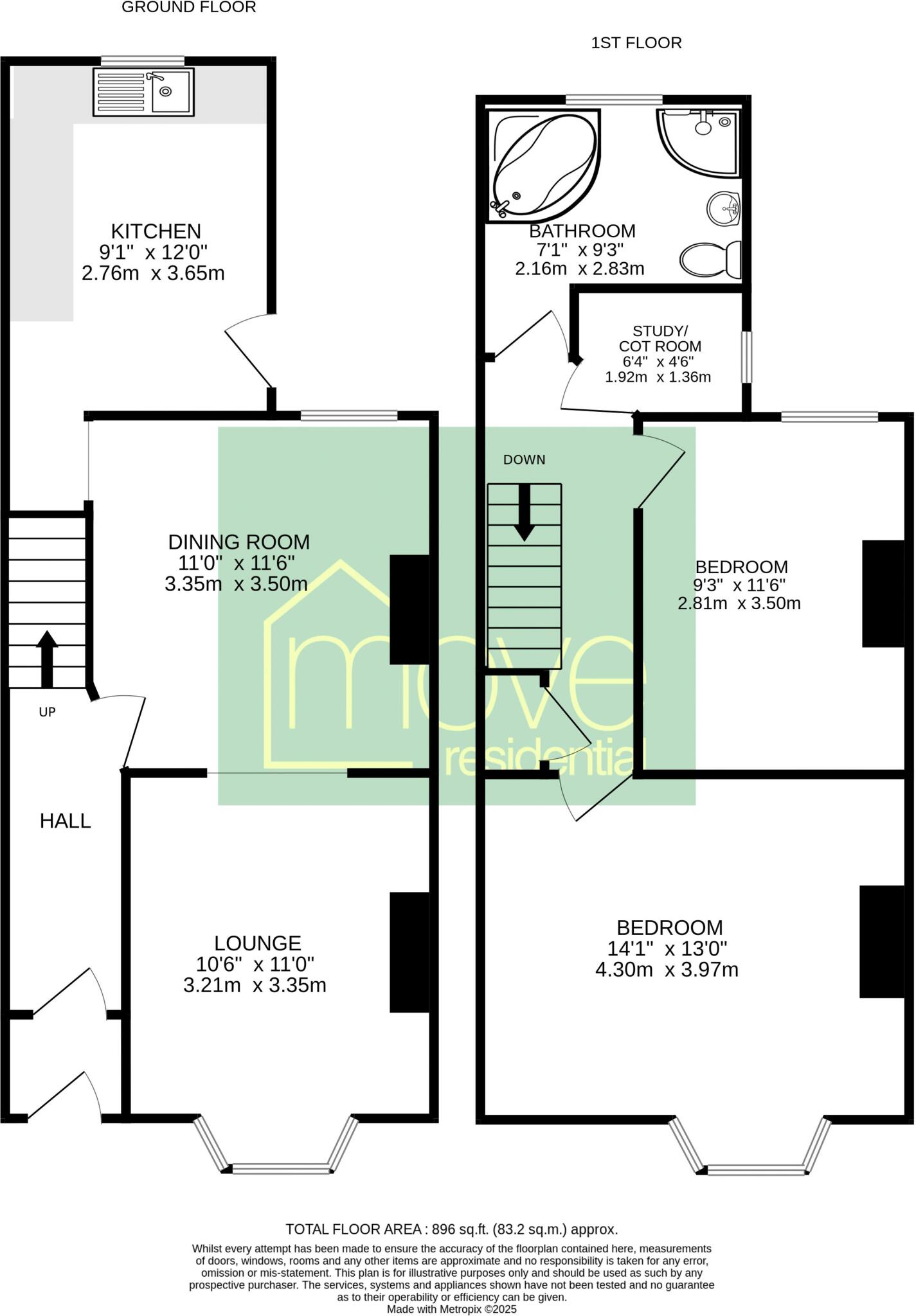
Three bedrooms plus cot room/study
Through lounge diner with bay window
Four-piece bathroom with bath and shower
Enclosed low-maintenance rear yard with gate
Solid brick walls; likely no wall insulation
Located in a very deprived area; crime above average
Fast broadband and excellent mobile signal
This traditional Edwardian mid-terrace offers three bedrooms including a cot room or home study, arranged over two floors with a through lounge-diner and fitted kitchen. The neutral décor and bay-fronted living room create a bright, comfortable interior ready to personalise. Ideal for a first-time buyer or young family seeking affordable space in a convenient urban location.
The property is sold freehold and chain free, with fast broadband and excellent mobile signal—practical for working from home and everyday living. The enclosed low-maintenance rear yard provides secure outdoor space with an access gate, suitable for pets or simple gardening.
Buyers should note the house sits in a very deprived ward with above-average local crime statistics and mostly blue-collar terraces nearby; this may affect resale and rental demand. The solid brick walls are assumed uninsulated, so purchasers should budget for insulation or energy-efficiency improvements. Room sizes and plot are average to small; the layout suits practical family living but offers limited outdoor space.
Overall this is an affordable, ready-to-move-into terrace with period character and scope for value-adding improvements. A straightforward buy for buyers prioritising price, location and broadband connectivity, but plan for possible retrofit work and take local area factors into account.
3 bedroom terraced house for sale in Parkstone Road, Birkenhead, Wirral, CH42 — £175,000 • 3 bed • 1 bath • 967 ft²
3 bedroom terraced house for sale in Beverley Road, New Ferry, Wirral, CH62 — £115,000 • 3 bed • 1 bath • 898 ft²
3 bedroom terraced house for sale in Ashford Road, Birkenhead, Wirral, CH41 — £150,000 • 3 bed • 1 bath • 930 ft²
3 bedroom terraced house for sale in Inglemere Road, Rock Ferry, CH42 — £120,000 • 3 bed • 1 bath • 915 ft²
3 bedroom end of terrace house for sale in Trafalgar Road, Wallasey, Wirral, CH44 — £170,000 • 3 bed • 1 bath • 783 ft²
3 bedroom terraced house for sale in Parkstone Road, Birkenhead, Wirral, CH42 — £190,000 • 3 bed • 1 bath • 948 ft²


























































