Move-in ready home near shoreline and schools, ideal for growing families.
Three bedrooms with a modern family bathroom suite
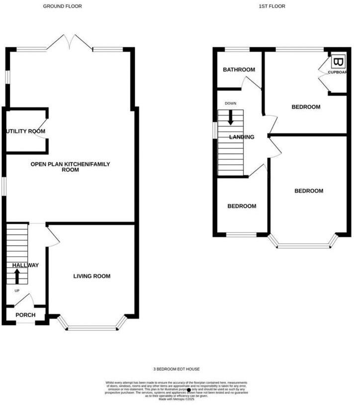
This well-presented end-of-terrace family home offers comfortable, move-in-ready accommodation across three bedrooms and an open-plan ground floor. The large modern kitchen/diner/family room is the heart of the house, with French doors that connect internal and outdoor living and a generous summer house for extra space.
Practical features include a separate lounge, downstairs utility/WC and a gravel driveway providing off-street parking. The property is freehold and comes with no forward chain, making it straightforward for buyers wanting a quick move. The house sits in a sought-after area close to the shoreline, Portchester Castle and several highly rated schools.
Buyers should note the property sits on a relatively small plot and has a single family bathroom, which may be a consideration for larger households. Overall floor area is about 904 sq ft, so while rooms are well-proportioned, space is typical for an average-sized family home. The finish is modern throughout, reducing immediate maintenance or refurbishment needs.
3 bedroom end of terrace house for sale in Windmill Grove, Portchester, PO16 — £340,000 • 3 bed • 1 bath • 905 ft²
3 bedroom terraced house for sale in The Downsway, Portchester, PO16 — £369,995 • 3 bed • 1 bath • 813 ft²
3 bedroom terraced house for sale in White Hart Lane, Portchester, Fareham, PO16 — £362,500 • 3 bed • 2 bath • 1098 ft²
3 bedroom semi-detached house for sale in Moraunt Drive, Portchester, PO16 — £369,950 • 3 bed • 1 bath • 747 ft²
3 bedroom detached house for sale in The Keep, Portchester, PO16 — £350,000 • 3 bed • 1 bath • 894 ft²
3 bedroom semi-detached house for sale in Hill Road, Portchester, PO16 — £379,950 • 3 bed • 1 bath • 1047 ft²


























































