**Standout Features:**
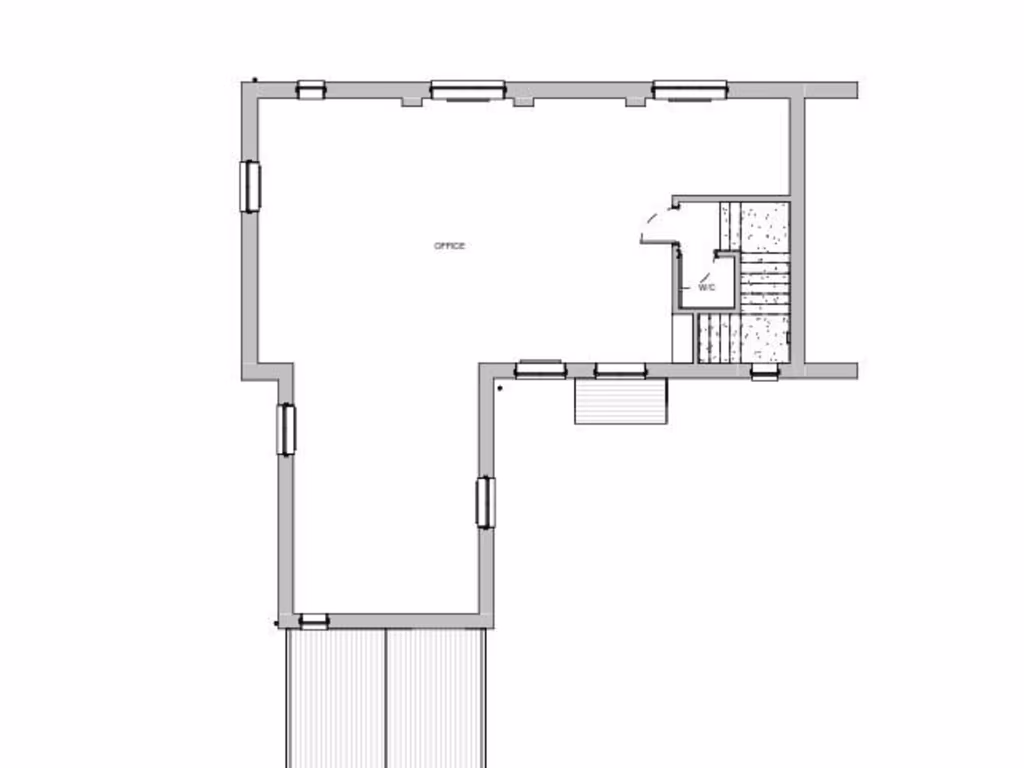
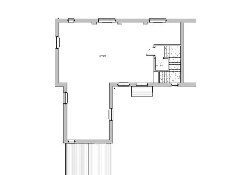
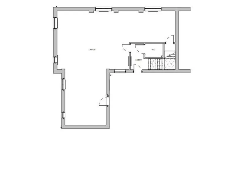
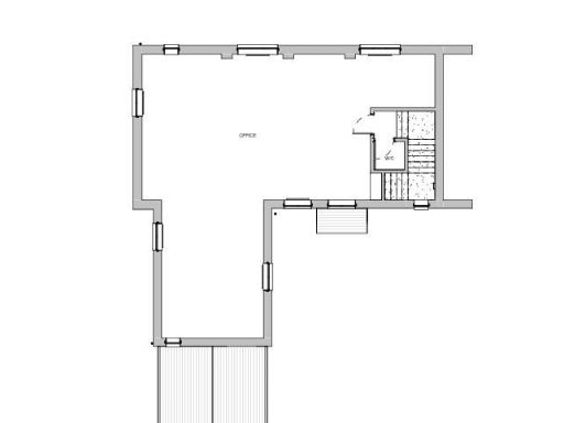
- Two-storey office building with development potential
- Freehold tenure, includes courtyard ownership
- Current layout suitable for conversion into four 1-bedroom flats
- Seven off-street parking spaces
- High-standard interior finishes with modern amenities
- Energy-efficient features: solar panels and potential for EV charging
- Located in a low-crime, affluent suburban area
**Potential Downsides:**
- Current broadband speeds are very slow
- No garden or residential views; surrounds primarily office premises
**Summary:**
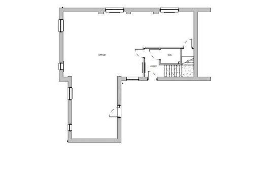
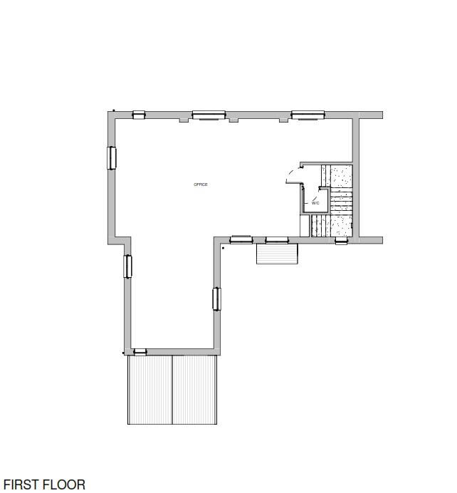
Unlock the full potential of this expansive two-storey office building, situated within a pleasant courtyard development in an affluent, safe community. Spanning **2,147 sq ft**, this property not only offers high-quality interior finishes—including modern lighting and practical amenities—but also presents an exceptional opportunity for conversion into **four 1-bedroom flats**, catering to the growing rental market. The inclusion of **seven private parking spaces** is a rare find, enhancing both convenience and value.
While the building is currently designed for commercial use, the existing layout is ideal for transformation into unique residential spaces, offering contemporary living in a comfortable suburbia. **Energy-efficient solar panels** and provisions for electric vehicle charging add to its future-forward appeal. However, potential buyers should be mindful of the slow broadband speeds and the absence of green space or residential views.
This property presents a unique opportunity for investors looking to capitalize on local demand for rental apartments or for buyers seeking a blend of office space with residential potential. Act now—properties with such versatile offerings don't stay on the market for long!
Office for sale in Profex House, 25-27 School Lane, Bushey, WD23 1SS, WD23 — £400,000 • 1 bed • 1 bath • 962 ft²
Land for sale in Lurke Street, Bedford, Bedfordshire , MK40 — £1,850,000 • 26 bed • 26 bath • 12708 ft²
Commercial property for sale in Lendon Grove, Gubblecote, Tring, HP23 — £500,000 • 1 bed • 1 bath • 2056 ft²
Commercial property for sale in Vimy Road, Leighton Buzzard, LU7 — £880,000 • 1 bed • 1 bath • 4413 ft²
Commercial property for sale in 72-76 Union Street, Dunstable, Bedfordshire, LU6 — £400,000 • 1 bed • 1 bath • 1366 ft²
Commercial property for sale in Lendon Grove, Gubblecote, Tring, HP23 — £500,000 • 1 bed • 1 bath • 2056 ft²


















































