CM16 7RD - 3 bedroom semidetached house for sale in St. Albans Road, C…

View on Property Piper

3 bedroom semi-detached house for sale in St. Albans Road, Coopersale, CM16

Summary - 11 ST ALBANS ROAD COOPERSALE EPPING CM16 7RD

3 bed 2 bath Semi-Detached

**Standout Features:**
- Chain-free, 3-bedroom semi-detached home
- Open-plan kitchen/diner with triple skylights
- Ground floor shower room and family bathroom
- Private landscaped rear garden with patio area
- Off-road parking and integral garage
- Potential to extend (STP)

**Concerns:**
- Built in 1930, some areas may require modernization
- Solid brick walls with assumed no insulation
- Average mobile signal; broadband is fast

This charming 1930s semi-detached property in Coopersale offers a wonderful blend of character and modern living. With three spacious bedrooms, including a primary with an impressive bay window, this home is perfect for families or those looking for a quiet retreat. The inviting open-plan kitchen/diner delivers ample natural light, creating a warm atmosphere ideal for entertaining and relaxation. The additional ground floor shower room is a practical bonus for busy households.

Nestled within a peaceful and affluent village, you are within walking distance to local shops and nature reserves, making it a perfect escape without losing touch with community amenities. The beautifully landscaped garden presents an inviting space for summer gatherings, while off-road parking and an integral garage enhance convenience. With potential for future extensions (subject to planning), this property is an exciting opportunity for anyone looking to add their personal touch. Don’t miss the chance to make this your family’s new home—properties like this don’t stay on the market for long!

Property Details

Image Descriptions

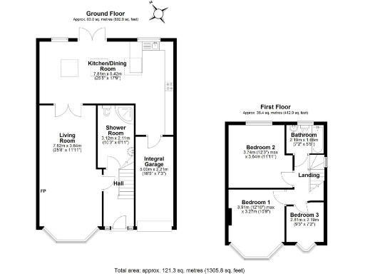
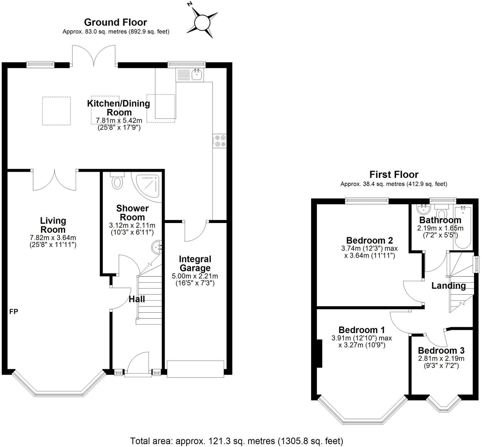
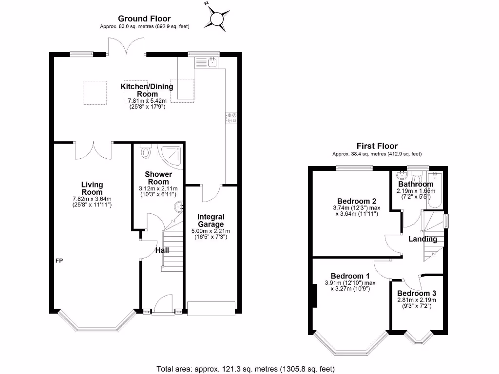
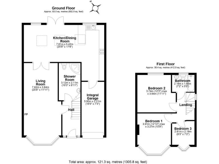
Floorplan Description

Rooms

Textual Property Features

Detected Visual Features

EPC Details

Nearby Schools

Nearest Bars And Restaurants

,,,,}

Nearest General Shops

,,}

Nearest Grocery shops

,,}

Nearest Supermarkets

,,}

Nearest Religious buildings

,,}

Nearest Medical buildings

,,,}

Nearest Airports

,,}

Nearest Leisure Facilities

,,,,}

Nearest Tourist attractions

,,}

Nearest Train stations

,,,,}

Nearest Bus stations and stops

,,,,}

Nearest Hotels

,,}

Tags

Local Market Stats

Similar Properties

Meta

High Res Images

Compatible Images

Low res Images

Thumbnails

Raw Images

High Res Floorplan Images

Compatible Floorplan Images

Low res Floorplan Images

FloorplanImages Thumbnail

Raw Floorplan Images