IP20 9QE - 3 bed quiet cul de sac bungalow in Pilgrims Way, IP20 9QE

View on Property Piper

3 bedroom detached bungalow for sale in Pilgrims Way, Harleston, IP20

Summary - 26 PILGRIMS WAY HARLESTON IP20 9QE

3 bed 1 bath Detached Bungalow

Ideal single level home for downsizers seeking generous garden and nearby amenities.
Chain free and recently redecorated with new carpets throughout
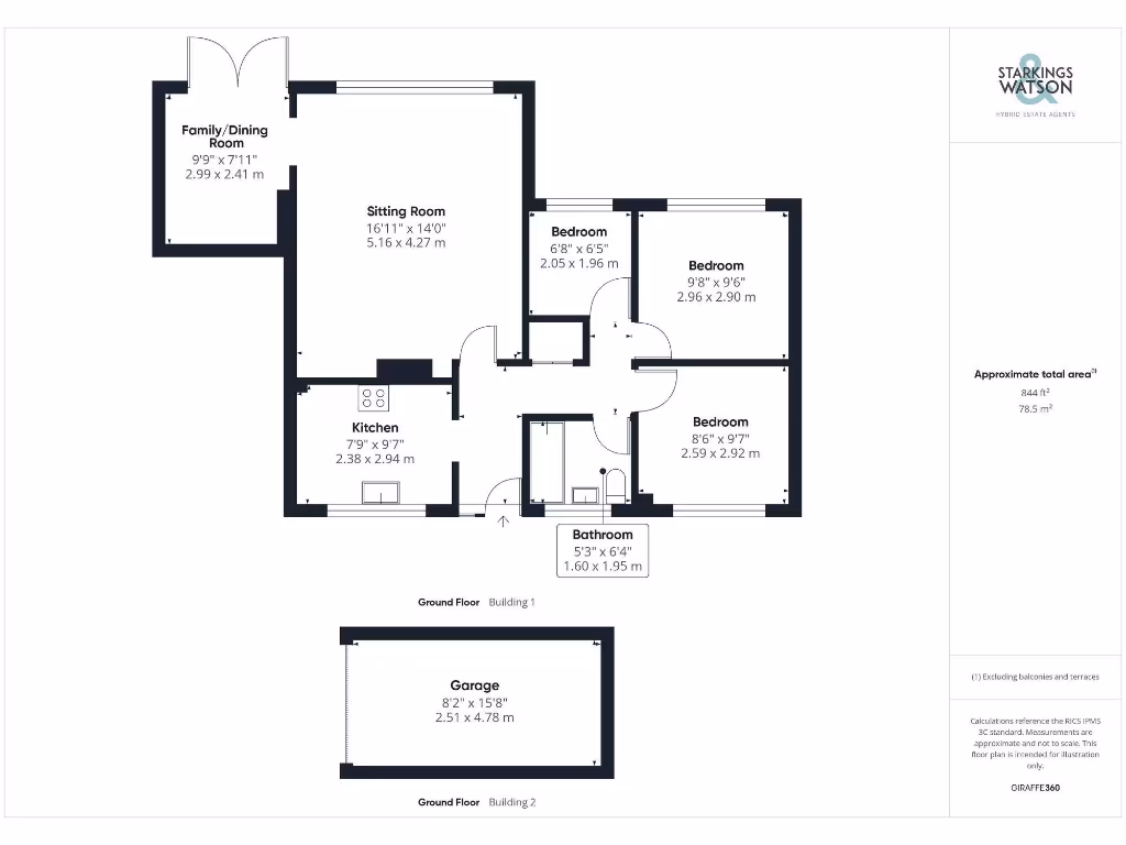
Set at the end of a quiet cul de sac, this link detached three bedroom bungalow is offered chain free and ready to move into. A recent redecoration and new carpets throughout create a bright, neutral backdrop while a 2023 gas boiler gives updated heating confidence. The extended 16' sitting room flows into a family/dining room with French doors out to a fully enclosed, generous rear garden — ideal for easy single level living and outdoor entertaining.

Practical features include a driveway and single garage, with scope to add further parking subject to planning, plus built in kitchen appliances and uPVC double glazing. The layout includes three bedrooms served by a single three-piece family bathroom; the footprint is typical of mid-20th century bungalows and suits downsizers or small families.

Buyers should note a few constraints: there is only one bathroom, broadband speeds are reported slow, and the double glazing was installed prior to 2002 so may not match modern efficiency standards. The property presents modest potential to modernise or reconfigure to add value, but overall is in tidy condition and benefits from a large plot and very low local crime levels.

Conveniently placed within easy walking distance of Harleston town centre amenities and the doctors surgery, this bungalow offers practical, single-storey living in a very affluent, rural fringe location. Viewing recommended for anyone seeking low‑maintenance, ground‑floor accommodation with garden space and parking in a peaceful setting.

Property Details

Brochure Descriptions

Image Descriptions

Floorplan Description

Rooms

Textual Property Features

Target Audience

AI Tags

Detected Visual Features

EPC Details

Nearby Schools

Nearest Bars And Restaurants

,,,,}

Nearest General Shops

,,}

Nearest Grocery shops

,,}

Nearest Supermarkets

,,}

Nearest Religious buildings

,,}

Nearest Medical buildings

,,,}

Nearest Leisure Facilities

,,,,}

Nearest Tourist attractions

,,}

Nearest Train stations

,,,,}

Nearest Bus stations and stops

,,,,}

Nearest Hotels

,,}

Tags

Local Market Stats

Similar Properties

Meta

High Res Images

Compatible Images

Low res Images

Thumbnails

Raw Images

High Res Floorplan Images

Compatible Floorplan Images

Low res Floorplan Images

FloorplanImages Thumbnail

Raw Floorplan Images