SK8 7DX - 3 bedroom house for sale in Rowan Drive, Cheadle Hulme, SK8

View on Property Piper

3 bedroom house for sale in Rowan Drive, Cheadle Hulme, SK8

Summary - 18 ROWAN DRIVE CHEADLE HULME CHEADLE SK8 7DX

3 bed 1 bath House

**Standout Features:**
- Three spacious bedrooms, perfect for families.
- Desirable location within the Cheadle Hulme High School catchment area.
- Open-plan dining kitchen leading to a south-facing rear garden.
- Generous driveway and single garage for ample parking.
- Chain-free sale for a smooth transaction.
- Low crime rate and affluent community environment.
- Recent double glazing enhances energy efficiency.

**Potential Downsides:**
- Built in the mid-1970s, may require modern updates.
- Limited internal storage space aside from fitted wardrobes.

**Summary Description:**
Discover this delightful three-bedroom semi-detached home ideally situated in a sought-after area, just steps away from excellent schools like Cheadle Hulme High School. The inviting open-plan dining kitchen flows directly into a generous, beautifully landscaped south-facing garden, creating a perfect setting for family gatherings and outdoor relaxation. With well-proportioned bedrooms and a light-filled living room featuring a charming fireplace nook, this property offers both comfort and functionality. Additionally, the large driveway and attached garage provide valuable parking.

While built in the mid-1970s, this residence displays great potential for minor updates to customize it to your tastes. Enjoy the benefits of living in an affluent community with easy access to local amenities, and take advantage of a chain-free sale for a prompt move. This home presents a unique opportunity for families seeking both space and proximity to top educational institutions—don’t miss out!

Property Details

Brochure Descriptions

Image Descriptions

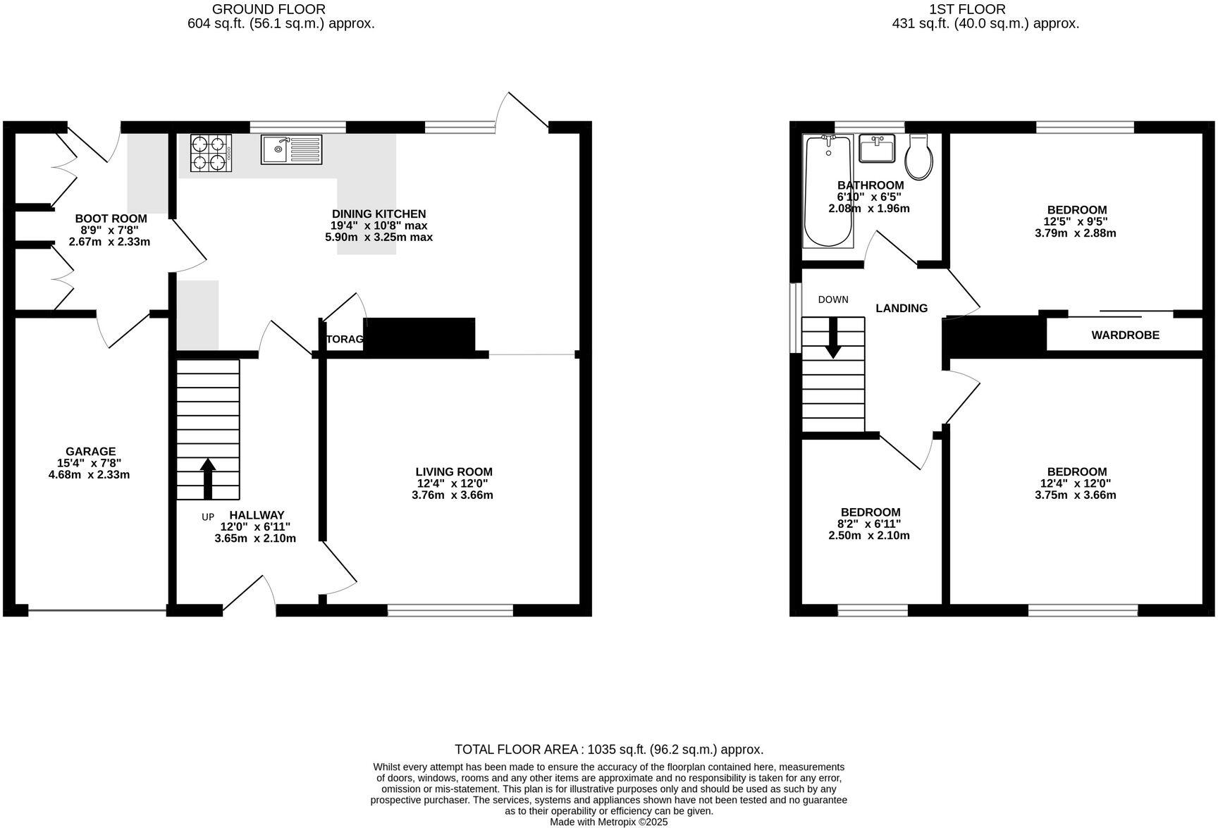
Floorplan Description

Rooms

Textual Property Features

Detected Visual Features

EPC Details

Nearby Schools

Nearest Bars And Restaurants

,,,,}

Nearest General Shops

,,}

Nearest Grocery shops

,,}

Nearest Supermarkets

,,}

Nearest Religious buildings

,,}

Nearest Medical buildings

,,,}

Nearest Airports

}

Nearest Leisure Facilities

,,,,}

Nearest Tourist attractions

,,}

Nearest Train stations

,,,,}

Nearest Bus stations and stops

,,,,}

Nearest Hotels

,,}

Tags

Local Market Stats

AirBnB Data

Similar Properties

Meta

High Res Images

Compatible Images

Low res Images

Thumbnails

Raw Images

High Res Floorplan Images

Compatible Floorplan Images

Low res Floorplan Images

FloorplanImages Thumbnail

Raw Floorplan Images