Compact period conversion with communal roof terrace and strong transport links.
Bright one-bedroom flat with high ceilings and large windows
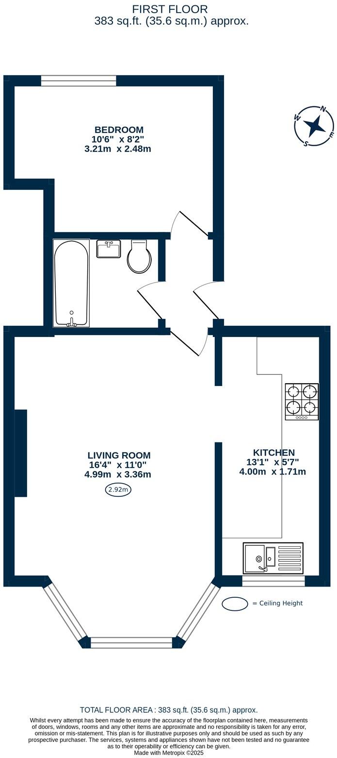
A compact, bright one-bedroom flat in a handsome period conversion on Gascony Avenue, ideal for first-time buyers or buy-to-let investors. High ceilings and large windows give a surprisingly airy feel across the living space, and the communal roof terrace adds valuable outside space in this central location.
The accommodation extends to approximately 383 sq ft and is presented in good decorative order, with timber floors and a fitted kitchen. The layout is efficient and easily lettable; cosmetic updating to the kitchen and bathroom would likely add value quickly. Broadband speeds are fast and mobile signal is excellent — practical for modern living or remote working.
Important practical points: this is a leasehold property with about 90 years remaining, a below-average service charge (£958) and a modest ground rent (£10). There is no private garden and the apartment is compact, so it suits a single occupant, couple, or investor targeting central NW6 rentals. Solid brick walls are assumed uninsulated, which may mean further thermal improvements are possible.
Location strengths include proximity to West End Lane and Kilburn High Road amenities, good public transport links (Underground, Overground and Thameslink nearby), and low local crime. Overall this is a value-focused purchase with clear scope to enhance through light refurbishment and reconfiguration where allowed under the lease.
2 bedroom flat for sale in Gascony Avenue, London, NW6 — £750,000 • 2 bed • 2 bath • 978 ft²
1 bedroom flat for sale in Gascony Avenue, West Hampstead, NW6 — £450,000 • 1 bed • 1 bath • 462 ft²
1 bedroom flat for sale in Gascony Avenue, West Hampstead, NW6 — £475,000 • 1 bed • 1 bath • 556 ft²
1 bedroom flat for sale in Maygrove Road, Kilburn, NW6 — £400,000 • 1 bed • 1 bath • 447 ft²
1 bedroom flat for sale in Kingsgate Road, Kilburn, NW6 — £325,000 • 1 bed • 1 bath • 366 ft²
1 bedroom flat for sale in St. Julians Road, Kilburn, NW6 — £335,000 • 1 bed • 1 bath • 408 ft²


















































