Charming three-bedroom home near open countryside and strong transport links.
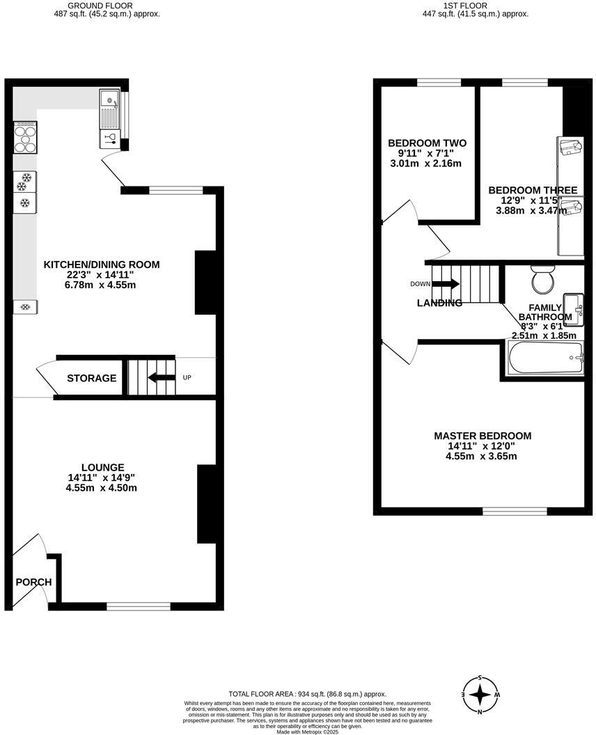
3 double bedrooms with countryside views
Bespoke kitchen with integrated appliances and dining area
Living room with exposed beams and wood-burning stove
Landscaped split-level rear garden backing onto woodland
On-street parking only; no garage
Small plot and modest room sizes for some buyers
Stone-built walls likely lack cavity insulation (assumed)
Single family bathroom; may need scheduling for busy households
Set on the semi-rural edge of Blackburn, this three-bedroom mid-terrace cottage combines period character with updated living spaces. The home offers open countryside views, a bespoke kitchen with integrated appliances, and a light-filled living room with a wood-burning stove — ideal for families seeking a quiet retreat with good transport links.
Accommodation is arranged over multiple floors with a spacious master bedroom, two further bedrooms (one suitable as a single or home office) and a modern three-piece family bathroom. The property is well presented throughout, benefits from double glazing, a mains gas boiler with radiators and an EPC rating of C.
Outside, a gated front patio and landscaped split-level rear garden provide privacy and direct access to mature woodland. Parking is on-street only and there’s no garage, but nearby train stations and the M65 make commuting straightforward. Local schools rated highly and low local crime levels add to the family appeal.
Some practical points to note: the house was constructed around the 1930s–1940s and external stone walls are assumed uninsulated, which could affect heating costs long term. The plot is small and the layout includes one bathroom, which may be a consideration for larger households. Overall this is a charming, well-located home with scope for energy upgrades and modest modernisation where desired.
3 bedroom terraced house for sale in Broadfield, Oswaldtwistle, BB5 — £259,950 • 3 bed • 1 bath • 762 ft²
2 bedroom terraced house for sale in Pall Mall, Blackburn, Lancashire, BB2 — £280,000 • 2 bed • 2 bath • 1098 ft²
3 bedroom cottage for sale in Pleckgate Fold, Blackburn, BB1 — £240,000 • 3 bed • 3 bath • 1023 ft²
3 bedroom cottage for sale in Copster Green, Blackburn, BB1 — £399,950 • 3 bed • 1 bath • 1163 ft²
2 bedroom terraced house for sale in Beardwood Fold, Beardwood, Blackburn, Lancashire, BB2 — £190,000 • 2 bed • 1 bath • 889 ft²
2 bedroom terraced house for sale in Pleckgate Road, Blackburn, BB1 — £149,950 • 2 bed • 1 bath • 689 ft²














































































































