GU15 3BD - 3 bed spacious three bedroom semi in Frimley Road, GU15 3BD

View on Property Piper

3 bedroom semi-detached house for sale in Frimley Road, Camberley, GU15

Summary - 36 FRIMLEY ROAD CAMBERLEY GU15 3BD

3 bed 1 bath Semi-Detached

Chain‑free three-bed semi with approved loft conversion and multiple parking spaces.
No onward chain — vacant possession available
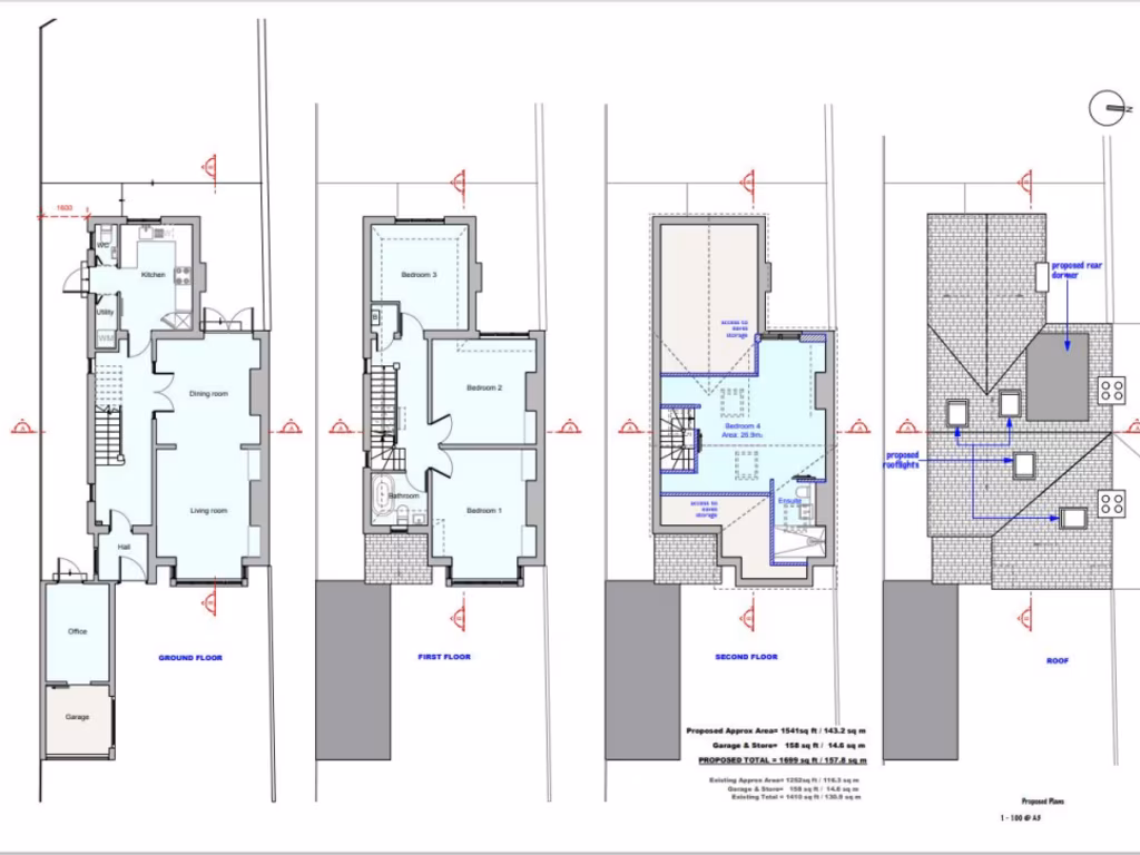
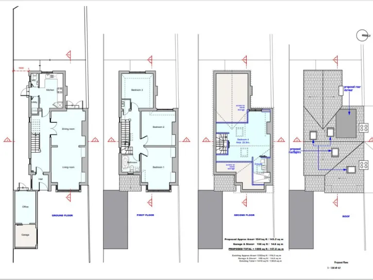
Three double bedrooms; approved loft conversion to a four‑bed with master en suite
Driveway parking for multiple cars plus single garage
Single family bathroom with separate WC (limited bathroom provision)
Cavity wall insulation, double glazing and gas central heating in place
Well presented but scope for further modernisation in places
Large overall footprint ~1,410 sq ft; decent rear garden
Close to Camberley centre, transport links and good local schools
Light, spacious and offered chain-free, this semi‑detached 3-bedroom home on Frimley Road suits growing families or buyers seeking straightforward extension potential. The ground floor flows from a bay-front reception through a dining room into a practical kitchen, with a neat rear garden and store. Driveway parking for multiple cars plus a single garage add everyday convenience.

A significant value driver is the approved loft conversion: the proposed plan creates a four-bedroom layout with a large master en suite, adding substantial living space and resale value. The house already benefits from double glazing, cavity wall insulation and gas central heating, making it comfortable now and efficient after the loft works.

Arrange a viewing if you want a well-presented home in an affluent, low‑crime area near Camberley town centre, Frimley Park Hospital and several good primary and secondary schools. Be aware this property has a single family bathroom with a separate WC, so families should consider whether the current arrangement suits them before or after the loft conversion.

Property Details

Brochure Descriptions

Image Descriptions

Floorplan Description

Rooms

Textual Property Features

Target Audience

AI Tags

Detected Visual Features

EPC Details

Nearby Schools

Nearest Bars And Restaurants

,,,,}

Nearest General Shops

,,}

Nearest Grocery shops

,,}

Nearest Supermarkets

,,}

Nearest Religious buildings

,,}

Nearest Medical buildings

,,,}

Nearest Airports

}

Nearest Leisure Facilities

,,,,}

Nearest Tourist attractions

,,}

Nearest Train stations

,,,,}

Nearest Bus stations and stops

,,,,}

Nearest Hotels

,,}

Tags

Local Market Stats

AirBnB Data

Similar Properties

Meta

High Res Images

Compatible Images

Low res Images

Thumbnails

Raw Images

High Res Floorplan Images

Compatible Floorplan Images

Low res Floorplan Images

FloorplanImages Thumbnail

Raw Floorplan Images