S73 8LL - 2 bed renovated two bedroom terrace in Blythe Street, S73 8…

View on Property Piper

2 bedroom terraced house for sale in Blythe Street, Wombwell, Barnsley, South Yorkshire, S73

Summary - 102 BLYTHE STREET WOMBWELL BARNSLEY S73 8LL

2 bed 1 bath Terraced

Chain-free, newly renovated two-bed terrace with garden and parking—ideal first home or rental.
Chain free and vacant, ready to move into
Newly renovated interior with EPC C rating
Enclosed lawn and timber decking, small garden plot
Off-street parking included
Mains gas boiler and radiators, double glazing present
Solid brick walls likely uninsulated (built 1930–1949)
Located in a very deprived area with high local crime
Close to Wombwell station, shops, buses and primary schools
This freshly renovated two-bedroom mid-terrace on Blythe Street is offered chain free and ready to move into. The house has a neat enclosed lawn and timber deck, plus off-street parking — practical assets for a first home. Recent works and an EPC C rating mean heating and basic fabric are in reasonable condition.

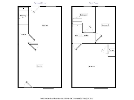
Layout is straightforward across two storeys with a living room, kitchen, bathroom and two bedrooms. Mains gas boiler and radiators provide central heating; the property benefits from double glazing (install date unknown). Good digital connectivity and a short walk to Wombwell station make commuting feasible.

Buyers should note the wider context: the street sits in a very deprived area with high local crime statistics. The property’s solid brick walls were built pre-1950 and are assumed to lack cavity insulation — further thermal upgrades are possible if required. The plot is small, so outdoor space is modest rather than generous.

This home suits a first-time buyer looking for a low-entry purchase with immediate occupancy, or an investor seeking a straightforward let in a well-connected town. Be realistic about local social and maintenance considerations; a viewing will best communicate the house’s practical strengths and limitations.

Property Details

Image Descriptions

Floorplan Description

Rooms

Textual Property Features

Target Audience

AI Tags

Detected Visual Features

EPC Details

Nearby Schools

Nearest Bars And Restaurants

,,,,}

Nearest General Shops

,,}

Nearest Grocery shops

,,}

Nearest Supermarkets

,,}

Nearest Religious buildings

,,}

Nearest Medical buildings

,,,}

Nearest Leisure Facilities

,,,,}

Nearest Tourist attractions

,,}

Nearest Train stations

,,,,}

Nearest Bus stations and stops

,,,,}

Nearest Hotels

,,}

Tags

Local Market Stats

Similar Properties

Meta

High Res Images

Compatible Images

Low res Images

Thumbnails

Raw Images

High Res Floorplan Images

Compatible Floorplan Images

Low res Floorplan Images

FloorplanImages Thumbnail

Raw Floorplan Images