**Standout Features:**
- Charming stone-built terrace cottage
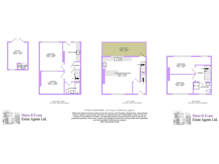
- Fully refurbished over three floors (1268 sqft)
- Open-plan living-dining-kitchen with modern design
- Three good-sized bedrooms and two contemporary bathrooms
- Separate lounge and utility/boot room
- Split-level garden with ornamental pond and home office
- Private off-street parking for two vehicles
- EV charging point
- Chain-free sale
- Low crime rate in a tranquil, affluent rural setting
**Summary:**
Discover the charm of this delightful stone-built terrace cottage nestled in a serene, affluent hamlet. Spanning 1268 sqft over three levels, the completely refurbished home features an open-plan living-dining-kitchen designed for modern comfort, complete with a stylish kitchen island and ample storage. The spacious lounge, a convenient ground-floor bedroom, and a contemporary three-piece bathroom enhance the practicality of living here.
On the upper floor, two excellent double bedrooms and another modern shower room offer private retreats. The highlight is the beautifully designed split-level garden, ideal for outdoor enjoyment and featuring a recently renovated home office with a washroom—a perfect workspace for remote professionals.
In addition to the peaceful surroundings and charming aesthetics, this property boasts a private parking space for two vehicles and pre-installed provisions for an electric vehicle charging point. Whether you're a family seeking a picturesque lifestyle or an investor looking for rental potential, this home offers comfort and future possibilities in a desirable countryside setting. Don’t miss your chance to own this enchanting property; arrange your viewing today!
5 bedroom house for sale in Gorsey Lane, Mawdesley, L40 3TF, L40 — £850,000 • 5 bed • 3 bath • 2349 ft²
4 bedroom cottage for sale in Church Road, Rufford, L40 1TA, L40 — £630,000 • 4 bed • 2 bath • 2050 ft²
3 bedroom house for sale in Bay Tree Cottage, Chorley Road, Hilldale, WN8 — £525,000 • 3 bed • 2 bath • 1465 ft²
3 bedroom semi-detached house for sale in Hall Lane, Mawdesley, L40 — £435,000 • 3 bed • 1 bath • 1576 ft²
3 bedroom cottage for sale in New Street, Mawdesley, Ormskirk, Lancashire, L40 — £310,000 • 3 bed • 1 bath • 1292 ft²
3 bedroom end of terrace house for sale in 46 Drinkhouse Road, Croston, Leyland PR26 9JH, PR26 — £410,000 • 3 bed • 1 bath • 967 ft²






















































































































































