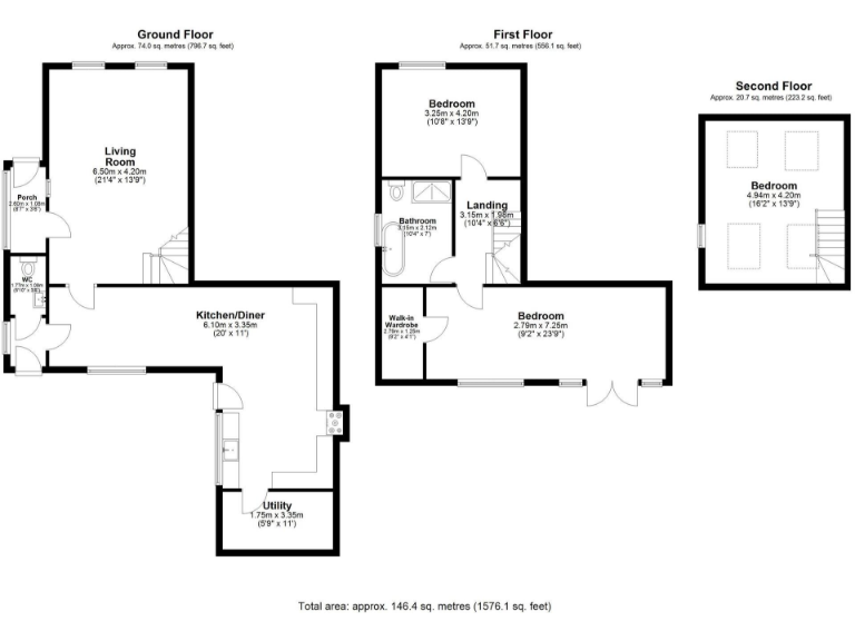
**Standout Features:**
- Unique period semi-detached cottage over three floors
- 3 spacious double bedrooms with natural light
- Character-rich interior with exposed beams, brickwork, and wood-burning stove
- 4-piece family bathroom
- Expansive rear garden adorned with beautiful roses and countryside views
- Generous and practical layout with a utility room and WC
- Located in the desirable Mawdesley village with excellent schooling options
- Freehold tenure, large square footage (1576 sq ft), and low crime rates
- Garage and ample outdoor space
**Summary:**
Discover the charm and character of this unique semi-detached cottage nestled in the desirable Mawdesley village. Spanning over three beautifully designed floors, the home offers three double bedrooms, a spacious 4-piece family bathroom, and an inviting ground floor that flows smoothly through a character-filled lounge and a charming kitchen-diner, all enhanced by rustic wooden beams and a cozy wood-burning stove.
Step outside to your extensive rear garden, a serene retreat perfect for gardening enthusiasts or al fresco dining, all while enjoying stunning countryside views. The property is ideally situated for families, with excellent local schools and amenities within easy reach. With a freehold tenure and low crime rates, this home combines comfort and security in a picturesque setting.
Don’t miss this rare opportunity to own a charming piece of countryside living. Early viewing is highly encouraged—properties like this don’t stay on the market for long!
3 bedroom cottage for sale in New Street, Mawdesley, Ormskirk, Lancashire, L40 — £310,000 • 3 bed • 1 bath • 1292 ft²
3 bedroom semi-detached house for sale in Daub Lane, Bispham, Ormskirk, L40 — £595,000 • 3 bed • 1 bath • 1753 ft²
3 bedroom semi-detached house for sale in Sycamore Close, Mawdesley, L40 2QR, L40 — £365,000 • 3 bed • 2 bath • 1259 ft²
3 bedroom end of terrace house for sale in New Street, Mawdesley, L40 — £475,000 • 3 bed • 1 bath • 2155 ft²
3 bedroom terraced house for sale in The Forge, Maltkiln Lane, Bispham, L40 — £399,000 • 3 bed • 2 bath • 1268 ft²
3 bedroom semi-detached house for sale in The Green, Mawdesley, L40 — £315,000 • 3 bed • 1 bath • 1010 ft²






























































































































































