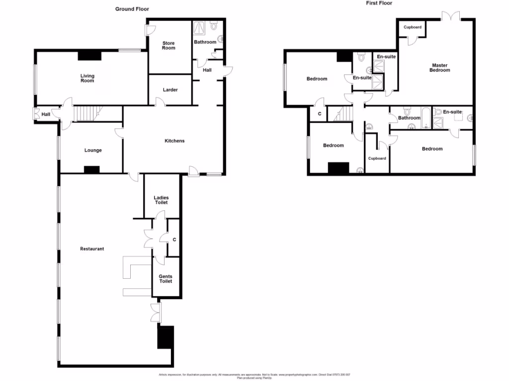
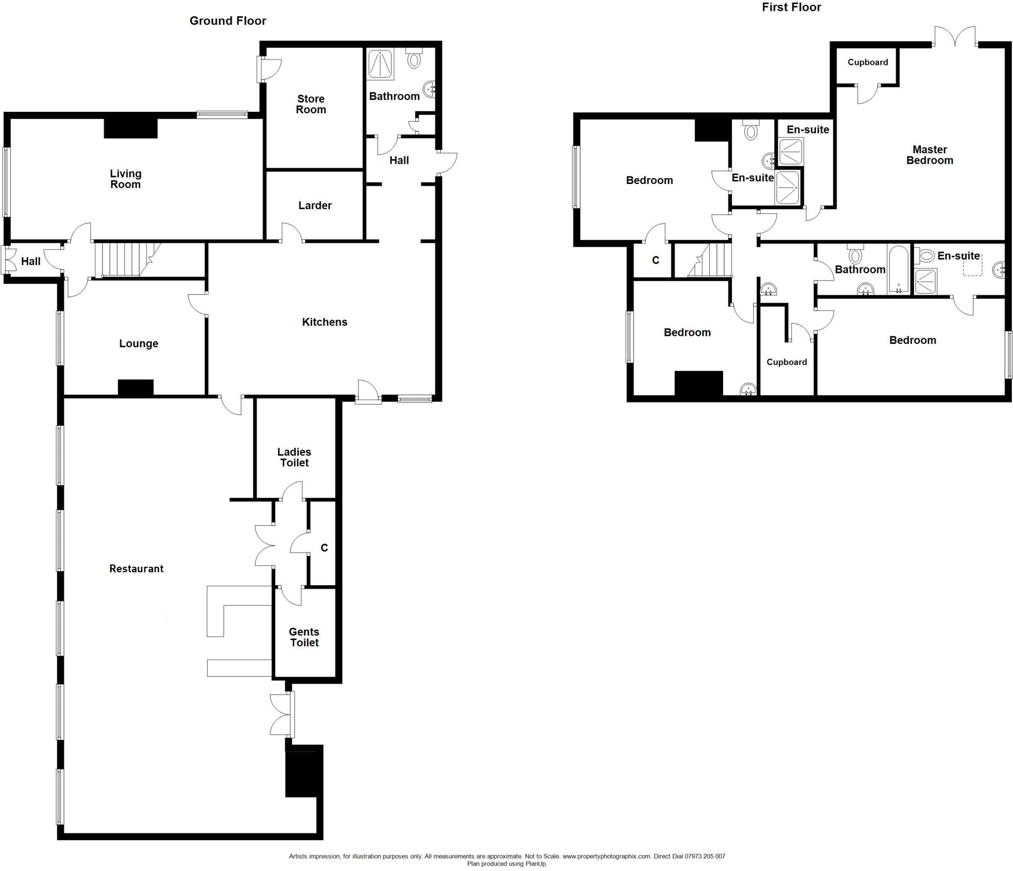
Established 60-cover roadside café with four-bed house and large car park..
- Established licensed restaurant with approximately 60 internal covers
- Additional al-fresco dining for around 16 covers with paved terrace
- Profitable trading history; currently licensed for evening trade
- Adjoining four-bedroom house, three bedrooms with en-suite bathrooms
- Large car park with parking for about 20 vehicles and excellent visibility
- Substantial building (approx. 5,619 sq ft) — requires ongoing maintenance
- Change of use or substantial alterations require statutory consents
- Located in a very deprived, remoter agricultural area (may limit local footfall)
A rare freehold opportunity combining an established 60-cover licensed café/restaurant and an adjoining four-bedroom house with three en-suite bathrooms. The restaurant includes a well-equipped commercial kitchen, bar, al-fresco dining for approx. 16 covers, and a large car park with room for around 20 vehicles — suited to a continuing hospitality business or conversion to alternative commercial uses (subject to statutory consents).
The attached house offers generous family accommodation across multiple levels: a large lounge with multi-fuel stove, separate dining room, four bedrooms (three en-suite) and private gardens with decked seating and pergola. Rural views and strong roadside visibility on the A458 bring passing trade and tourism potential, especially given evening trading is currently licensed.
Potential buyers should note the property sits in a very deprived, remoter/agricultural area — this brings lower local overheads but may limit local day-to-day footfall and recruitment. Any change of use or major operational shift will require statutory consents. The building is substantial (approx. 5,619 sq ft) and will demand ongoing maintenance and management typical of mixed residential/commercial premises.
This is best suited to an operator or investor wanting an income-generating business with on-site accommodation, or a buyer prepared to invest in refurbishment and planning to unlock alternative commercial or leisure opportunities along a busy coastal-main road route.
Cafe for sale in Dyffryn Cafe, Welshpool, SY21 0NR, SY21 — £550,000 • 1 bed • 1 bath • 5619 ft²
Commercial property for sale in Wynnstay Arms Hotel, Llanbrynmair, Powys, SY19 — £410,000 • 1 bed • 1 bath • 10839 ft²
4 bedroom detached house for sale in Bryn Derw, Park Street, Llanrhaeadr Ym Mochnant, SY10 — £450,000 • 4 bed • 3 bath • 1495 ft²
7 bedroom detached house for sale in Carno, Caersws, Powys, SY17 — £595,000 • 7 bed • 5 bath • 2087 ft²
4 bedroom country house for sale in Llanfair Caereinion, Welshpool, SY21 — £950,000 • 4 bed • 2 bath • 3038 ft²
5 bedroom detached house for sale in Mount Road, Llanfair Caereinion, Welshpool, SY21 — £495,000 • 5 bed • 2 bath • 2850 ft²










































































































































































































































































































