Large family cottage with double garage and walled garden in Cosby village.
Detached character cottage with spacious 2,455 sq ft interior
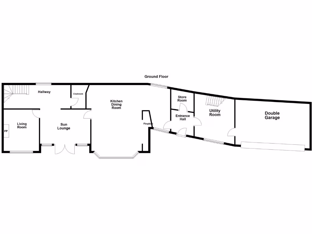
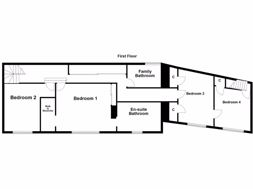
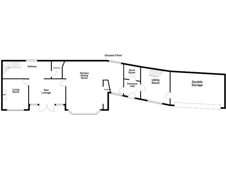
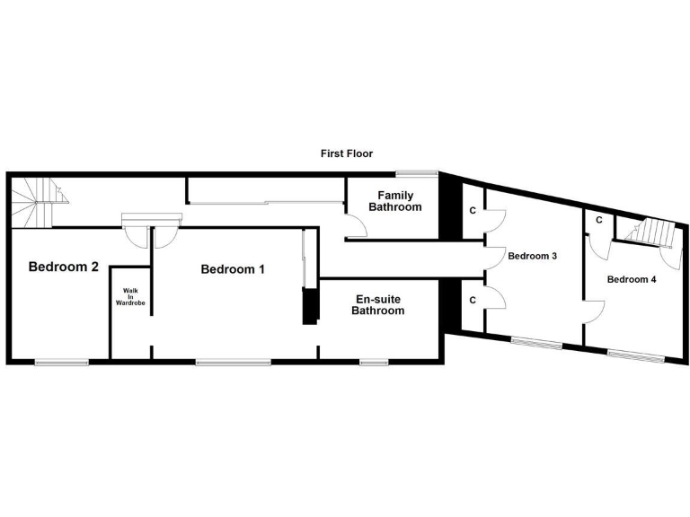
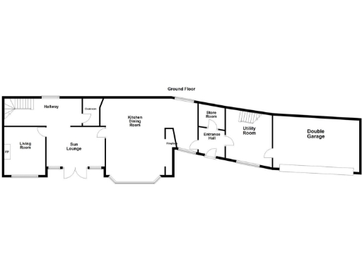
This detached, character cottage in Cosby offers generous family space across about 2,455 sq ft on a very large plot. The heart of the home is a wide open-plan kitchen/diner with an open fireplace, flowing through a sun lounge to a formal sitting room — ideal for everyday family living and entertaining. Four double bedrooms include a master with walk-in wardrobe and en suite, while useful ancillary rooms include a boot/utility, separate store room and a large double garage with internal access.
Practical conveniences are strong: double glazing, mains gas central heating and a gated gravel drive leading to twin garage doors provide comfortable, practical living. The enclosed walled garden and mature borders give privacy and a safe outdoor play area for children or pets. Local amenities, village character and nearby schools suit families wanting a semi-rural yet well-connected lifestyle.
Buyers should note material considerations: the house was constructed before 1900 with solid brick walls (no known cavity or insulation) and currently has an EPC rating of E, so energy-efficiency improvements are likely needed. Council Tax Band F means ongoing running costs are higher than average, and the property sits in a medium flood-risk area — buyers should seek specific flood and insurance advice. Overall, this is a spacious, characterful family home that will reward sympathetic updating and energy upgrades while delivering immediate practical benefits.
3 bedroom cottage for sale in Main Street, Cosby, Leicester, LE9 — £425,000 • 3 bed • 2 bath • 1241 ft²
3 bedroom semi-detached house for sale in Park Road, Cosby, Leicester, LE9 — £375,000 • 3 bed • 1 bath • 1195 ft²
4 bedroom detached house for sale in Main Street, Cosby, Leicester, LE9 — £375,000 • 4 bed • 2 bath • 1135 ft²
4 bedroom detached house for sale in Chapel Lane, Cosby, Leicester, LE9 — £440,000 • 4 bed • 2 bath • 1984 ft²
4 bedroom semi-detached house for sale in The Banks, Cosby, Leicestershire, LE9 — £375,000 • 4 bed • 3 bath • 1572 ft²
4 bedroom detached house for sale in Cromford Road, Cosby, Leicester, LE9 — £400,000 • 4 bed • 3 bath • 1425 ft²


















































































































































