ST18 9SY - Detached bungalow for sale in Marston Lane, Marston, ST18

View on Property Piper

Detached bungalow for sale in Marston Lane, Marston, ST18

Summary - Marston Lane, Marston ST18 9SY

1 bed 1 bath Detached Bungalow

**Standout Features:**
- **Planning Permission Granted:** Conversion of existing stable into a residential dwelling (Planning application number 24/39605/FUL).
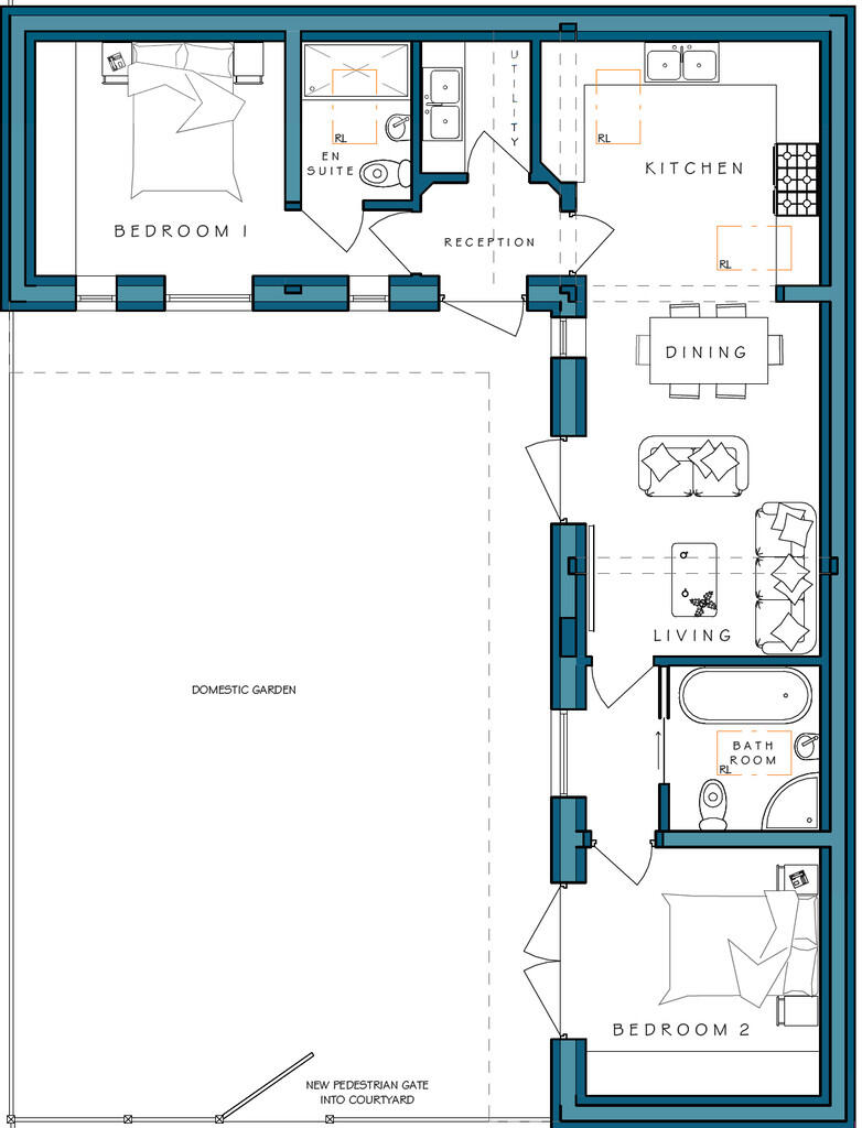
- **Size & Potential:** Approx. 70m² gross internal floor area with ample outdoor space (approx. 3.6 acres).
- **Scenic Location:** Situated in a peaceful countryside environment, ideal for equestrian enthusiasts.
- **Access & Connectivity:** Conveniently located approximately 15 minutes from Stafford and Stone, with good links to London via the intercity railway.
- **Utilities:** Site has water and electricity (to be separated from Arden House); no mains drainage or gas.

This exclusive property offers a rare opportunity to convert a charming stable into a unique residential dwelling set within approximately 3.6 acres of picturesque countryside. With approved planning permission, you can bring your vision to life in this serene setting, perfect for both families and equestrian lovers. The generous space allows for future expansions or renovations, tailored to your needs.

Situated just 15 minutes from Stafford, enjoy the perfect blend of rural tranquility and modern-day convenience—ideal for commuting professionals or those yearning for a peaceful escape. However, note that while the site is connected to essential utilities, mains drainage is not available, and present access to water and electricity will require attention.

With spacious potential and a stunning backdrop, this property is not just a home but a lifestyle waiting to unfold. Don’t miss your chance to own this remarkable piece of rural real estate; seize the opportunity before it’s gone!

Property Details

Image Descriptions

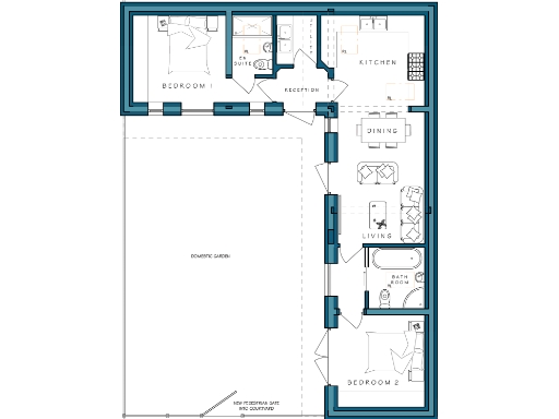
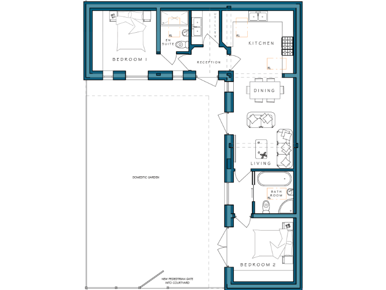
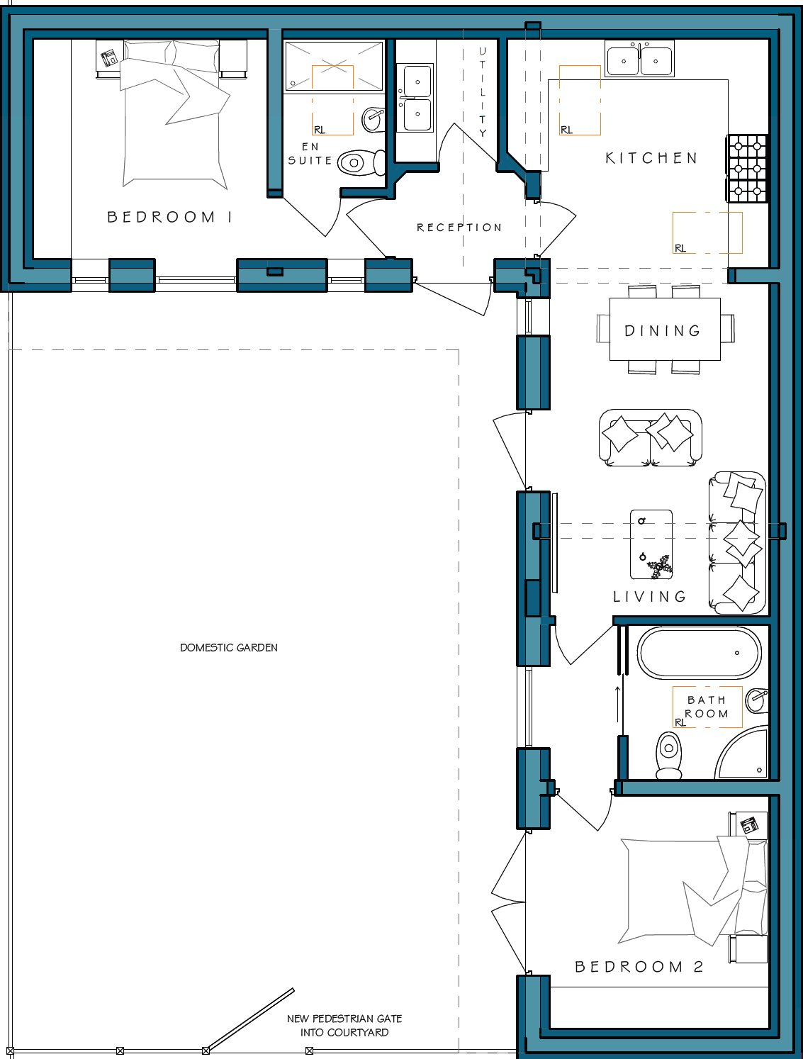
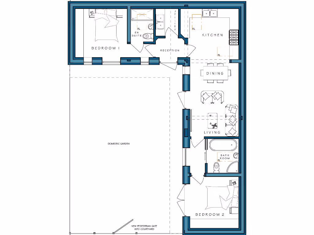
Floorplan Description

Rooms

Textual Property Features

Detected Visual Features

Nearby Schools

Nearest Bars And Restaurants

,,,,}

Nearest General Shops

,,}

Nearest Grocery shops

,,}

Nearest Supermarkets

,,}

Nearest Religious buildings

,,}

Nearest Medical buildings

,,,}

Nearest Leisure Facilities

,,,,}

Nearest Tourist attractions

,,}

Nearest Train stations

,,,,}

Nearest Bus stations and stops

,,,,}

Nearest Hotels

,,}

Tags

Local Market Stats

Similar Properties

Meta

High Res Images

Compatible Images

Low res Images

Thumbnails

Raw Images

High Res Floorplan Images

Compatible Floorplan Images

Low res Floorplan Images

FloorplanImages Thumbnail

Raw Floorplan Images