BD23 5JA - 3 bed dales stone cottage in Buckden, BD23 5JA

View on Property Piper

3 bedroom cottage for sale in Moor View, Buckden, Skipton, BD23

Summary - MOOR VIEW BUCKDEN SKIPTON BD23 5JA

3 bed 1 bath Cottage

Characterful three‑double cottage with gardens, outbuilding and panoramic Dales views..
Three double bedrooms across three floors with exposed stone and beams|Generous open plan living/dining room with multi‑fuel stove|Front and rear gardens with paved seating and Dales views|Substantial stone outbuilding with power, lighting and utility area|Chain free freehold in the Yorkshire Dales National Park|Oil‑fired boiler and radiators — running costs and servicing expected|Stone walls likely have limited insulation — potential upgrade needed|Single family bathroom only; buyers should check layout needs
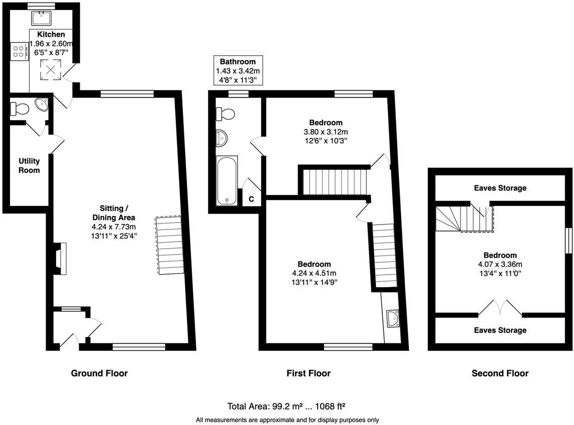
Set in the heart of Buckden with sweeping Dales views, Moor View is a picture‑postcard three double‑bedroom cottage that balances period character with usable modern space. The generous open‑plan living/dining room, exposed beams, multi‑fuel stove and window seat create a warm, sociable ground floor, while the top floor bedroom and exposed stone wall add rustic appeal.

Practical features include front and rear gardens, a substantial stone outbuilding with power and lighting, and a compact modern kitchen with integrated appliances. The property is chain free and freehold, making it straightforward to move into or let out. The plot is a decent size for the area and the cottage sits within the Yorkshire Dales National Park, close to local amenities and walks.

Notable constraints are factual: the house uses oil‑fired central heating (oil boiler and radiators), the stone walls are traditional with assumed limited insulation, and there is a single family bathroom. Double glazing is present but the installation date is unknown. These factors may mean further improvements or running costs to consider, and any buyer should confirm energy and insulation plans if they prioritise efficiency.

This cottage will suit buyers seeking a characterful rural home, a charming second residence in the Dales, or a holiday‑let/investment opportunity. It offers immediate appeal and clear potential from the outbuilding and garden, but also realistic maintenance and energy considerations due to its age and construction.

Property Details

Brochure Descriptions

Image Descriptions

Floorplan Description

Rooms

Textual Property Features

Target Audience

AI Tags

Detected Visual Features

EPC Details

Nearby Schools

Nearest Bars And Restaurants

,,,,}

Nearest General Shops

,,}

Nearest Grocery shops

,,}

Nearest Supermarkets

,,}

Nearest Religious buildings

,,}

Nearest Medical buildings

,,,}

Nearest Leisure Facilities

,,,,}

Nearest Tourist attractions

,,}

Nearest Train stations

,,,,}

Nearest Bus stations and stops

,,,,}

Nearest Hotels

,,}

Tags

Local Market Stats

AirBnB Data

Similar Properties

Meta

High Res Images

Compatible Images

Low res Images

Thumbnails

Raw Images

High Res Floorplan Images

Compatible Floorplan Images

Low res Floorplan Images

FloorplanImages Thumbnail

Raw Floorplan Images