IG11 8QZ - 3 bed extended victorian terrace in Faircross Avenue, IG11…

View on Property Piper

3 bedroom terraced house for sale in Faircross Avenue, Barking, IG11

Summary - 96 FAIRCROSS AVENUE BARKING IG11 8QZ

3 bed 2 bath Terraced

Flexible family living minutes from Barking transport hub.
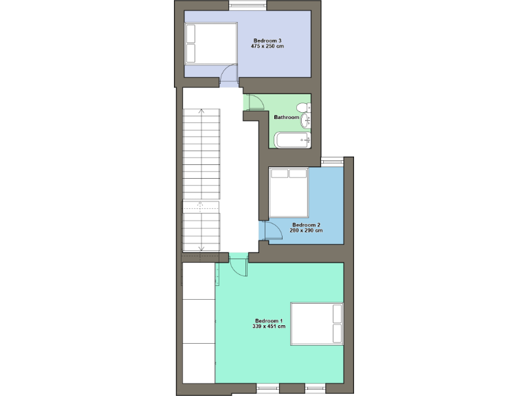
Extended Victorian terraced house with loft room and outbuilding
Approx. 1,292 sq ft; freehold tenure
Two modern bathrooms; spacious living area
Short walk to Barking Station (Underground/Overground/National Rail)
Small rear garden; on-street parking only
Period features present but property needs some modernisation
Located in an area of higher deprivation; average local crime
Nearby well-rated schools and local amenities
Set on a residential street in Barking, this extended three-bedroom Victorian terrace includes an additional loft room and an outbuilding, offering flexible family accommodation across approximately 1,292 sq ft. The house has two modern bathrooms and a generous living area, ready for everyday life and entertaining. Freehold tenure and proximity to Barking Station give it strong transport appeal for commuters.

The property shows period character — bay windows and ornate cornices — but requires some modernisation in parts, presenting scope to update finishes and increase value. The rear garden is small and parking is on-street only, so buyers seeking large outdoor space or private off-street parking should note those limits.

Local amenities are within easy reach: Barking Park, Vicarage Field Shopping Centre, shops, eateries and community facilities. Well-rated local schools, including Northbury Primary and Loxford School, make this a practical choice for families. The wider area faces higher deprivation and average crime levels; this should be considered alongside the strong transport links and potential for renovation.

Property Details

Image Descriptions

Rooms

Textual Property Features

Target Audience

AI Tags

Detected Visual Features

Nearby Schools

Nearest Bars And Restaurants

,,,,}

Nearest General Shops

,,}

Nearest Grocery shops

,,}

Nearest Supermarkets

,,}

Nearest Religious buildings

,,}

Nearest Medical buildings

,,,}

Nearest Airports

,}

Nearest Leisure Facilities

,,,,}

Nearest Tourist attractions

,,}

Nearest Train stations

,,,,}

Nearest Bus stations and stops

,,,,}

Nearest Hotels

,,}

Tags

Local Market Stats

AirBnB Data

Similar Properties

Meta

High Res Images

Compatible Images

Low res Images

Thumbnails

Raw Images

High Res Floorplan Images

Compatible Floorplan Images

Low res Floorplan Images

FloorplanImages Thumbnail

Raw Floorplan Images