Short walk to Barking station with good schools nearby and strong rental potential.
Freehold mid-terrace built c.1900–1929, approx. 1,076 sq ft
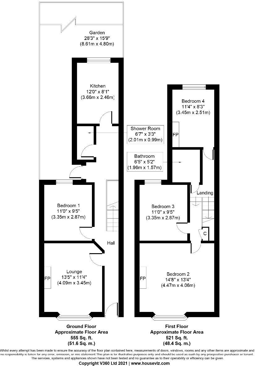
This mid-terrace period home offers flexible living across approximately 1,076 sq ft with two reception rooms and three double bedrooms. A modern-style kitchen and two bathrooms (bathroom plus shower room) support family life, while a 28ft rear garden provides private outdoor space. The property is freehold and sits a short walk from Barking Underground and rail connections for direct central London access.
The house requires modernisation throughout, presenting clear scope to add value — new insulation, updating services, and cosmetic refurbishment are likely needed. Solid brick walls are assumed uninsulated and double glazing install date is unknown, so buyers should budget for energy-efficiency improvements and possible heating or wiring upgrades.
Local amenities and good schools are close by, with fast broadband and excellent mobile signal supporting home working. The area is a busy urban neighbourhood with average crime levels and higher local deprivation, which may affect resale profiles but also supports strong rental demand from commuters.
Ideal for a first-time buyer or investor seeking a refurbishment project near transport links, the house offers substantial upside through targeted renovation. Be aware of the small plot size and factor renovation costs into purchase plans.
4 bedroom terraced house for sale in Aldersey Gardens, Barking, Essex, IG11 — £550,000 • 4 bed • 2 bath • 1755 ft²
2 bedroom end of terrace house for sale in Gordon Road, Barking, IG11 — £350,000 • 2 bed • 1 bath • 634 ft²
3 bedroom terraced house for sale in Cranborne Road, Barking, IG11 — £450,000 • 3 bed • 2 bath • 937 ft²
3 bedroom end of terrace house for sale in Salisbury Avenue, Barking, IG11 — £500,000 • 3 bed • 1 bath • 1073 ft²
3 bedroom town house for sale in 3 Bed House For Sale - Barking IG11 — £400,000 • 3 bed • 2 bath • 1030 ft²
2 bedroom terraced house for sale in Felton Gardens, Barking, IG11 — £325,000 • 2 bed • 1 bath • 701 ft²


















































