Characterful five-bedroom barn with large south garden and sweeping Dales views.
Five double bedrooms across approximately 2,300 sq ft of living space
South-facing generous garden with summer house and flagged patio
Delightful, unobstructed Yorkshire Dales views from garden and rooms
Large garage/workshop with vehicle access; potential for conversion (subject to consents)
New boutique-style bathrooms; garden room with multi-fold doors and VELUX windows
LPG central heating (not on mains gas) — running costs to consider
Stone walls original; assumed no cavity insulation — potential upgrade needed
Hamlet location: quiet but limited local amenities, travel required for shops
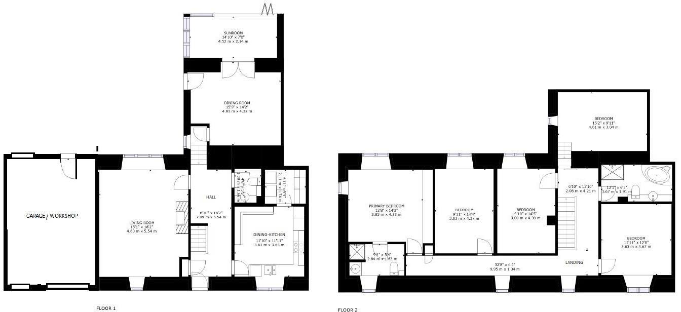
Set in the peaceful hamlet of Calton within the Yorkshire Dales National Park, Horseshoe Barn is a substantial five-double-bedroom barn conversion offering about 2,300 sq ft of well-proportioned living space. The house benefits from a south-facing garden and a contemporary garden room with multi-fold doors that frame uninterrupted rural views — ideal for family living and entertaining. The breakfast kitchen is well fitted and the sitting room’s multi-fuel stove provides a focal point and cosy heat source.
Practical strengths include a large garage/workshop with vehicle access and driveway parking, an EV charging point, utility room, and mains services with a recent Klargester sewage system (2023). The principal bedroom has a refurbished en suite and all five bedrooms comfortably accommodate double beds. New boutique-style bathrooms and double glazing present a move-in ready feel in many areas.
Notable considerations are factual and important: the property uses LPG-fired central heating (not a gas network), and the stone walls are original sandstone/limestone with presumed no cavity insulation. Council tax is described as quite expensive. The location in a small hamlet means limited local amenities; the nearest primary schools are small and rated Good, but daily shopping and services will require travel.
There is straightforward potential to adapt space — the large garage/workshop could be converted into additional living accommodation or a dining-kitchen (subject to consents). Overall this is a spacious, characterful family home for buyers prioritising countryside views, generous outdoor space, and flexible accommodation, while accepting heating type, potential insulation upgrades, and higher running costs.
4 bedroom barn conversion for sale in Calton, Skipton, North Yorkshire, BD23 — £795,000 • 4 bed • 2 bath • 2098 ft²
4 bedroom detached house for sale in Hayloft Barn, Cold Cotes, LA2 8HZ, LA2 — £700,000 • 4 bed • 3 bath • 2223 ft²
4 bedroom barn conversion for sale in Fewston, Harrogate, HG3 — £795,000 • 4 bed • 2 bath • 2047 ft²
4 bedroom detached house for sale in Illiwell Lane Barn, Masongill, LA6 3NN, LA6 — £695,000 • 4 bed • 3 bath • 2247 ft²
5 bedroom detached house for sale in Rookery Barn, Darley, Harrogate, North Yorkshire, HG3 — £865,000 • 5 bed • 3 bath • 3120 ft²
4 bedroom barn conversion for sale in Cracked Castle Barn, Skyreholme, BD23 — £875,000 • 4 bed • 4 bath • 1705 ft²


















































































































































