Large paddock, outbuildings and barn ideal for family life or redevelopment.
Freehold small holding across approximately 2.48 acres in two lots
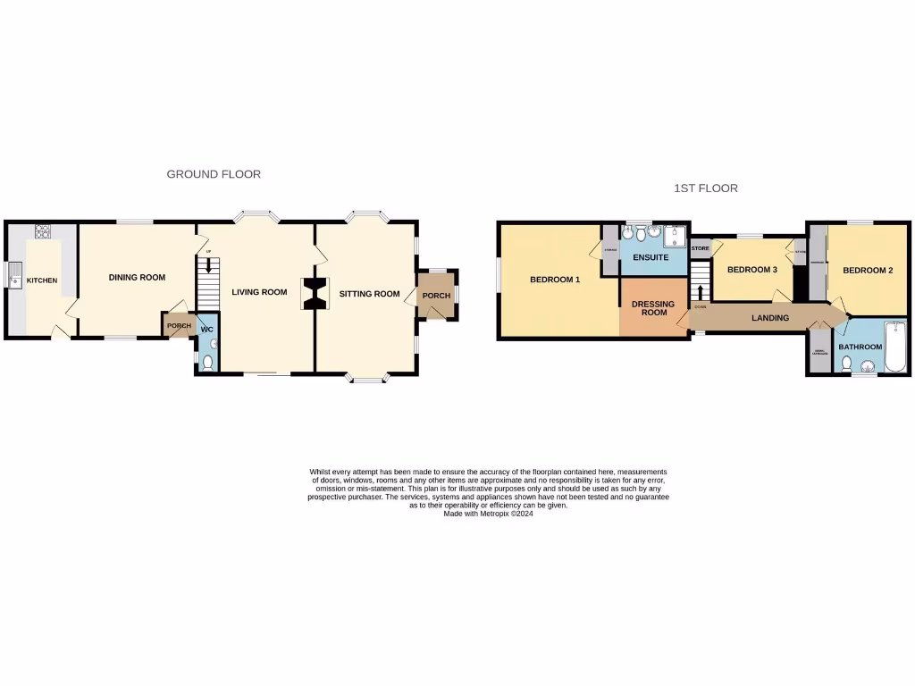
Set within about 2.48 acres, this detached three-bedroom house sits in a peaceful semi-rural setting with wide western views over paddocks and neighbouring farmland. The main lot includes mature lawns, fenced paddock and timber/masonry outbuildings with power; an adjacent fully enclosed 0.32 acre lot contains agricultural buildings and a substantial brick-built barn.
Internally the house follows a traditional layout with three reception rooms, a fitted kitchen, ground-floor WC, and three well-proportioned bedrooms upstairs. The principal bedroom benefits from a dressing room and en-suite; the family bathroom includes a spa-style bath. The property is chain free and offers excellent road links for commuting.
The brick barn presents development potential but requires formal planning and building-regulation approval. Practical considerations include a mains gas boiler, separate hot water boiler, and a septic tank for drainage. Broadband is reported slow — a likely factor for remote working — and council tax is above average.
This smallholding will suit buyers seeking space and scope: a family wanting extensive garden and paddock, someone needing outbuildings for hobbies or livestock, or an investor/developer prepared to pursue planning for barn conversion. The property will need routine updating and offers clear scope for refurbishment and further enhancement.
4 bedroom detached house for sale in St Annes Vale, Brown Edge, Staffordshire Moorlands, ST6 8TA, ST6 — £699,950 • 4 bed • 2 bath • 3310 ft²
4 bedroom detached house for sale in Eaves Lane, Staffordshire Moorlands, ST2 — £785,000 • 4 bed • 2 bath • 1917 ft²
4 bedroom detached house for sale in Thorney Edge Road, Bagnall, Staffordshire, ST9 9LD, ST9 — £750,000 • 4 bed • 2 bath • 2711 ft²
2 bedroom detached bungalow for sale in Woodside Bungalows, Wharf Road, Biddulph, Staffordshire Moorlands, ST8 — £650,000 • 2 bed • 1 bath • 765 ft²
4 bedroom detached house for sale in Eaves Lane Stoke-on-trent, Staffordshire, ST2 8LY, ST2 — £800,000 • 4 bed • 2 bath • 2146 ft²
4 bedroom house for sale in Gratton Hall Lane, Endon, Stoke-On-Trent, ST9 — £975,000 • 4 bed • 2 bath • 2540 ft²


















































































































































