Chain-free, 35ft west-facing outdoor space and storage sheds, ready for refurbishment.
Chain‑free one‑bed ground floor flat with private entrance
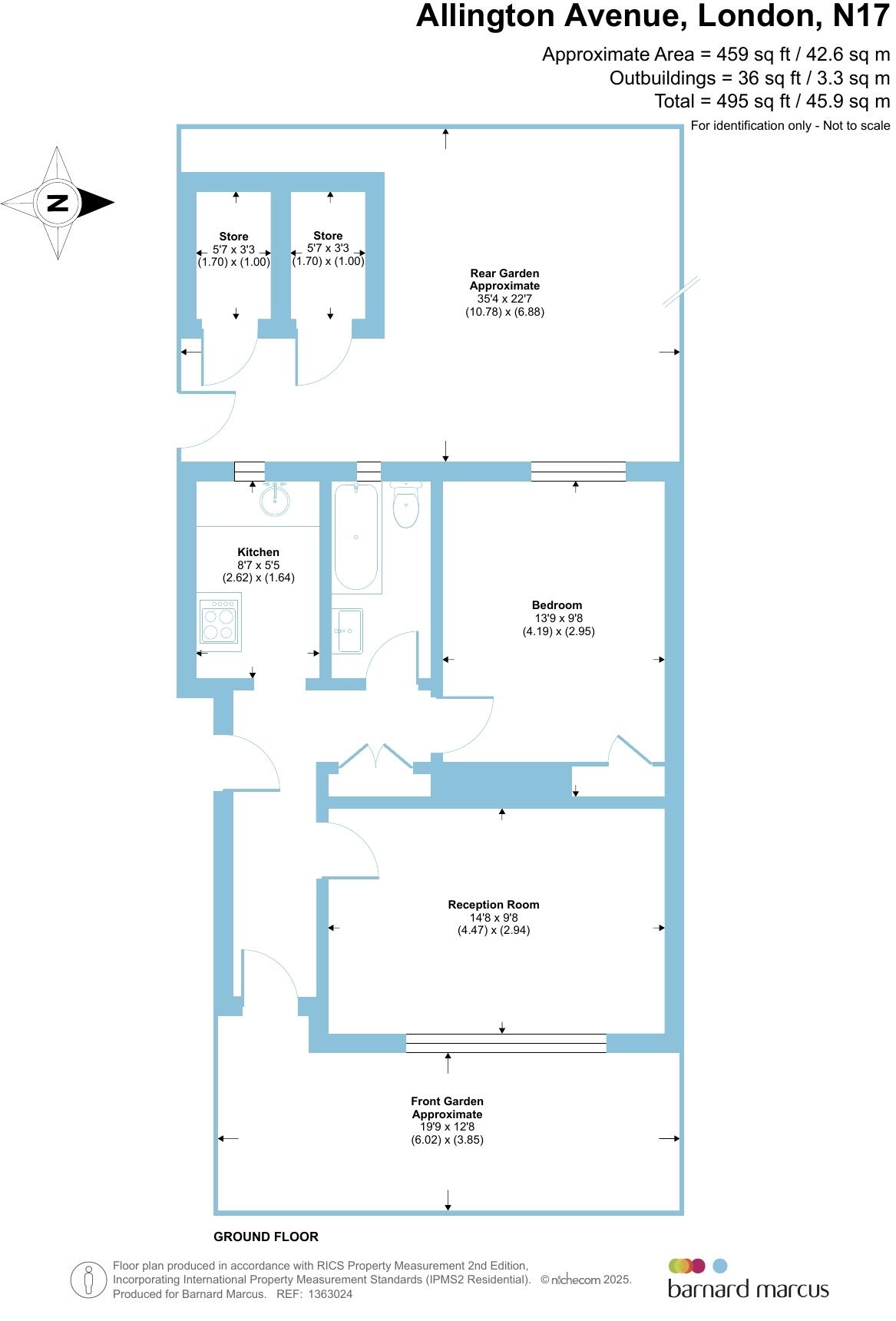
This chain‑free one‑bed ground floor flat offers private street access and a long west‑facing rear garden — a rare find for buyers seeking outside space in N17. The layout includes a separate reception, one double bedroom and a compact kitchen, ideal for a first home or a buy‑to‑let purchase. At about 459 sq ft it’s a practical size for single occupancy or couples.
The property requires updating throughout: dated kitchen and bathroom fittings, worn carpets and mid‑century decor need modernisation. The lease has around 89 years remaining and the flat attracts an average service charge of £1,500 pa; prospective buyers should budget for refurbishment and typical leasehold administration costs.
Location strengths include good nearby primary and secondary schools, frequent bus links, fast broadband and excellent mobile signal. Note the local area is classified as very deprived with above‑average crime statistics; viewings and surveys are recommended so buyers can assess condition and suitability.
2 bedroom flat for sale in The Avenue, London, N17 — £350,000 • 2 bed • 1 bath • 571 ft²
1 bedroom apartment for sale in Townsend Road, London, N15 — £300,000 • 1 bed • 1 bath • 466 ft²
1 bedroom ground floor flat for sale in Creighton Road, London, N17 — £250,000 • 1 bed • 1 bath • 447 ft²
1 bedroom flat for sale in Central Avenue, London, N9 — £200,000 • 1 bed • 1 bath • 658 ft²
1 bedroom ground floor flat for sale in Somerset Hall, Tottenham, N17 — £240,000 • 1 bed • 1 bath • 453 ft²
1 bedroom flat for sale in Tenterden Road, London, N17 — £250,000 • 1 bed • 1 bath • 582 ft²


















































