OX4 1EG - 4 bedroom terraced house for sale in Iffley Road, Oxford, O…

View on Property Piper

4 bedroom terraced house for sale in Iffley Road, Oxford, Oxfordshire, OX4

Summary - 99 IFFLEY ROAD OXFORD OX4 1EG

4 bed 3 bath Terraced

**Standout Features:**
- Four spacious bedrooms, including a luxurious en-suite for the principal suite
- Inviting living room with high ceilings and Victorian bay window
- Open-plan kitchen/dining area, perfect for family gatherings
- Convenient ground floor shower room and utility room
- Versatile cellar space for storage or a home gym
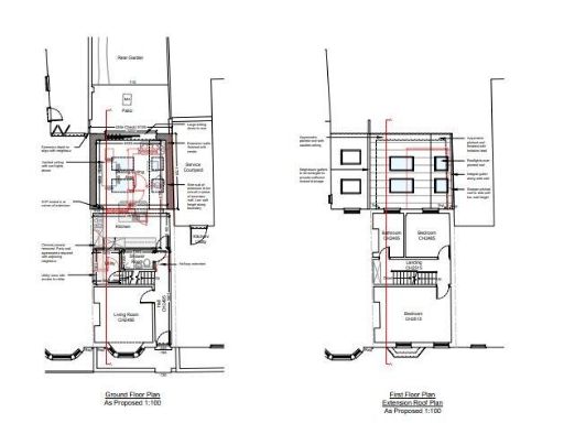
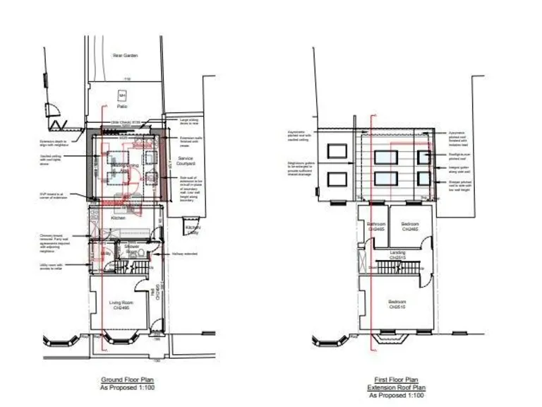
- Planning permission granted for a single-storey rear extension
- Chain-free sale for immediate occupancy
- Prime location overlooking the historic University Sports Ground

This charming Victorian terraced home on Iffley Road offers generous living space spread across four well-designed levels, making it ideal for families or investors seeking comfortable communal living. The beautifully appointed living room features original wooden floors and a classic fireplace, while the kitchen and dining area present an inviting space for family meals, complemented by direct access to the garden. Each of the four bedrooms provides ample comfort, with an en-suite and a stylish family bathroom enhancing everyday convenience.

Recent planning permission allows for an exciting rear extension opportunity, making it a perfect canvas for your vision. Located in an affluent area with outstanding schools like Magdalen College School nearby, this property is well-positioned for both family life and investment potential in the vibrant student-centered community. Enjoy high-speed broadband, excellent transport links, and easy access to a wealth of local amenities. Don’t miss this unique chance to own a piece of history with the comforting modern touches in a prime location—act fast before it’s gone!

Property Details

Image Descriptions

Floorplan Description

Rooms

Textual Property Features

Detected Visual Features

EPC Details

Nearby Schools

Nearest Bars And Restaurants

,,,,}

Nearest General Shops

,,}

Nearest Grocery shops

,,}

Nearest Supermarkets

,,}

Nearest Religious buildings

,,}

Nearest Medical buildings

,,,}

Nearest Leisure Facilities

,,,,}

Nearest Tourist attractions

,,}

Nearest Train stations

,,,,}

Nearest Bus stations and stops

,,,,}

Nearest Hotels

,,}

Tags

Local Market Stats

AirBnB Data

Similar Properties

Meta

High Res Images

Compatible Images

Low res Images

Thumbnails

Raw Images

High Res Floorplan Images

Compatible Floorplan Images

Low res Floorplan Images

FloorplanImages Thumbnail

Raw Floorplan Images