Turnkey 4-bed Victorian terrace with modern extension and private landscaped garden backing the convent.
Extended ground-floor side return and vaulted kitchen/family room with bifold doors
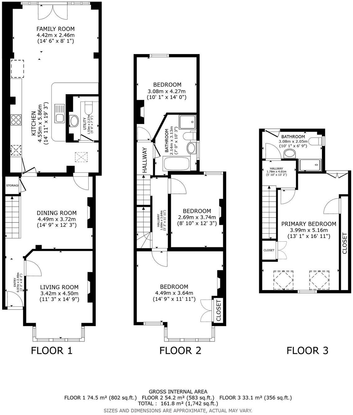
This recently renovated Victorian mid-terrace on Fairacres Road is tailored for families seeking space, period charm and modern convenience in Iffley Fields. The house has been thoughtfully extended into the ground-floor side return and loft, creating generous living spaces including a bright kitchen/family room with vaulted ceiling, underfloor heating and bifold doors onto a landscaped garden backing onto the convent for added privacy.
Internal finishes are immaculate throughout: solid oak worktops, integrated appliances, a utility with WC, restored original doors, cornicing, dado rails and fireplaces. The larger-than-average top-floor bedroom benefits from built-in wardrobes and a Juliet balcony; the loft conversion adds a separate shower room, supporting flexible family layouts and guest accommodation.
Practical details are favourable: freehold tenure, mains gas central heating, double glazing and a C EPC rating. Broadband speeds are fast and mobile signal is excellent, supporting modern home working. The property sits on a popular, quiet side street close to good primary and secondary schools, local amenities and transport in a cosmopolitan student-and-professional neighbourhood.
Buyers should note the plot is small and outdoor space is compact despite the attractive landscaping. The property’s solid brick walls are assumed to lack insulation as built — further insulation work could improve energy performance. Council tax is above average for the area. Overall, this is a turnkey family home blending authentic Victorian character with contemporary, social living spaces.
3 bedroom terraced house for sale in Fairacres Road, Oxford, OX4 — £750,000 • 3 bed • 2 bath • 1085 ft²
4 bedroom terraced house for sale in Iffley Road, East Oxford, OX4 — £900,000 • 4 bed • 1 bath • 1940 ft²
3 bedroom terraced house for sale in Argyle Street, Iffley Fields, OX4 — £750,000 • 3 bed • 1 bath • 1024 ft²
4 bedroom terraced house for sale in Stratford Street, Iffley Fields, OX4 — £710,000 • 4 bed • 1 bath • 1249 ft²
3 bedroom terraced house for sale in Essex Street, East Oxford, OX4 — £635,000 • 3 bed • 1 bath • 966 ft²
4 bedroom terraced house for sale in St. Marys Road, Oxford, OX4 — £750,000 • 4 bed • 2 bath • 1324 ft²






































































































