Period two-bedroom home in Felpham village — character, beach nearby, and scope to improve energy performance..
Victorian bay-fronted semi-detached house, period features and fireplace
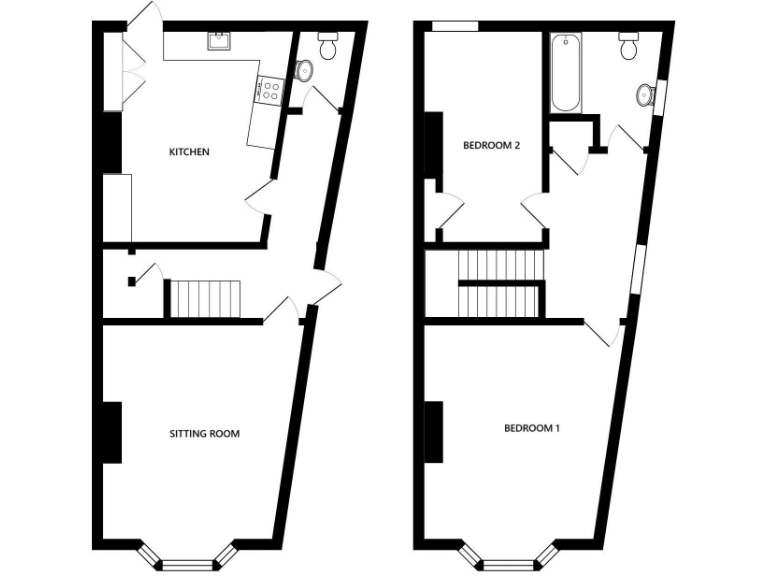
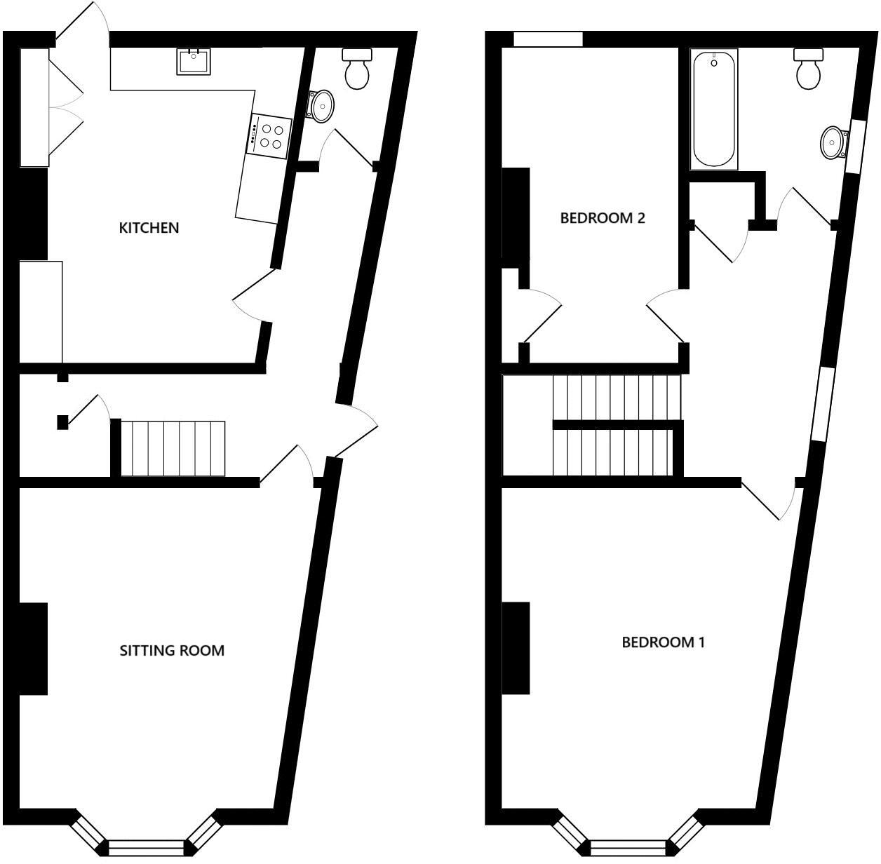
Set in the heart of Felpham village, this two-bedroom Victorian semi offers classic period character with seaside convenience. The bay-fronted façade and internal fireplace create immediate charm while double glazing and gas central heating provide everyday comfort. A small, sheltered rear garden and adjacent off-street parking add practical benefits for a compact coastal home.
The property is best suited to buyers looking to downsize or invest in a period home close to local shops, pubs, schools and the beach. The layout provides typical room proportions for its age — living room with bay window, separate kitchen/dining and two bedrooms — making it straightforward to live in as-is or update to personal taste.
Known issues are clear and factual: the EPC shows a current rating of E (48) with scope for major improvement (potential B, 89), and the area records higher crime levels than average. The plot is small and internal spaces are compact, so buyers should expect limited garden space and modest room sizes. A full internal inspection is recommended to confirm room configuration and any refurbishment needs.
3 bedroom terraced house for sale in Grassmere Close, Felpham, PO22 — £329,950 • 3 bed • 1 bath
2 bedroom terraced house for sale in Old Coastguards, Felpham, PO22 — £355,000 • 2 bed • 2 bath • 772 ft²
2 bedroom terraced house for sale in Old School Mews, Felpham, PO22 — £270,000 • 2 bed • 1 bath
3 bedroom terraced house for sale in Old Rectory Court, Felpham, PO22 — £325,000 • 3 bed • 1 bath • 1157 ft²
3 bedroom detached house for sale in Links Avenue, Felpham, PO22 — £499,950 • 3 bed • 1 bath
3 bedroom terraced house for sale in Barnfeld, Felpham, PO22 — £325,000 • 3 bed • 2 bath






































