NR25 7HE - 2 bedroom barn conversion for sale in Weybourne, NR25

View on Property Piper

2 bedroom barn conversion for sale in Weybourne, NR25

Summary - ROSEDALE FARM BARNS 2 STATION ROAD WEYBOURNE HOLT NR25 7HE

2 bed 2 bath Barn Conversion

**Property Highlights:**
- Charming brick and flint barn conversion with vaulted ceilings and exposed beams
- Stylish fitted kitchen with classic Shaker-style units and a pantry
- Spacious sitting/dining room with a wood-burning stove
- Two bedrooms, including a principal bedroom with a luxurious en-suite bathroom
- Mezzanine area offering flexible storage or additional sleeping space
- Private courtyard garden with serene stream and delightful seating area
- Off-road parking options including carport

Nestled in the picturesque village of Weybourne, this stunning barn conversion pulsates with character while offering contemporary comforts. The spacious interior features a generous sitting/dining area that flows seamlessly into a stylish kitchen, creating an inviting atmosphere perfect for family gatherings or entertaining. The principal bedroom is a luxurious retreat complete with a stunning en-suite bathroom and direct access to a charming courtyard garden, ideal for enjoying peaceful afternoons.

Given its sizeable 1240 sq ft layout and two bedrooms, this property is perfect for first-time buyers, small families, or investors looking to capitalize on the rental potential in this quaint coastal village. The serene location, low crime rate, and excellent local amenities—including cafes, a pub, and close proximity to schools—make it an appealing choice for a comfortable lifestyle.

While the property requires a modest upkeep with annual contributions for communal maintenance, its charm and idyllic setting certainly offer great value. Don’t miss this opportunity to own a unique piece of rural living in North Norfolk—schedule your viewing today!

Property Details

Image Descriptions

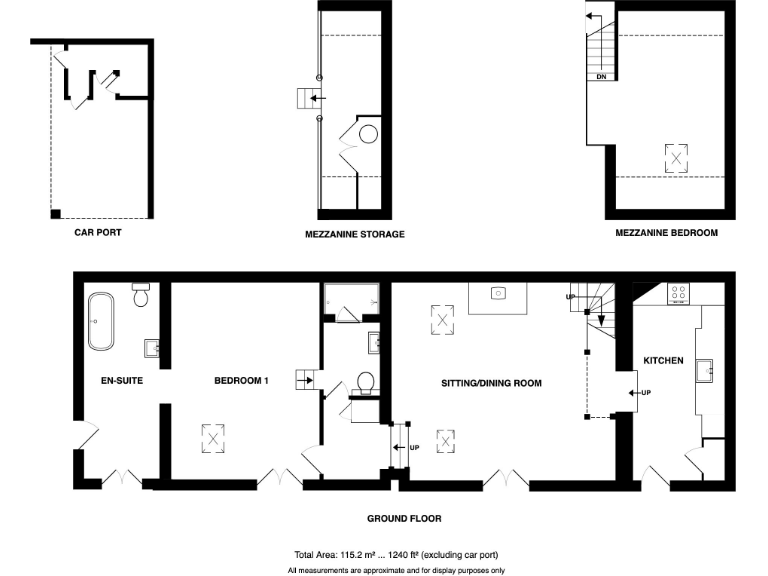
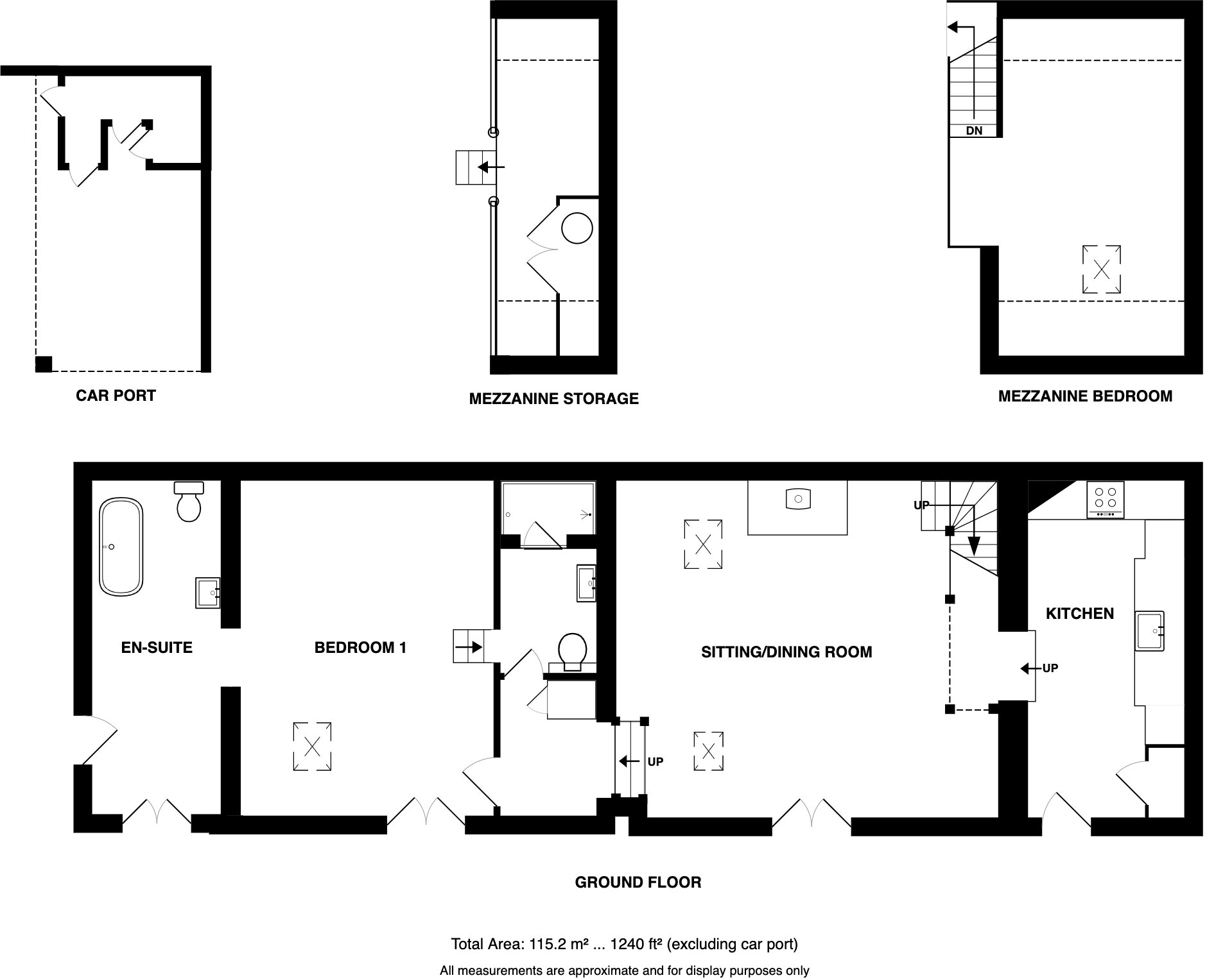
Floorplan Description

Rooms

Textual Property Features

Detected Visual Features

EPC Details

Nearby Schools

Nearest Bars And Restaurants

,,,,}

Nearest General Shops

,,}

Nearest Grocery shops

,,}

Nearest Supermarkets

,,}

Nearest Religious buildings

,,}

Nearest Medical buildings

,,,}

Nearest Leisure Facilities

,,,,}

Nearest Tourist attractions

,,}

Nearest Train stations

,,,}

Nearest Bus stations and stops

,,,,}

Nearest Hotels

,,}

Tags

Local Market Stats

AirBnB Data

Similar Properties

Meta

High Res Images

Compatible Images

Low res Images

Thumbnails

Raw Images

High Res Floorplan Images

Compatible Floorplan Images

Low res Floorplan Images

FloorplanImages Thumbnail

Raw Floorplan Images