ST8 7SA - 2 bedroom detached bungalow for sale in Grangefields, Biddu…

View on Property Piper

2 bedroom detached bungalow for sale in Grangefields, Biddulph, Staffordshire Moorlands, ST8

Summary - 54, GRANGEFIELDS, STOKE-ON-TRENT, BIDDULPH ST8 7SA

2 bed 1 bath Detached Bungalow

Well‑positioned two-bedroom bungalow with large loft potential and private gardens, sold chain free..
No upward chain — vacant possession possible quickly
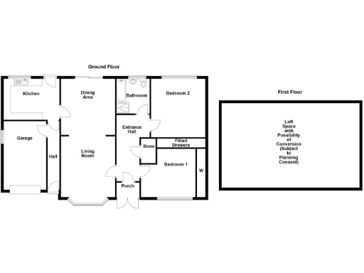
Two double bedrooms and generous open-plan living/dining area
Large partially boarded loft — conversion possible subject to planning
Four-piece bathroom; convenient layout for single-storey living
Integral garage with electric roller door plus driveway parking
Mature, private gardens with patio, shed and outside tap
Freehold; council tax band D
Some updating likely required to suit contemporary tastes
This detached, mid‑20th‑century bungalow sits on a generous, private plot in Grangefields, offering single‑storey living with well‑established gardens and driveway parking. The layout — open living/dining space, two large double bedrooms and a four‑piece bathroom — suits those seeking comfortable, low‑maintenance accommodation close to local amenities and green space.

A significant loft (partially boarded) provides genuine scope for an additional room or home office, subject to planning permission. The property is freehold and sold with no upward chain, making it straightforward for buyers wanting a quick move or a later conversion project.

The bungalow has a solid wood fitted kitchen, gas heating and an integral garage with an electric roller door. While well loved, the home will suit buyers prepared to update some finishes to modern tastes or to adapt the loft into further living space — an opportunity to add value.

Overall this is a practical, characterful detached bungalow in a very low‑crime, affluent area close to Biddulph Grange and local schools — well suited to downsizers, retirees or buyers seeking one‑level living with development potential.

Property Details

Brochure Descriptions

Image Descriptions

Floorplan Description

Rooms

Textual Property Features

Target Audience

AI Tags

Detected Visual Features

Nearby Schools

Nearest Bars And Restaurants

,,,,}

Nearest General Shops

,,}

Nearest Grocery shops

,,}

Nearest Supermarkets

,,}

Nearest Religious buildings

,,}

Nearest Medical buildings

,,,}

Nearest Airports

}

Nearest Leisure Facilities

,,,,}

Nearest Tourist attractions

,,}

Nearest Train stations

,,,,}

Nearest Bus stations and stops

,,,,}

Nearest Hotels

,,}

Tags

Local Market Stats

Similar Properties

Meta

High Res Images

Compatible Images

Low res Images

Thumbnails

Raw Images

High Res Floorplan Images

Compatible Floorplan Images

Low res Floorplan Images

FloorplanImages Thumbnail

Raw Floorplan Images