Immaculate single-floor living on a large plot with far-reaching countryside views..
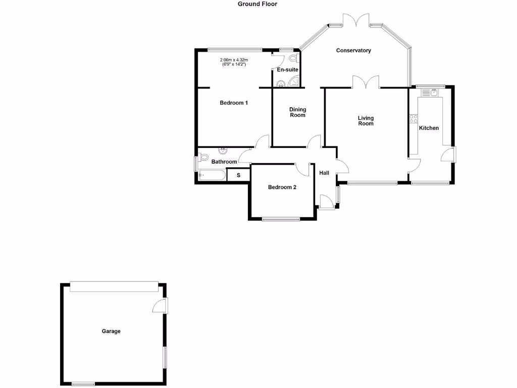
Detached two-bedroom bungalow with ensuite principal bedroom
Sweeping driveway with off-street parking for up to eight vehicles
Detached double garage with electric up-and-over door, power and lighting
Large, mature landscaped garden with greenhouse and raised decking
Three reception rooms including conservatory with countryside views
Single-storey living — suitable for downsizers, limited bedroom count
Freehold, Council Tax Band D, no flood risk
Total internal floor area listed as TBC — buyer to verify measurements
Set on a generous, mature plot on sought-after Park Lane, this detached two-bedroom bungalow combines spacious single-floor living with uninterrupted countryside views. The house presents immaculately with three reception rooms including a conservatory, a large kitchen and an ensuite main bedroom — well suited to downsizers or buyers seeking tranquil, accessible living without compromising on indoor or outdoor space.
The mature rear garden is landscaped with planting, raised decking, greenhouse and conifer hedging, offering privacy and strong alfresco potential. A broad tarmac driveway provides off-street parking for up to eight vehicles and leads to a detached double garage with electric up-and-over door — a rare delivery of storage and parking for this property type.
Practical details are favourable: freehold tenure, no flood risk, fast broadband and excellent mobile signal. The property sits within an established semi-rural neighbourhood close to good local schools and transport links into Stoke-on-Trent while enjoying far-reaching countryside outlooks.
Buyers should note this is a two-bedroom bungalow, which may limit flexibility for larger households or those seeking more bedrooms. The listing confirms strong presentation but the stated total floor area is TBC; a final inspection and checks on measurements and services are recommended prior to exchange.
3 bedroom detached bungalow for sale in Park Lane, Knypersley, Staffordshire Moorlands, ST8 — £359,950 • 3 bed • 1 bath • 1205 ft²
3 bedroom detached bungalow for sale in Park Lane, Knypersley, Staffordshire Moorlands, ST8 — £240,000 • 3 bed • 1 bath • 765 ft²
4 bedroom detached house for sale in Park Lane, Knypersley, Staffordshire Moorlands, ST8 — £475,000 • 4 bed • 3 bath • 990 ft²
4 bedroom detached house for sale in Park Lane, Knypersley, Staffordshire Moorlands, ST8 — £475,000 • 4 bed • 2 bath • 1012 ft²
2 bedroom detached bungalow for sale in Conway Road, Knypersley, Stoke-On-Trent, ST8 — £280,000 • 2 bed • 1 bath • 828 ft²
2 bedroom detached bungalow for sale in Colwyn Drive, Knypersley, Stoke-On-Trent, ST8 — £285,000 • 2 bed • 1 bath • 732 ft²














































































































































































