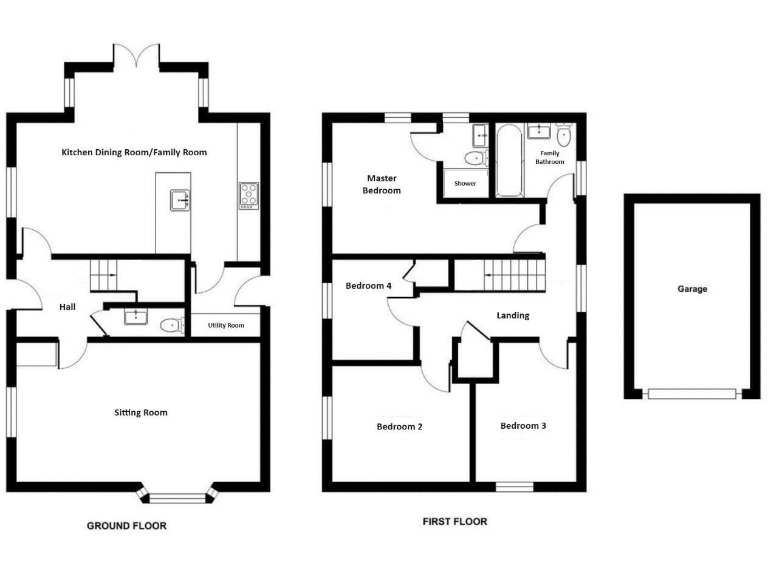
**Standout Features:**
- Attractive 4-bedroom detached house in Great Oldbury
- Recently built by David Wilson Homes with smart upgrades
- Generous open-plan kitchen/dining/family room with integrated appliances
- Master bedroom with en-suite and dual aspect windows
- South-facing garden with recent landscaping and patio area
- 20ft x 10ft garage and driveway parking for multiple cars
- Chain-free sale, offering immediate occupancy
- Close proximity to local amenities and primary schools
This stylish and modern 4-bedroom detached family home in Great Oldbury combines contemporary design with comfortable living space—perfect for families and investors alike. The property features a welcoming entrance hall, a bright sitting room with a bay window, and an impressive open-plan kitchen/dining/family room, equipped with high-quality integrated AEG appliances and French doors that seamlessly connect indoor and outdoor living.
Upstairs, the master bedroom boasts an en-suite bathroom, with three additional bedrooms providing ample space for family or guests. The south-facing garden is beautifully landscaped, providing a private retreat for relaxation or entertaining, while the large garage and driveway offer convenient parking options.
Despite its many merits, potential buyers should note the above-average crime rate in the area, which may be a consideration for safety-conscious families. However, this home is situated within a popular community that boasts good local schools and amenities, making it an attractive option for those looking to invest in a growing neighborhood. With the majority of any NHBC warranty remaining and a move-in ready status, this exceptional home won’t be on the market for long—schedule your viewing today!
3 bedroom semi-detached house for sale in Charles Almond Close, Great Oldbury, GL10 — £320,000 • 3 bed • 2 bath • 777 ft²
3 bedroom semi-detached house for sale in Alfred Underwood Way, Stonehouse, GL10 — £320,000 • 3 bed • 2 bath • 404 ft²
3 bedroom house for sale in Maurice Shill Close, Great Oldbury, GL10 — £349,950 • 3 bed • 2 bath • 1143 ft²
4 bedroom detached house for sale in De Lisle Bush Way,
Stonehouse,
GL10 3RL, GL10 — £479,000 • 4 bed • 1 bath • 1146 ft²
4 bedroom detached house for sale in De Lisle Bush Way, Great Oldbury, GL10 — £375,000 • 4 bed • 3 bath • 1470 ft²
4 bedroom detached house for sale in David Butt Close, Great Oldbury, Stonehouse, GL10 — £385,000 • 4 bed • 2 bath • 968 ft²






























































































































