Spacious two-bedroom flat set within six acres of communal grounds and lake.
Grade II listed first-floor flat with period features and high ceilings
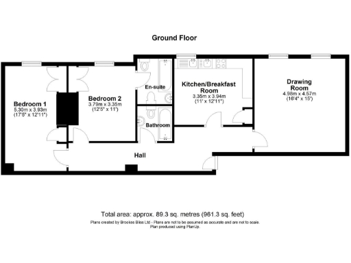
Set within Putley Court, this first-floor Grade II listed flat offers generous period rooms, high ceilings and far-reaching views across about six acres of communal gardens, lake and woodland. The large sitting room, kitchen/breakfast room and two double bedrooms (one ensuite) give flexible living space for downsizers or buyers seeking a character property in peaceful countryside.
The apartment requires renovation and redecoration throughout, presenting clear scope to personalise and add value. Important practical points: the building is listed which will restrict some alterations, and the property shares private drainage and communal cellars with six other flats. Service charge is substantial (about £3,840pa/£320pcm) and covers grounds and communal maintenance but not buildings insurance.
Practical strengths include a very long lease (nearly 999 years remaining), off-street parking, fast broadband and low local crime. The peaceful hamlet setting is a short drive to Ledbury and within reach of Hereford and the M50, making it suitable for those wanting rural calm without complete isolation.
This is a true period opportunity: buy for lifestyle in impressive historic surroundings or renovate and enhance for future resale. Buyers should factor in listed-status constraints, the renovation budget and ongoing communal costs when considering a viewing.
2 bedroom apartment for sale in Flat 1, 37 New Street, Ledbury, Herefordshire, HR8 — £150,000 • 2 bed • 1 bath • 9085 ft²
3 bedroom terraced house for sale in Ledbury Park, Ledbury, Herefordshire, HR8 — £495,000 • 3 bed • 2 bath • 1543 ft²
2 bedroom apartment for sale in Worcester Road, Ledbury, Herefordshire, HR8 — £250,000 • 2 bed • 2 bath • 1762 ft²
1 bedroom apartment for sale in Clarence House, Worcester Road, Ledbury, Herefordshire, HR8 1PL, HR8 — £195,000 • 1 bed • 1 bath • 423 ft²
2 bedroom apartment for sale in Frome Court, Bartestree, Hereford, HR1 — £225,000 • 2 bed • 2 bath • 1262 ft²
1 bedroom flat for sale in Frome Court, Bartestree, Hereford, HR1 — £125,000 • 1 bed • 1 bath • 490 ft²






























































































































