Fully let property with immediate rental income and refurbishment potential.
Freehold multi-unit: 3-bed HMO plus separate 1-bed flat
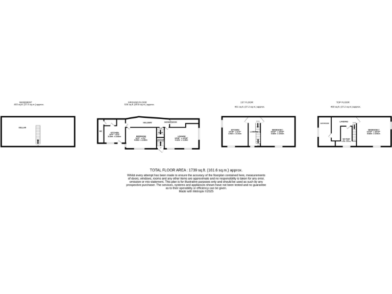
A freehold, multi-unit investment opportunity in Stocksbridge offered at auction. The property comprises a three-bedroom HMO and a self-contained one-bedroom flat (8A), currently fully let and producing a combined passing income of £22,359.56 per annum. Tenancies are mixed fixed-term and periodic; two fixed agreements continue into 2025 and 2026.
Constructed circa early 20th century with solid-brick walls and double glazing, the building is average sized (approximately 1,739 sq ft) and sits on a small plot with on-street parking. Heating is mains gas with boiler and radiators. EPCs are D for both units. The layout has been adapted for multiple occupancy and will suit a hands-on landlord or portfolio buyer able to manage tenancies and responsive maintenance.
Material positives include immediate rental income, separate flat for flexible use, and strong local amenities including schools, shops and public transport. Notable drawbacks: the property shows a dated interior that requires modernization, assumed lack of wall insulation, an administration fee on exchange (£3,600 inc VAT), and a higher local crime rate which may affect lettability and management costs. Prospective buyers should review the legal pack for disbursements and be prepared for auction timelines and tenant-occupied viewings or restrictions.
4 bedroom detached house for sale in No. 8 and 8A Victoria Road, Stocksbridge, Sheffield, South Yorkshire S36 1FW, S36 — £150,000 • 4 bed • 2 bath • 1739 ft²
4 bedroom terraced house for sale in 196 Penistone Road North, Sheffield, South Yorkshire S6 1QA, S6 — £145,000 • 4 bed • 1 bath • 849 ft²
Property for sale in Stanley Street, Sheffield, South Yorkshire, S3 8HJ, S3 — £1,800,000 • 1 bed • 1 bath • 1000 ft²
House of multiple occupation for sale in Queens Road, Sheffield, South Yorkshire, S2 4DL, S2 — £235,000 • 1 bed • 1 bath • 1238 ft²
7 bedroom end of terrace house for sale in 34A, 34B & 36 Talbot Street, Sheffield, South Yorkshire, S2 2TG, S2 — £250,000 • 7 bed • 3 bath
4 bedroom house of multiple occupation for sale in Old Mill Lane, Barnsley, S71 — £125,000 • 4 bed • 1 bath • 915 ft²






































































