Large freehold site with car park, ideal for a residential or mixed-use conversion.
Grade II-listed historic building totalling approx. 49,014 sq ft
A landmark Grade II-listed former industrial building in central Middlesbrough, Exchange House offers a rare large-scale redevelopment plot of about 49,014 sq ft across six levels with an included 0.29-acre car park. The freehold site sits in Exchange Square close to the railway station and local transport links, giving strong locational benefits for a conversion to mixed-use or residential-led schemes, subject to planning.
The property is vacant and requires full renovation throughout; the building’s high ceilings, period brickwork and generous floorplates create clear potential for apartments, workspace or ground-floor commercial units. The sale includes the adjacent Wood Street Car Park which provides on-site parking or development/amenity space for any scheme.
Buyers should note material constraints: the listed status and current condition mean refurbishment will be complex and costed; the local area records high crime rates and very high deprivation, and broadband speeds are very slow. The property is offered by public online auction (bidding closes 29 October 2025) with additional buyer fees and legal pack requirements — due diligence is essential.
This is a specialist opportunity aimed at developers or investors prepared to manage heritage constraints and a substantial refurbishment programme. For the right purchaser, Exchange House offers an unusually large, centrally located footprint in a town undergoing wider regeneration, with scope to create long-term value once planning and refurbishment are resolved.
Commercial property for sale in Exchange House, Exchange Square, Middlesbrough, North Yorkshire, TS1 1DB, TS1 — £480,000 • 1 bed • 1 bath
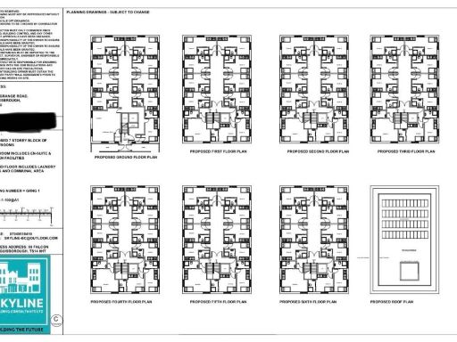
Cafe for sale in Borough Road, Middlesbrough, TS1 — £170,000 • 1 bed • 1 bath
Commercial development for sale in Centre North East, Albert Road, Middlesbrough, TS1 2RU, TS1 — £4,800,000 • 1 bed • 1 bath • 14250 ft²
Commercial property for sale in The Pearson Building, Bright Street, Middlesbrough, Cleveland, TS1 2AA, TS1 — £550,000 • 1 bed • 1 bath • 13324 ft²
Light industrial facility for sale in Bright Street, Middlesbrough, North Yorkshire, TS1 — £650,000 • 1 bed • 1 bath • 13325 ft²
End of terrace house for sale in Grange Road, Middlesbrough, TS1 — £475,000 • 1 bed • 1 bath • 4578 ft²














































































