**Standout Features:**
- Rare link-detached character home in the heart of Blofield
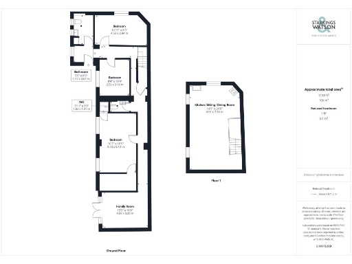
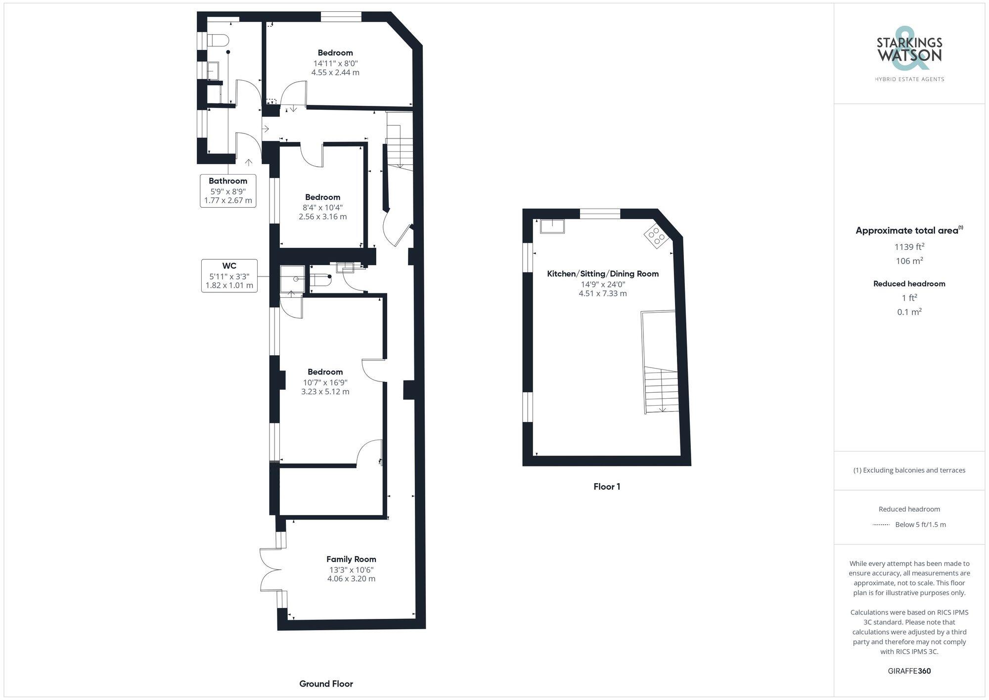
- Spacious 24' first-floor kitchen/living area
- Cozy 13' ground-floor family room with French doors
- Three comfortable bedrooms and separate bathroom
- Enclosed garden with potential for landscaping
- Off-road parking available
- Excellent central location within walking distance to schools and shops
- Low crime rate and affluent neighborhood
**Summary:**
Experience the charm and potential of this rare link-detached character home in the heart of Blofield, perfect for family living or investors seeking rental opportunities. Boasting over 1,141 Sq. ft of versatile space, this home features an expansive 24' first-floor kitchen/living area, ideal for entertaining, and a cozy 13' family room that opens onto the beautifully enclosed garden. With three bedrooms, a convenient W.C, and a separate family bathroom, the layout caters to comfort and daily functionality.
This property offers the unique opportunity to reconfigure the space to suit your lifestyle. The tranquil garden, adorned with mature plants, provides an inviting outdoor oasis, while off-road parking enhances convenience in this desirable central location. Enjoy excellent access to local amenities, schools, and public transport, as well as the added benefit of a low crime rate and an affluent community. Don’t miss your chance to secure this delightful home—schedule a viewing today and envision the possibilities!
 4 bedroom detached house for sale in Yarmouth Road, Blofield, Norwich, NR13 — £575,000 • 4 bed • 3 bath • 1627 ft²
 4 bedroom detached house for sale in Yarmouth Road, Blofield, Norwich, NR13 — £575,000 • 4 bed • 3 bath • 1627 ft² 4 bedroom link detached house for sale in Ropes Walk, Blofield, NR13 — £385,000 • 4 bed • 2 bath • 1421 ft²
 4 bedroom link detached house for sale in Ropes Walk, Blofield, NR13 — £385,000 • 4 bed • 2 bath • 1421 ft² 3 bedroom town house for sale in Shreeve Road, Blofield, Norwich, NR13 — £300,000 • 3 bed • 2 bath • 1014 ft²
 3 bedroom town house for sale in Shreeve Road, Blofield, Norwich, NR13 — £300,000 • 3 bed • 2 bath • 1014 ft² 4 bedroom detached house for sale in Hunters Close, Blofield, Norwich, NR13 — £500,000 • 4 bed • 1 bath • 1347 ft²
 4 bedroom detached house for sale in Hunters Close, Blofield, Norwich, NR13 — £500,000 • 4 bed • 1 bath • 1347 ft² 4 bedroom detached house for sale in Newstead Gardens, Blofield, Norwich, Norfolk, NR13 — £625,000 • 4 bed • 3 bath • 1912 ft²
 4 bedroom detached house for sale in Newstead Gardens, Blofield, Norwich, Norfolk, NR13 — £625,000 • 4 bed • 3 bath • 1912 ft² 5 bedroom detached house for sale in Yarmouth Road, Blofield, Norwich, NR13 — £525,000 • 5 bed • 3 bath • 1792 ft²
 5 bedroom detached house for sale in Yarmouth Road, Blofield, Norwich, NR13 — £525,000 • 5 bed • 3 bath • 1792 ft²


















































































