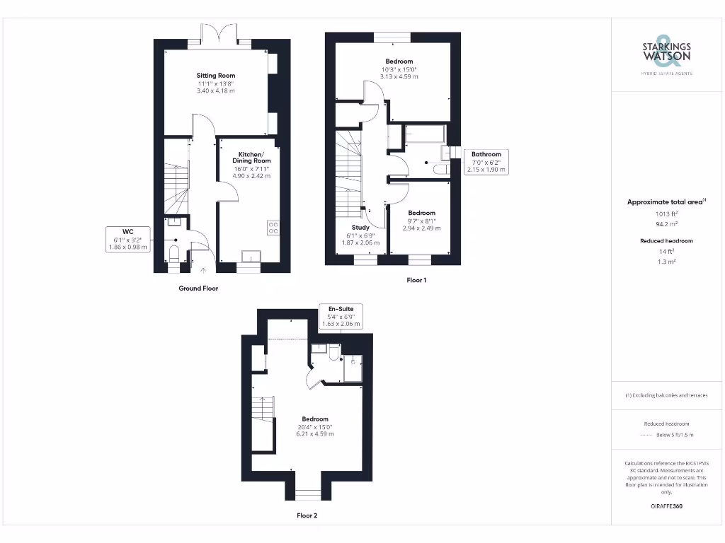
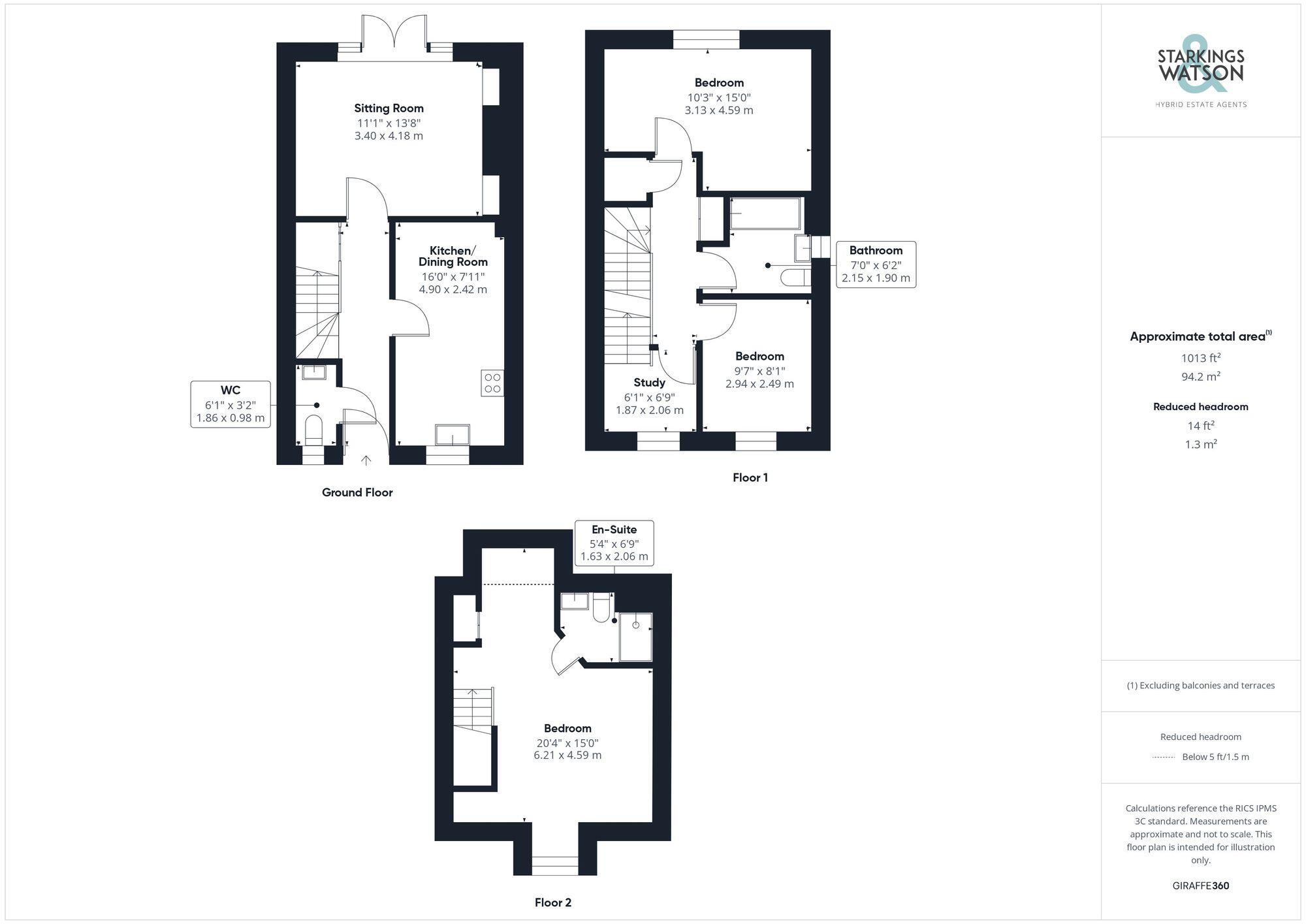
Spacious three-bedroom townhouse with ensuite, garage and off-street parking in quiet cul-de-sac..
- Over 1,010 sq ft of living space across three floors
- 20' dual-aspect main bedroom with ensuite and Velux windows
- Open-plan kitchen/diner with fully integrated appliances
- Sitting room with French doors and bespoke media wall
- Tandem driveway and adjacent single garage for parking
- Private, enclosed rear garden; compact/low-maintenance plot
- Freehold; EPC rating B and no flood risk
- Small plot may limit large outdoor uses or extensions
Set at the end of a quiet cul-de-sac in Blofield, this modern semi-detached townhouse offers over 1,010 sq ft of well-presented living space across three floors. The ground floor features an open-plan kitchen/dining area with fully integrated appliances, a handy cloakroom and a bright sitting room with French doors opening to a private, enclosed rear garden.
Upstairs provides flexible family accommodation: two first-floor bedrooms served by a central family bathroom, plus a second-floor study leading to a spacious 20' dual-aspect main bedroom with part-vaulted ceilings, Velux windows, integrated storage and an ensuite shower room. Practical extras include a larger-than-average tandem driveway, adjacent garage and useful loft/eaves storage.
This home suits families seeking move-in ready accommodation in a peaceful, semi-rural setting near good local schools. Note the plot is modest in size, so outdoor space is compact rather than expansive. Overall the property is modern, well maintained and offered as freehold with an EPC rating of B.
3 bedroom town house for sale in Gunns Close, Blofield, Norwich, NR13 — £295,000 • 3 bed • 2 bath • 1040 ft²
4 bedroom detached house for sale in Gunns Close, Blofield, Norwich, NR13 — £450,000 • 4 bed • 3 bath • 1719 ft²
3 bedroom detached house for sale in Blyth Close, Blofield, Norwich, Norfolk, NR13 — £300,000 • 3 bed • 2 bath • 910 ft²
5 bedroom detached house for sale in Yarmouth Road, Blofield, Norwich, NR13 — £525,000 • 5 bed • 3 bath • 1792 ft²
5 bedroom detached house for sale in Shreeve Road, Blofield, NR13 — £475,000 • 5 bed • 3 bath • 1798 ft²
4 bedroom semi-detached house for sale in Kevill Davis Drive, Little Plumstead, Norwich, NR13 — £300,000 • 4 bed • 3 bath • 1240 ft²














































































