Characterful one-bed with extension potential near Bishop's Park and riverside amenities.
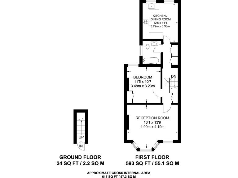
Large 1-bedroom, approximately 617 sq ft, generous room proportions
Set on a quiet street in Bishop's Park, this spacious one-bedroom first-floor flat offers bright period accommodation and an eat-in kitchen. At about 617 sq ft the layout feels generous for a one-bed, with a bay-windowed living room and original Victorian features that give character and charm.
The flat has clear upside: potential to extend subject to planning (STPP) and a sizeable footprint for this location, making it attractive to first-time buyers seeking space or buyers wanting to add value. It benefits from proximity to Bishop's Park, the Thames and Fulham Palace Road amenities, plus good local schools and fast broadband.
Buyers should note it is a leasehold property and the building dates from the early 20th century. The property has solid brick walls with assumed no cavity insulation and double glazing fitted before 2002, so improving thermal performance may be beneficial. Heating is mains-gas boiler and radiators; checking lease details and maintenance responsibilities is recommended.
Overall this is a characterful one-bedroom with immediate liveability and straightforward potential to upgrade or extend, positioned in an affluent, well-connected part of SW6. Its size and location make it a practical choice for first-time buyers looking for long-term potential.
1 bedroom flat for sale in Bramber Road, Fulham, London, W14 — £565,000 • 1 bed • 1 bath • 528 ft²
1 bedroom flat for sale in Pellant Road, Fulham, SW6 — £525,000 • 1 bed • 1 bath • 503 ft²
1 bedroom flat for sale in Fulham Palace Road, London, SW6 — £299,999 • 1 bed • 1 bath • 374 ft²
1 bedroom flat for sale in Ongar Road, Fulham, London, SW6 — £500,000 • 1 bed • 1 bath • 538 ft²
1 bedroom flat for sale in Mirabel Road, Fulham, London, SW6 — £550,000 • 1 bed • 1 bath • 560 ft²
1 bedroom flat for sale in Fulham Palace Road, London, SW6 — £299,999 • 1 bed • 1 bath • 374 ft²










































































































































































































